查看完整案例

收藏

下载
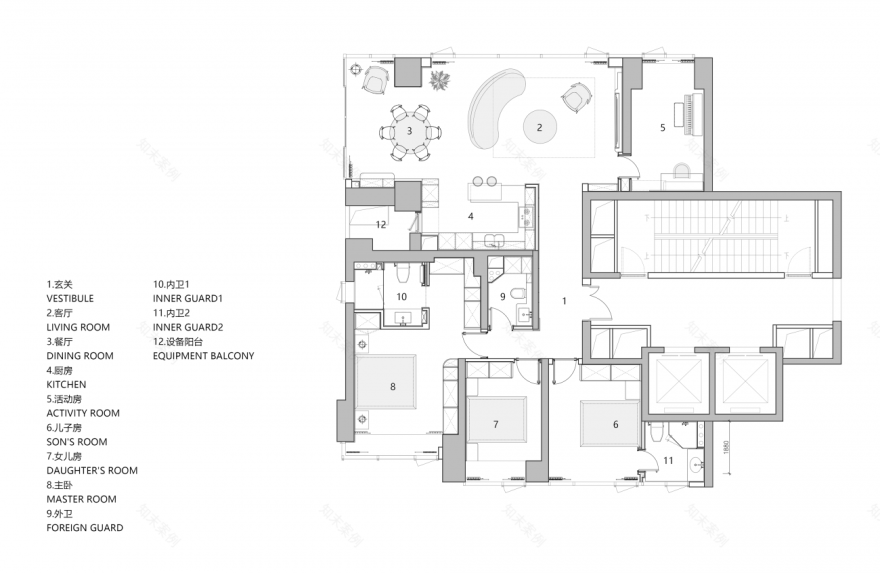
这是为一个四口之家构筑的居所,设计需要在有限的面积内平衡审美与实用,183㎡的空间里,需要容纳三间卧室、一间多功能房以及三个卫生间,且保证宽敞充裕的公区情境,平面布局的深思熟虑,成为了实现这一切的基础。
项目的优势由窗景入手,高居瓯江之畔,整面落地窗将城市的天际与江流尽收眼底。设计以此作为核心,将家庭生活的主要活动区域向窗边引导,让居住行为与自然阳光发生联系,形成生活与自然交织的呼吸感。于客厅窗畔设置阅读区域,皮质单椅搭配弧形布艺沙发,赋予空间柔和的感染力与包容感,阳光随着一日时间的推移,在书页上产生缓缓移动的光影,让阅读行为成为一次与自然对话的过程。
针对原始空间厨房面积局促的难题,设计以岛台为社交核心打开空间,同时纳入生活阳台,转换为光线充沛的用餐区域。如此一来,客厅、餐厅与厨房的完全开放,进一步消弭了室内与风景的界限,不仅拓宽了空间的使用面积,更优化了通风与采光,让家庭成员在料理、用餐与交流的过程中,始终浸润在自然的阳光与流动的空气里,产生着微妙而温馨的化学反应。
设计师以简约利落的线条呈现空间作为生活基底的包容性,再以线性灯带置入墙面与地面,形成明暗的璀璨变化,通过墙面洞石装饰出绚丽的光影,而人造光与自然光的交织也强调着人类生活与自然间的平衡。以柔和的米白色作为空间的基础色调,再佐以明媚的橙,穿插黑灰色系,带来层次分明且重点突出的视觉变化,一如阳光落于空白的纸面,素白瞬间变得鲜活。
三间卧室均朝南向布置,将窗景奉为不可或缺的主角。主卧内,宽屏床具与墙面融为一体,皮革与布艺的结合升华了触感与视觉的层次.窗台处增设坐榻,无论是夜晚的万家灯火,还是白日里粼粼的江面,都在时光的缝隙里被悄然欣赏,生活的情境由此铺陈。
面对儿女房原始空间较为局促的问题,设计摒弃了传统的床体概念,转而采用软包结合床架的形式,自然节省出床头空间,释放出更多的留白,让居住行为更自由舒适。在保持整体风格连贯的前提下,每个房间通过微妙的色彩差异,暗示着不同家庭成员的个性,在追寻美与功能性的同时,人性化地为每个家庭成员预留个人化标签,也为日后生活预留逐渐丰盈的空间。
家,最终是人与世界关系的映射,当设计学会退让,空间退后,窗外的江流、城市中交错的灯火与平凡的家庭生活交织,形成一个又一个简单而温馨的故事,人在空间中自在成长,空间也因为人类行为而有了意义。
项目平面图
项目信息
项⽬名称:城市自然主义
设计公司:思倍斯建筑空间设计
项⽬地点:温州市.鹿城区
项⽬⾯积:183㎡
项目摄影:吴昌乐
设计时间:2024年6月
完⼯时间:2025年10月
主要材料:橡木地板、黑橡、橡木本色、混油
内容策划:橙设传媒
客服
消息
收藏
下载
最近






























