查看完整案例

收藏

下载
当设计从“堆砌”转向“留白”,奶油风便成了空间美学的温柔注脚。它从不是简单的浅色系叠加,而是一场关于“极间”的精妙博弈——在柔和与克制之间,在温度与秩序之间,在具象与留白之间,生长出可触摸的呼吸感。今天分享的两个作品来自筑物设计与青云居设计,当奶油的纯净包含了其他风格,会有什么样的化学反应?
花园森林系
筑物设计
海南海口150㎡奶油风私宅
本案位于海南海口佳元·天上人间,是一套150㎡的私宅,设计师深度融合功能、美学与情感,把建筑缺陷转化为艺术亮点,通过引光、借景、互联的手法,为懂得生活的业主营造了一个松弛、温馨且富有精神滋养的居所。
在必然的秩序中,安放自由的诗意。
大横厅,以舒展开间融汇充裕采光,主动赋能多元的生活场景。落座体块与就餐长桌遥望,流转的光影与视线衔接,让过渡语境衍生出呼吸感与互动性。把会客区定格为艺术现场,让生活始终保持鲜活。
有限之域,栖意无限。
新的艺术画作倚靠在窗下,呼应会客区的画,亦联动了大自然的灵息。桌椅自持纤薄轻盈的姿态,不抢主场的光环,却也为闹腾的公区开辟了静谧的品茗场景。侧方打造的竖向展格,收藏了许多文化的回声,品茗间,舌尖便溯游了千年。
烹饪的温度温暖了时光
整合空间,完成餐厨一体化的构想,让烹饪的温度与举杯的欢笑,在同一片时光里交融。实木餐桌穿插于白色岛台,与“不完美”的落水管相连,指引着餐厨的流线轨迹。四周是温馨的烟火味道,抬眼便能看到花园里的美好。
春天溜进书本,睡成了书签。床品还留着阳光的暖,问候万象翩跹的绿,连空气都带着刚晒过被子的香。不必放轻手脚,只管推开明亮的玻璃门,从卧榻到琴凳,跨过的是光与声的结界,尽情弹奏,即赴了悦心之约。梳妆台在钢琴边,转个身就能变美。
松弛从容,静气自生。
立柜收藏了琐碎,书桌承载着篇章,小床安放了酣眠,它们高低错落,藏敞有致,以有序的默契,勾勒出栖居的轮廓。木纹放大了温润之美,舒缓着久视目光,曲面演绎优雅气质,将人拥入其中。
生活的完整与舒适,并不与空间大小成正比。墙上那幅绿意盎然的画,或许是雨林的一角,或许是春日新发的藤蔓,让心得以徜徉。专属空间的百叶帘,是最温柔的日光调节器,它从不粗暴地拒绝阳光,而是将明亮化作朦胧,显化出独特的光影语言。
设计服务于氛围,并最终隐于氛围。
床边焕亮暖光,漫在绿色系画作上,晕出了柔意与浪漫。木质元素从睡眠区延伸至过道,连接主次情态并增设置物功能,提升了过道美感。墙面的跌级肌理,以清晰层次表达刚毅,床头木作以曲线吐纳着柔息,在光影动态中抒发出戏剧张力。
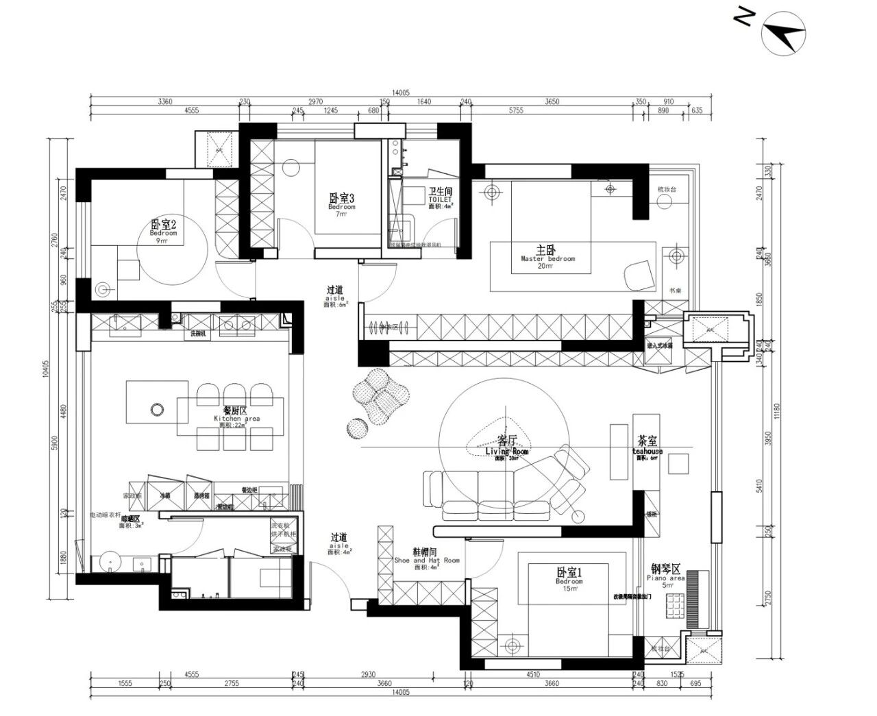
平面布局图
项目名称:天上人间
设计团队:筑物营作
项目地址:海南 海口
项目时间:2025年9月
项目面积:150㎡
服务类目:全案设计托管
完美主义的法式
青云居设计 浙江杭州锦麟府法式奶油住宅
本案采用法式风,融入当下流行的奶油风元素,其特点:纤弱娇媚、华丽精巧、甜腻温柔,设计师在此处以新古典主义元素为主,并用现代元素加以稀释,完美诠释了新法式风的特点。
本项目位于交通便利,位置优越的钱江世纪城附近,女主人的气质完全将大方、端庄、温柔、浪漫的女神特点体现的淋漓尽致,自信的女人,在任何时候,都是理智的,她们只挑选最合适自己的。
整体墙面采用经典的线条和飞檐的天花板来装饰,整体墙面白色为主,搭配奶呼呼的软装,治愈又温馨。
独特的雕花造型、弧形元素,体现出经典的法式风;装饰壁炉、圆形金属装饰品,将现代元素恰到好处地融入法式风。
大理石茶几,造型简洁大气,融入了石材的本质纹理,搭配整体软装,满满的现代奢华气质。
圆柱形香氛蜡烛和木桩与陶罐花瓶组合,表达了业主对生活的一种松弛感和氛围感。
圆形大理石餐桌,自带石材的纹理,简洁大方,搭配原木编织座椅,实用美观
餐厅与厨房设计成敞开式,整体空间更加宽敞,岩板材质的岛台,将操作区增加延长,同时可以在这里品尝美食。
干区与收纳柜组合一体,搭配悬空镜,既满足功能需求,又可以起到画龙点睛的作用。
卧室大面积的玻璃窗搭配米色窗帘,让明亮的光线更加柔和。搭配暖色调的吊灯,让空间显得暖意更浓。
绒布沙发+实木桌椅,造型朴实大方、线条饱满流畅,没有经过人工刻意地修剪,留存着自然的美感。
平面布局图
项目名称 |锦麟府
项目地点 |浙江 杭州
设计机构 |青云居设计
设计范围 |半包设计
客服
消息
收藏
下载
最近
































































