查看完整案例

收藏

下载
方立明
我们设计了一处以可移动模块为概念的展厅,打造一处贴近家居氛围的青年艺术家画廊,使用者可以通过自行增减隔断墙模块,从大型画作展览到小型的家具、装置或影像展,都能够轻松呈现。
屋已设计工作室
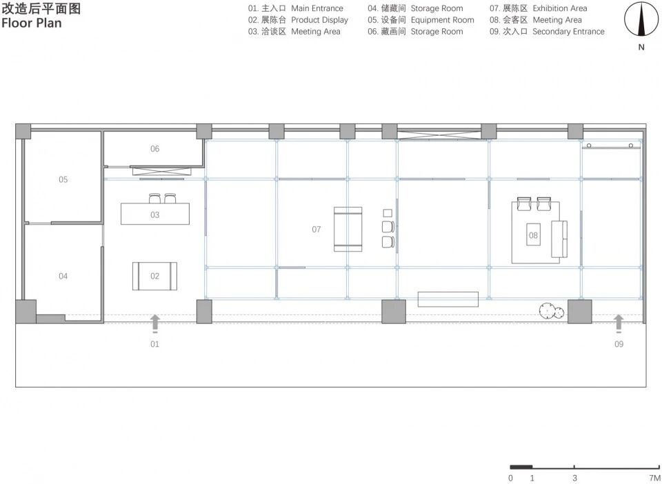
燃画廊位于北京市朝阳区,在这个原始面积约280平米的开放空间,业主委托我们打造一处贴近家居氛围的青年艺术家画廊。由于定期会更替不同的展览主题,加上画作的流动性较快,我们就设计了一处以可移动模块为概念的展厅。
贴近生活氛围
方立明
不同颜色的模块化展墙配合各类作品及展览主题 方立明
会客休闲区
方立明
灵活的展陈形式
方立明
设计师使用桦木多层板设计出多组工字型的实木结构,将整个空间顶面交织出条横向木梁和条纵向木梁,搭建好空间的骨架。再制作出小一号的可移动工字型柱体卡进木梁中,结合与柱体形成嵌套关系的模块化隔断墙,增添了立面维度的趣味。
层叠的空间纵深感
方立明
颜色多变的模块展墙
方立明
家居与艺术相结合
方立明
于是使用者可以通过自行增减隔断墙模块,将这个场地从一块完整开阔的大空间分割成20多块自由的小空间,从大型画作展览到小型的家具、装置或影像展,都能够轻松呈现。
艺术品贯穿在空间之中 方立明
一桌一椅一画 方立明
色卡展墙
方立明
以线带面,色彩与自然意义相连,蓝色的木质梁柱结构让人想起天空和大海,有深远和退后的效果。棕色的地毯使人联想到土地,稳重且向前。加上墙面跳跃的背景色与丰富题材的艺术作品,共同组合出无限可能性。让画廊空间在发展中得以不断更新和变化,充分激发观者的新鲜感和探索欲。
蓝色的木梁木柱相互交错
方立明
撞色组合激发想象力
方立明
结构细部
方立明
材质质感
方立明
项目图纸
原始平面图
屋已设计工作室
改造后平面图 屋已设计工作室
项目名称:燃画廊-灵活的复合型模块化展厅
项目类型:商业空间、画廊、展厅
设计方:屋已设计工作室
项目设计:2025年5月
完成年份:2025年8月
设计团队:史英杰、解伟康
项目地址:北京市朝阳区
建筑面积:280㎡
摄影版权:方立明
客户:燃画廊
材料:桦木板、铝型材、地毯、木蜡油、艺术漆
客服
消息
收藏
下载
最近


















