查看完整案例

收藏

下载

翻译
Architects:L'Atelier Senzu,LAGNEAU Architectes
Area:2868m²
Year:2025
Photographs:Cyrille Weiner,Rory Gardiner
Manufacturers:Saint-Gobain,Degaine et Mergozzo,MARAZZI,QUINTESSENZA CERAMICHE,vandaglas
Category:Government,Refurbishment,Renovation
Lead Team:Wandrille Marchais, David Dottelonde, Victor Duffau
Design Team:Léa Noguès, Gabriel Chatel
Engineering & Consulting > Structural:TECCO
Engineering & Consulting > Mep:INEX
Engineering & Consulting > Environmental Sustainability:Franck Boutté Consultants
Engineering & Consulting > Other:Mazet & Associés, VS-a
Interior Design:Anna Saint Pierre
Engineering & Consulting > Acoustic:Clarity
City:Paris
Country:France
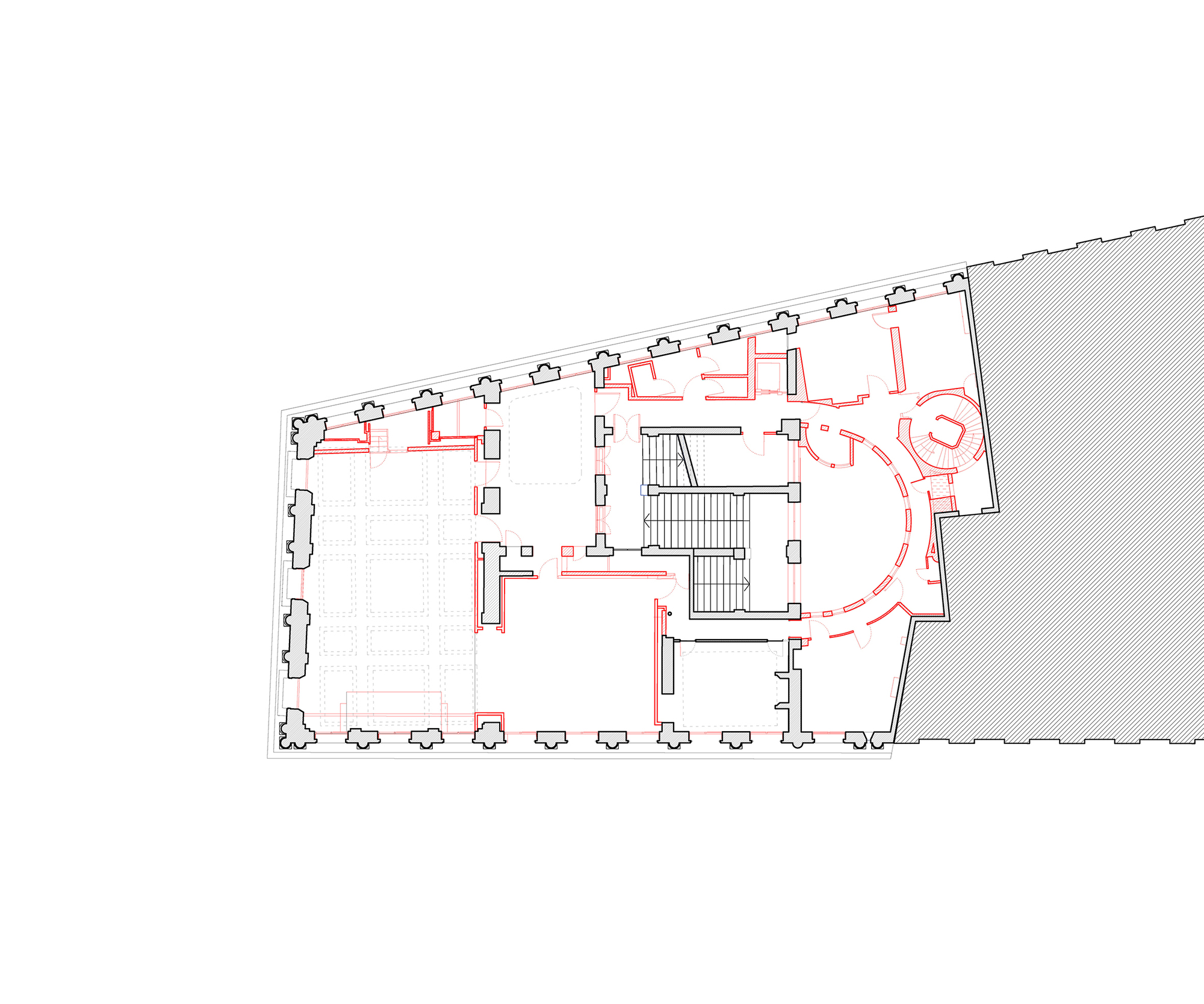
Text description provided by the architects. The renovation of the Chamber of Notaries is located in the 1st arrondissement of Paris. The project represents a thoughtful transformation of an existing structure, balancing the preservation of Parisian heritage with contemporary architectural interventions.
The transformation is inspired by anastylosis, which consists of complementing the existing structure with appropriate, measured interventions necessary for its renewal. The renovation of the Chamber is thus based on the reuse of materials in situ, improved thermal performance, and the creation of open, adaptable spaces that can evolve over time.
Our reflections led us to seek a balance between boldness and humility in order to meet a major challenge: transforming a historically administrative building while preserving efficient workspaces. Our intention is to clearly distinguish between the public and the private areas. This clear division optimizes traffic flow and guarantees confidentiality where necessary, while maintaining visual connections. By densifying and opening up the rear of the building, we are restoring the historic façade on the Place du Châtelet to its former nobility.
Visible from the street, the small spaces on the ground floor have been completely redesigned. Mezzanine areas have been removed to create large double-height spaces. These areas have been transformed into spaces of life, encounter, and exhibition. Our primary goal was to make this address a destination in its own right, opening onto Place du Châtelet.
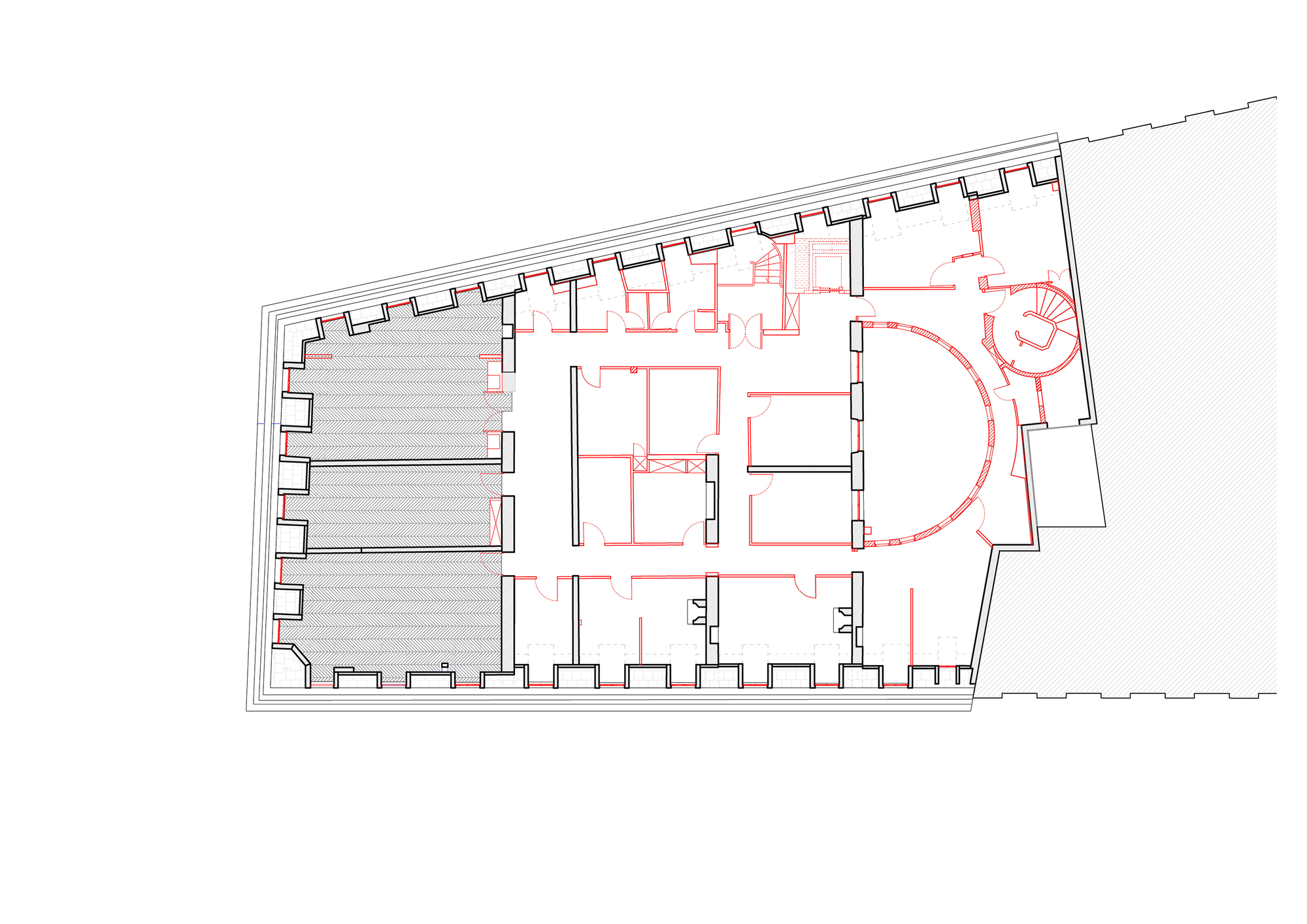
The project opts for on-site reuse as an act of creation, working with mineral resources sourced directly from the building. The stones removed are not simply preserved: they are transformed, reinterpreted, and repurposed. Moreover, the evolution of the courtyard façade bears the mark of the renewal of the Chamber of Notaries.
Once hidden from view, it has now become a place of transparency, highlighting the collective organization of notarial work. With its large arched windows, the monumental staircase offers deep perspectives on the rear of the building. The gaze circulates freely, without crossing the threshold. The logic behind the project is to reveal confidentiality without abolishing it. The building does not close itself off; it filters.
Furthermore, the existing building does not provide employees with working conditions that meet current requirements. The offices suffer mostly from a lack of light. However, the Chamber has chosen to devote this space to its administrative functions. The project transforms these spaces into open, bright, and rational areas, capable of accommodating offices and meeting rooms in optimal conditions of comfort and flexibility.
Additionally, the outer courtyard becomes a new iconic space in the building, breathing new life into an area historically treated as a service space. To emphasize the unique character of this Parisian location, the façades are designed using a repeating curved glazing module, avoiding a faceted effect while keeping the project within budget. At the junction between the existing stonework and the glass façade, a cavity joint has been installed. It complements the fine detailing and accommodates openings, ensuring natural ventilation of the workspaces without altering the continuity of the façade.
Project gallery
客服
消息
收藏
下载
最近











































