查看完整案例

收藏

下载
Ochre Bakery
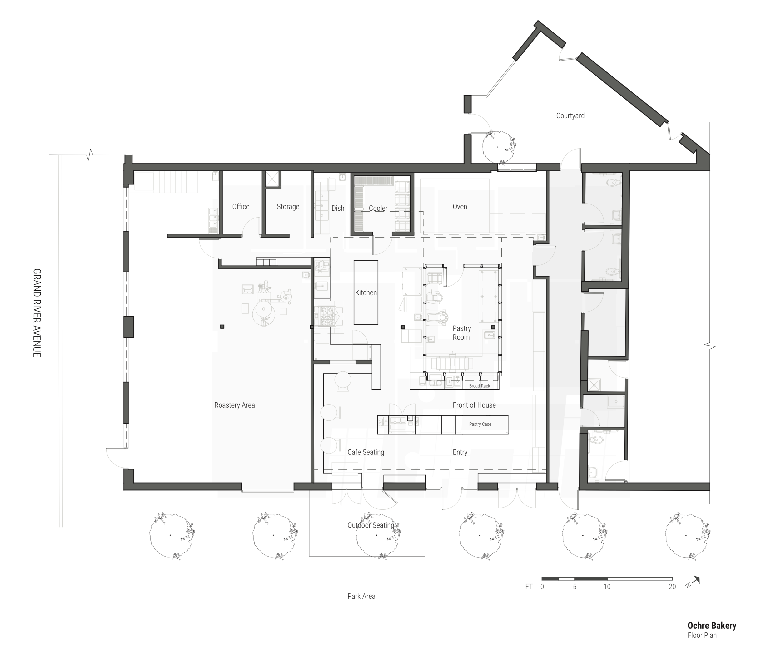
Located in the Core City neighborhood of Detroit the program includes a standalone bakery, cafe and the Astro Coffee Roastery. Both the bakery and roastery are built to support the original coffee shop, they serve as commissary for Astro Coffee.
The space was imagined as a canvas, designed and built collaboratively with the client and their family. Client hand painted tiles which were developed in conjunction with Hamtramck Ceramic, these wrap the millwork fabricated by client’s father. At the heart of the project, is the glazed pastry room that serves as a controlled environment for the French style pastries. Centrally located, it organizes the different functions of the bakery and kitchen while displaying the process to the public. Integrated bread display frames the front of the pastry room. Maple wood on the public side adds warmth while tile on the inside provides both a functional and crafted experience for the staff.
The day-lit environment enhances the family atmosphere for both customers and staff. Work areas were located with visibility and access to either the small park out front or a rear courtyard shared with the larger facility. The canvas logic promotes the owners’ product display as personal touches drive the staff and customer experiences.
Photography
Michelle and Chris Gerard
客服
消息
收藏
下载
最近








