查看完整案例

收藏

下载
MẪU NHÀ 4 TẦNG 8M HIỆN ĐẠI 2,2 TỶ ĐỒNG - 4T211101
CÔNG TRÌNH: THIẾT KẾ NHÀ PHỐ 4 TẦNG 110M2
Dự toán: 2,2 tỷ đồng
Diện tích: 8 X 13.75 m
Công năng: 4 phòng ngủ, Phòng khách, Phòng bếp ăn, 2 phòng thay đồ, Phòng thờ, Phòng máy game và 5 wc
Bố trí công năng của Nhà phố hiện đại sang trọng:
Mặt bằng bố trí nội thất tầng 1 nhà phố 4 tầng 110m2
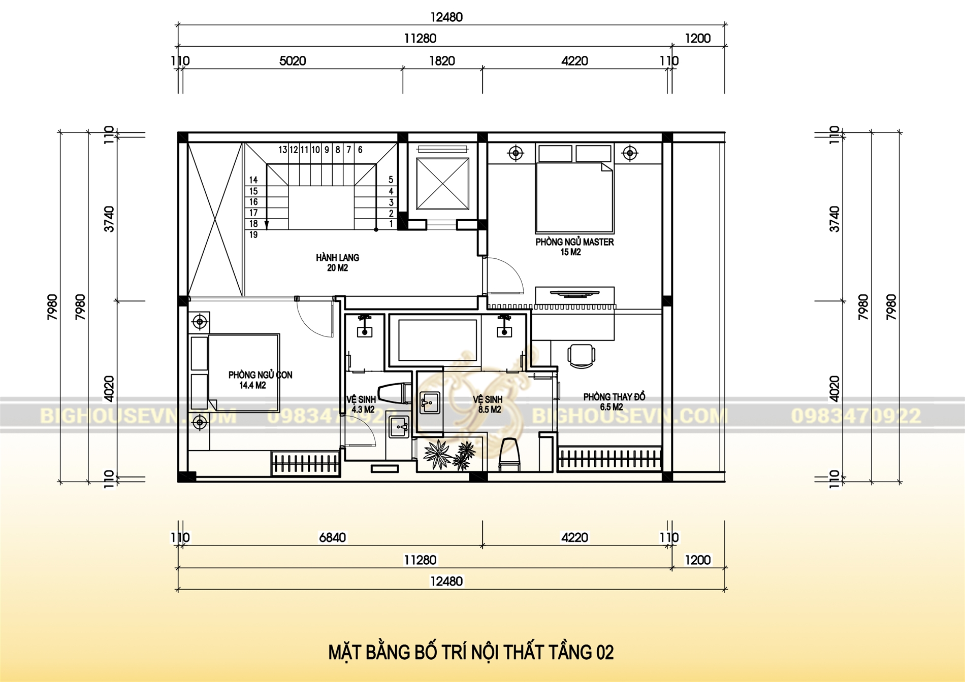
Mặt bằng bố trí nội thất tầng 2 nhà phố 4 tầng 110m2
Mặt bằng bố trí nội thất tầng 3 nhà phố 4 tầng 110m2
Mặt bằng bố trí nội thất tầng tum nhà phố 4 tầng 110m2
Phối cảnh 3D Mẫu nhà phố hiện đại 4 tầng:
Mẫu nhà hiện đại mặt tiền 8m
Phối cảnh nhà 4 tầng rộng 8m hiện đại
Phối cảnh ban đêm nhà phố 4 tầng rộng 8m
HỒ SƠ THIẾT KẾ GỒM NHỮNG GÌ:
Bạn đang cần thiết kế và băn khoăn khi các Đơn vị thiết kế thường chỉ có một Gói hồ sơ thiết kế chi tiết, hết quá nhiều tiền mà nhiều khi không cần dùng hết. Vậy bạn nên cân nhắc đến Công ty kiến trúc BIG HOUSE, Chúng tôi có 3 gói hồ sơ bao gồm:
- Thiết kế phối cảnh 3D mặt tiền: với đồng giá 2 triệu đồng/ nhà
- Hồ sơ thiết kế gói tiết kiệm: trọn gói từ 5 - 7 triệu đồng với tùy yêu cầu cụ thể
- Hồ sơ thiết kế chi tiết thi công bao gồm cả nội thất là 180.000 đ/m2 sàn xây dựng ( với nhà không cần thiết kế nội thất là 120.000 đ/m2)
Mời bạn
xem thêm hồ sơ mẫu trên web
site
Mẫu nhà phố 4 tầng hiện đại 110m2
Thông tin về CTY THIẾT KẾ BIGHOUSE:
CHUYÊN THIẾT KẾ MẶT TIỀN NHÀ PHỐ & HỒ SƠ TIẾT KIỆM
Công ty Cổ phần đầu tư công nghệ kiến trúc xây dựng
BIGHOUSE
được thành lập từ năm 2013 bởi KTS Nguyễn Trọng Trí và các cộng sự - Chúng tôi với đội ngũ trẻ nhiệt huyết và yêu nghề đã rất thành công tạo dựng được một chỗ đứng vững chắc trong lĩnh vực thiết kế kiến trúc công trình dân dụng tại Hà Nội, đặc biệt chuyên sâu về mảng
MẶT TIỀN NHÀ PHỐ
và
HỒ SƠ TIẾT KIỆM
để phát triển sự nghiệp lâu dài. sứ mệnh của chúng tôi gắn với tình yêu nghề và hạnh phúc khi được phục vụ đúng cái khách hàng cần.
Trong quá trình xây dựng và phát triển, Chúng tôi đã trải qua không dưới hai lần lột xác với những quyết định mạo hiểm, đặt cược số phận Công ty để định hình thương hiệu và mở rộng khai thác thị trường MẶT TIỀN NHÀ PHỐ.
Hiện tại, chúng tôi tập trung vào những lĩnh vực chính như:
Thiết kế Mặt tiền nhà phố, Gói Hồ sơ tiết kiệm,
Xây nhà trọn gói.
Bằng đường lối lãnh đạo và định hướng phát triển đúng đắn, hiện nay, chúng tôi là đối tác quan trọng của 50 đơn vị thi công trên khắp cả nước. Với chủ trương hoạt động phát triển bền vững, gắn liền lợi ích kinh doanh với lợi ích cộng đồng cùng hàng nghìn công trình tiêu biểu trải dọc đất nước
Qua những chia sẻ vừa rồi của
Bighouse
, hi vọng các bạn đã có thể biết được một số kinh nghiệm về xây dựng nhà, đồng thời có thêm được ý tưởng thiết kế nhà 4 tầng cho công trình của mình từ
Mẫu nhà 4 tầng 8m hiện đại 2,2 tỷ đồng
có mức chi phí đầu tư khoảng 2,2 tỷ đồng này.
Liên hệ với
Hot line: 0983 470 922
để được hỗ trợ tư vấn sớm nhất nhé!
客服
消息
收藏
下载
最近









