查看完整案例

收藏

下载
Ë_245A
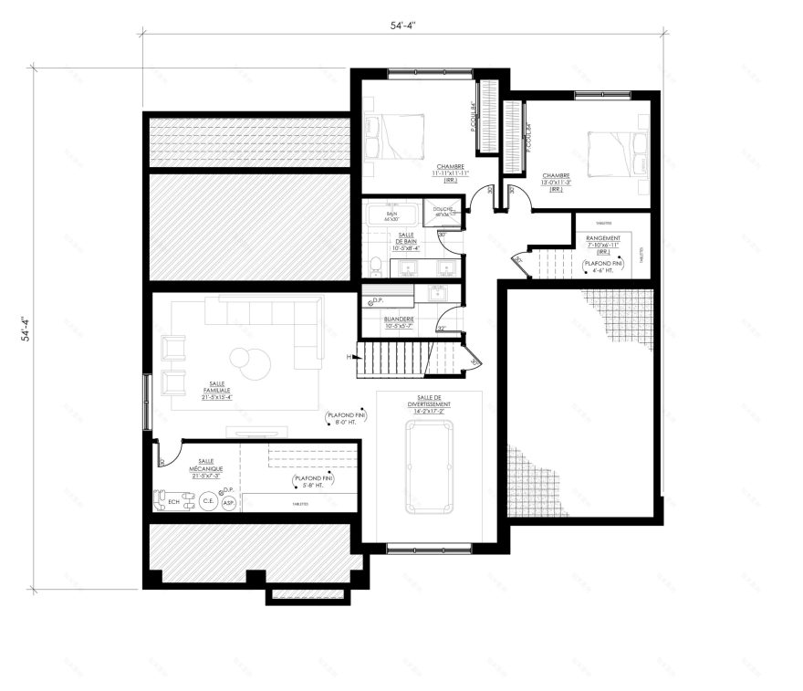
Découvrez un bungalow d’exception, où chaque détail a été pensé pour allier confort et esthétisme. Son corps central, sublimé par un plafond cathédral, baigne le séjour et la chambre principale de lumière naturelle, amplifiant la sensation d’espace et d’ouverture. Un intérieur qui dialogue avec l’extérieur La cuisine et la salle à manger, intelligemment connectées, s’ouvrent sur une vaste terrasse couverte, créant une parfaite harmonie entre les espaces de vie intérieurs et extérieurs. Le plan Ë_245A : une approche repensée du bungalow Avec ses deux chambres au rez-de-chaussée, cette version propose un aménagement qui conjugue élégance traditionnelle et modernité, pour une maison intemporelle adaptée aux styles de vie d’aujourd’hui. Que vous recherchiez volume, luminosité ou fluidité des espaces, ces concepts incarnent l’essence même d’un design fonctionnel et inspirant.
Superficie 1702 pi
Chambre 2
Garage Oui
Salle de bains 1.5 et +
Étages 1
Coût de const. 387 000 $ à 592 000 $
Galerie photos Ë_245A
Réalisations
Rez-de-chaussée
Sous-sol
Salon
Cuisine
Entrée
Salle à manger
Salon
Salon
Cuisine
Chambre principale
Salon
Chambre principale
Salle à manger
Salle de bain
Salle de bain
Salle de bain
Salle de bain
Terrasse
Arrière
Réalisations
Ë_245A — Inversé
Plan
Rez-de-chaussée
Sous-sol
Salon
Cuisine
Entrée
Salle à manger
Salon
Salon
Cuisine
Chambre principale
Salon
Chambre principale
Salle à manger
Salle de bain
Salle de bain
Salle de bain
Salle de bain
Terrasse
Façade
Plan Ë_245A
3145 $
Modification de plan
Tous les plans sont modifiables.
Vous avez des questions? Consultez la FAQ
客服
消息
收藏
下载
最近






















