查看完整案例

收藏

下载
Ë_236 Ë_236
Conçu dans le cadre de notre réflexion portant la création d’un concept de bungalow alliant le charme colonial et la modernité ; notre plan Ë_236 incarne parfaitement cette fusion entre passé et présent. Il offre un agencement compact et efficace, vous garantissant un maximum d’espace utilisable pour un coût de construction raisonnable.Découvrez ce nouveau plan de bungalow, unique en son genre, arborant une signature distinctive qui ne manquera pas de vous séduire.
Superficie 1363 pi
Chambre 2
Garage Non
Salle de bains 1
Étages 1
Coût de const. 385 000 $ à 474 000 $
? Comment sont estimés les coûts de construction?
Il y a toujours deux prix d’indiqués pour chacun de nos plans. Le premier montant représente un coût en autoconstruction et le second un coût clef en main. Ils sont évalués au pied carré selon une moyenne de coût de construction au Québec. Ces coûts sont approximatifs et calculés avec des matériaux de qualité standard. Ils varieront selon le type de finition que vous choisirez, les particularités de votre terrain, le coût des matériaux de votre région, etc..
Bien entendu, ceux-ci n’incluent pas les coûts d’achat de votre terrain et terrassement puisque nous n’avons aucun contrôle sur ses prix. Le coût en autoconstruction prévoit que les propriétaires gèrent eux-mêmes leur chantier et feront les travaux eux-mêmes. Alors que le coût clef en main prévoit qu’un entrepreneur général s’occupera de la construction de A à Z.
Finition intérieure prévue : Céramique aux endroits indiqués sur les plans. Bois franc au rez-de-chaussée et étage. Cabinets (cuisine et salle de bains) en mélamine. Escalier du rez-de-chaussée en bois franc et sous-sol en planches de particules de bois. Électricité, plomberie et ventilation par pièce. Les coûts ne prévoient pas la finition du sous-sol (lorsqu’il y en a un), mais prévoient tout de même son isolation et la finition de gypse au pourtour des murs extérieurs.
Finition extérieure prévue : Les finitions représentés sur les 3D ont été considérés dans les estimés. Les matériaux extérieurs couramment utilisés pour nos plans sont la maçonnerie, le déclin et l’acrylique. Fenêtres en PVC. Toiture en bardeaux d’asphalte lorsque la pente le permet, sinon en membrane d’étanchéité autocollante pour les pentes faibles. Fondation de béton coulé.
Pour un estimé précis qui tiendra compte de vos choix de finition, de la période de construction de votre projet, des matériaux locaux ainsi que des prix des sous-traitants de votre région, il faudra soumettre vos plans LEGUË architecture à un ou plusieurs entrepreneurs et discuter des finitions souhaitées. Il s’agit du processus normal et de la première étape dans votre projet de construction.
Galerie photos
Ë_236
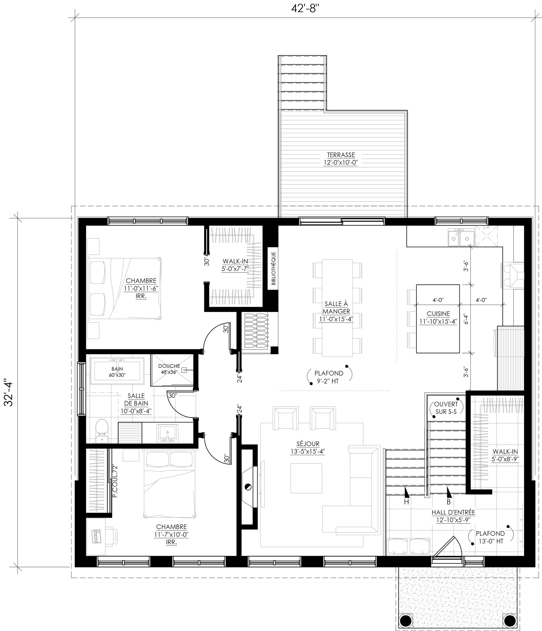
Plan
Plan du Rez-de-chaussée
Plan du sous-sol
cuisine
cuisine
cuisine
Salle à manger
Salle à manger
Séjour
Hall d’entrée
Hall d’entrée
Chambre des maîtres
Salle de bain
Visite virtuelle de notre plan Ë_236
Plan Ë_236 — inversé
Plan
Plan du Rez-de-chaussée
Plan du Sous-sol
Cuisine
Cuisine
Cuisine
Salle à manger
Salle à manger
Séjour
Hall d’entrée
Hall d’entrée
Chambre des maîtres
Salle de bain
Visite virtuelle de notre plan Ë_236
Plan
Plan du Rez-de-chaussée
Plan du sous-sol
cuisine cuisine cuisine
Salle à manger Salle à manger
Séjour
Hall d’entrée Hall d’entrée
Chambre des maîtres
Salle de bain
Visite virtuelle de notre plan Ë_236
Plan du Rez-de-chaussée
Plan du Sous-sol
Cuisine Cuisine Cuisine
Salle à manger Salle à manger
Séjour
Hall d’entrée Hall d’entrée
Chambre des maîtres
Salle de bain
Visite virtuelle de notre plan Ë_236
Coût du plan Ë_236
2 800 $
Modification de plan
Tous les plans sont modifiables.
Vous avez des questions?
Consultez la FAQ
客服
消息
收藏
下载
最近
















