查看完整案例

收藏

下载
Works
Modulorbeat | Architekten Münster
eMobility Cube
Images
Infos
Text und Fakten
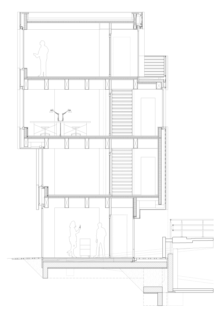
Neue Prototypen: Viergeschossiger Holzbau zur Erprobung von Elektromobilitätsanwendungen und integrierten Mobilitätskonzepten in Wolfsburg
Mit dem eMoblity-Cube wurde an einer städtebaulich herausfordernden Situation ein komplexes Raumprogramm mit verschiedenen Nutzungen realisiert. Das Baugrundstück war sehr begrenzt und bot nur wenig Platz zur Realisierung der vielfältigen Anforderungen. Die Idee des Hauses ist daher die vertikale Stapelung der unterschiedlichen Funktionen zu einem prägnanten viergeschossigen Baukörper, der von vielen Standorten aus sichtbar ist. Die gekannte Metallfassade lässt das Gebäude von unterschiedlichen Standorten ganz unterschiedlich wirken, wie man es von Linsenrasterbildern (Wackelbildern) kennt. Die Mobilität des Betrachters verändert hier die Wahrnehmung, weckt Aufmerksamkeit und macht Lust auf einen Besuch. Mit seiner Konstruktion aus tragenden Vollholzelementen ist es der derzeit einzige viergeschossige Holzbau in Niedersachsen.
Planungszeitraum:
2014
Kooperation:
B+G Ingenieure Bollinger und Grohmann, Berlin
Auftraggeber / Bauherr:
Stadt Wolfsburg
Adresse:
Wolfsburg
Team:
Marc Günnewig
Jan Kampshoff
Birgit Brewe
Fotografen/innen:
Jan Kampshoff
客服
消息
收藏
下载
最近












