查看完整案例

收藏

下载
项目名称:无限台:台州路桥机场航站楼设计
位置:西安
设计单位:同济原作工作室
图片数量:35张
背景:跨跑道扩建机场的新航站楼的契机Background: The opportunity presented by the new terminal building for the cross-runway expansion of the airport.
台州具有聚合性的地理构成特征,区辖椒江、黄岩、路桥三个区,机场位于台州市路桥区,辐射范围较广,与周边各区交通便捷。原有的机场面积较小、功能单一,无法满足日益增长的旅客量,且用地局限,难以进一步发展。因此,在原机场基础上进行扩建——升级跑道提升空侧的运营能力,并在在原有跑道对面新建航站楼,承载主要的公共交通功能。新建航站楼约3.5万平方米,六条登机指廊。
▼跨跑道新建杭州楼,扩展机场总图,New Hangzhou Terminal Building Across Runways, Expanded Airport Master Plan© 同济原作设计工作室
Taizhou’s urban structure links the Jiaojiang, Huangyan, and Luqiao districts, with the airport in Luqiao serving as a critical regional hub. To address the capacity limits and single-function constraints of the existing facility, a new 35,000-square-meter terminal has been constructed opposite the upgraded runway to handle primary public transportation functions and enhance airside operations.
▼无限台——山形海势,和合之境,”Infinite TAI” —Where Mountains Meet the Sea, A Realm of Harmony© 章勇
理念形态:三向无限循环曲面Conceptual Form: The Tri-directional Loop
在设计理念上,我们从台州的城市形象中提炼出三个表达要点:一是“山、海、势”,体现宏大自然与和谐共生;二是“源远流长、多元文化”,体现和合共荣;三是“大气创新”的城市精神,体现和美永续。从城市、生态、文化入手,总结出“无限创新、无限热爱、无限传承”三个表达意群,并将这三个方面通过三个环形进行演绎和表达。
The design philosophy distills Taizhou’s identity—its “Mountains, Sea, and Momentum,” “Diverse Heritage,” and spirit of “Grand Innovation”—into three thematic clusters: Infinite Innovation, Passion, and Heritage. These concepts are physically manifested through three interlocking rings that define the project’s geometric framework.
▼模型照片:三向“无限循环曲面”形态,Model Photo: Tri-directional “Infinite Loop Surface” Form© 同济原作设计工作室
▼空侧鸟瞰照片,Aerial View Photo Source: Taizhou Daily©台州日报
从功能和形态的协同上来说,机场的办票区和候机区刚好支撑了三个环构成的空间形态,在前部的一个环容纳了机场的办票功能,后部的两个环容纳了候机的功能,两个环并列延申衔接登机廊桥。三个环互相融合交织,生成了一个三向扭曲循环相交的曲面,类似与一个“三向莫比乌斯环”无限循环的逻辑关系。每个曲面环都是高低交错,远观屋顶形态与远山形成一种形态的对话关系。
Functionally, the terminal’s morphology is defined by a three-way twisted surface. The layout organizes check-in services within the front ring, while the two rear rings house the waiting areas, extending side-by-side to connect with the boarding bridges. These three rings intertwine to create a tri-directional, cyclically intersecting surface reminiscent of a “tri-directional Möbius strip” governed by infinite looping logic. This fluid form features alternating elevations, establishing a rhythmic visual dialogue with the distant mountain range.
▼起伏的屋面同远山的形态对话关系,The undulating roof engages in a dialogue with the distant mountain’s form© 章勇
曲面的屋顶由下部另一个起伏的曲面支撑,这个曲面在边缘形成“裙边”一样的起伏拱,内部则逐渐贴近并最终融合在屋面的曲面之中,最终形成合二为一的建筑与空间形态,呈现了富有动感的“山形海势,和合圆融”的效果。
▼形态演化与功能协同,Morphological Evolution and Functional Synergy© 同济原作设计工作室
The curved roof is supported by a secondary undulating surface below, which forms a skirt-like arch at the building’s edges. This lower surface gradually converges inward until it merges seamlessly with the roof’s curvature, creating a unified architectural and spatial form. The resulting design harmoniously integrates the dynamic imagery of “mountainous forms and oceanic momentum”.
▼两重曲面的融合,Fusion of Two Double Curved Surfaces© 章勇
▼富有动感未来感的建筑形态,Architectural Form with Dynamic and Futuristic Appeal© 章勇
远观这座建筑,它像一座灵动、无限的“台”,蕴含着“山水之势”与“和合之境”,也暗合着“台州”的“台”字,因此我们将其命名为“无限台”,暗合“三个无限”的内涵表达。值得一提的是,前部的一向的环形曲面也包括了落客区雨篷的功能——由完整建筑形态演化出的这个雨篷将高架桥落地的部分包裹起来,避免了一般情况下高架桥对于建筑整体形态的“切割”,保证航站楼形态的完整。
From a distance, the structure appears as a dynamic, infinite “terrace” that embodies natural harmony and echoes the Chinese character “台” (Tai) from Taizhou. This led to the name “Infinite Tai,” which resonates with the project’s core concept of “Three Infinities”. To ensure structural integrity, the front circular surface incorporates the passenger drop-off canopy as an evolution of the building’s primary form. By enveloping the ground section of the elevated bridge, the design prevents the typical visual disruption caused by external structures, maintaining a cohesive architectural silhouette.
▼从进场路远观机场正面形象,Aerial View of the Airport’s Frontal Profile from the Access Road© 章勇
▼“含入”高架桥后完整的形态,Complete Form After Incorporating the Viaduct© 章勇
▼从高架桥上看机场形态,Aerial View of the Airport from an Overpass© 章勇
▼二层落客区的震撼空间体验,The Stunning Spatial Experience of the Second-Floor Drop-off Area© 章勇
结构美学:结构与空间契合,确定几何逻辑Structural Logic and Aesthetics
不规则的连续扭曲的屋面给结构带来了巨大的挑战,理性的结构体系和感性的形态之间需要链接和整合。最终通过形态的拟合形成了三片不规则屋面、形似连续劈椎拱以及连接二者的金属撑杆构成的结构体系。复杂的曲面以菱形为结构几何单元进行有理化,纯粹、连续、渐变的几何形状同时作为结构单元,构成了连绵的屋顶与连续的拱结构,在机场内部的二层形成了无柱的空间效果。
▼双重曲面结构空间一体化构成体系,Spatial Integration System of Double-Curved Surface Structures©同济原作设计工作室
▼结构构成逻辑分解图,Structural Composition Axonometrics©同济原作设计工作室
The complex, twisted roof is managed through a rational structural system using rhombuses as geometric units. These shapes transition continuously to form the roof and arch structures, resulting in a column-free spatial effect across the airport’s second level.
▼富有韵律的结构单元,Rhythmic Structural Unit© 章勇
▼采光、装饰与结构单元一体化设置,Integrated Design of Daylighting, Decoration, and Structural Units© 章勇
▼顺应结构逻辑形成动感空间,Dynamic Spaces Formed by Following Structural Logic© 章勇
▼双重曲面遵循相同的几何逻辑形成采光空隙,The double-curved surface follows the same geometric logic to form daylighting voids© 章勇
在航站楼中,结构成为了空间的主角,结构构件同时作为装饰构件充分外露,流动感的结构逻辑清晰地展示在室内外空间中,完整的体现了结构美学的魅力,与震撼的空间相得益彰。办票厅内,曲面自然交叠增加了空间层次;候机厅中,拱状的玻璃如同一个个巨大的“眼睛”,为观赏飞机起落创造了独特的景观视角。建筑的空侧(面向停机坪一侧)也因结构拱脚,呈现出韵律丰富的建筑形象。
Inside, the structural logic is celebrated as a decorative element. Diamond-shaped roofs define the check-in hall, while arched glass panels in the departure lounge act as giant “eyes” for observing aircraft. The structural bases also create a rhythmically rich image on the airside of the building.
▼办票大厅内部:曲面自然交叠增加了空间层次,Interior of the Ticketing Hall: Curved surfaces naturally interlock to create spatial depth© 章勇
▼候机厅内,展示结构逻辑形成独特的空间感受,Within the departure lounge, the structural logic creates a distinctive spatial experience© 章勇
▼结构真实性展现形成韵律丰富的空侧立面 Figure 20: Structural authenticity manifests in the formation of rhythmically rich airside facades© 章勇
自然而然的完整院落,融合生态景观的空间组织Integrated Ecological Courtyards。建筑室内设计以简洁和本体化的策略,突出建筑空间的完整逻辑与结构构件的韵律,“无限”环绕的空间自然形成了两个直通出发层的大型完整院落。在空侧和陆侧之间,巧妙地组织了指廊、办票、安检、候机、商业、办公等功能。单个院落的面积达到1000余平方米,保留空侧乘客进入的可能性,为乘客的候机提供完整的生态景观体验。
The “infinite” geometry naturally carves out two large courtyards, each exceeding 1,000 square meters. Positioned between airside and landside functions—including security, waiting areas, and retail—these spaces provide passengers with a complete ecological landscape experience.
▼曲面环绕形成完整的空中院落,Curved surfaces encircle to form a complete aerial courtyard© 章勇
▼内部的完整的院落空间效果,Complete courtyard space effect within the interior© 同济原作工作室
▼候机厅内看到生态院落的效果,View of the ecological courtyard within the departure lounge© 同济原作工作室
景观:顺势而为的“无限环”,设施景观化The Landscape “Infinite Loop”, Facilities Integrated into Landscape
航站楼前的主景观区域下容纳了地下车库,通过地下连廊同机场的地下室相连,使用方便,但是地下车库的风井和楼梯间等凸出地面的“小盒子”却给景观设计提出了挑战:这些小盒子的布局都是根据功能逻辑,但在地面看上去显得杂乱并对建筑正立面产生较大影响。
The landscape design addresses the visual clutter caused by subterranean infrastructure. Functional “boxes,” such as ventilation shafts and stairwells from the underground parking garage, initially threatened the building’s clean facade.
▼流畅通透的景观,Fluid and Transparent Landscape© 章勇
通过对于这些设施布局的反复研究推演,最终提出与航站楼设计一脉相承的设计语言——“无限环”,以一个完整的环串联这些楼梯间出入口,在地面的层面给这些小盒子一个空间秩序,环形也方便连接到外部的各个出入口。环形与相关路径将场地划分为完整的斑块,这些斑块在满足地库荷载要求的前提下被尽可能塑造为连绵起伏的草坡,形成“仙人不见脚”的空间效果,削减了“小盒子”的体量感。与此同时,小盒子的外部采用镜面不锈钢包覆,并在周围种植了小乔木,进一步让小盒子融合到周边的景观之中。
Applying the terminal’s “Infinite Loop” language, the site is sculpted into undulating grassy slopes that minimize the visual bulk of these utility structures. The boxes themselves are clad in mirror-finished stainless steel and surrounded by trees to merge seamlessly into the landscape.
▼在无限环节点处设置精巧的弧形三角的景观亭,A landscape pavilion featuring an ingeniously designed curved triangular structure at the infinite joint point©章勇
▼“小盒子”上的景观构架,与机场景观协调,Landscape framework on the “small box,” harmonizing with the airport landscape©章勇
场地中部无法消隐的小盒子之上,结合出入口雨棚呼应航站楼的几何形态基因设置了圆弧三角形形状的构架顶棚,并在环形路径的关键部分依此形态设置遮阳休憩亭,让景观更具公共性、人性化和体验感。顺势而为的“无限环”,柔和起伏、连绵舒展的草坡,点缀着精巧轻盈的景观亭,在解决了设施景观化的需求的同时,更好的烘托了航站楼的主体性。
Arc-triangular canopies and lightweight pavilions echo the terminal’s geometric DNA along a circular path. These features, combined with the natural contours of the slopes, enhance public accessibility while highlighting the terminal building’s central role.
▼景观烘托航站楼的主体,共同塑造机场形象,The landscape complements the terminal building, collectively shaping the airport’s image© 章勇
▼独具特色、精巧灵动的城市门户,A Distinctive, Exquisitely Designed Gateway to the City© 章勇
“无限台”,从抽象的文化意涵出发,将山水之势、和合之境具象化为自由飘逸的复合曲面,以结构理性建立形态和空间逻辑,形成完整院落与生态体验,并将形态特征基因融入到景观设计中,将设施景观化演绎,成为独具特色、精巧灵动的城市门户标志性建筑。
The “Infinite TAI” translates cultural momentum into a free-flowing, composite surface where structural rationality meets ecological experience. It transforms a functional transport facility into a dynamic and elegant landmark for the city.
▼总平面图,site plan© 同济原作设计工作室
▼航站楼总平面图,terminal master plan© 同济原作设计工作室
▼12.500m屋顶夹层平面图,roof mezzanine plan© 同济原作设计工作室
▼±0.000m一层平面图,ground floor plan© 同济原作设计工作室
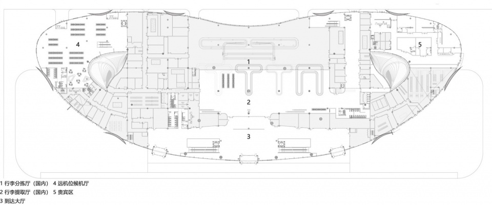
▼6.500m二层平面图,second floor plan© 同济原作设计工作室
▼立面图,elevation© 同济原作设计工作室
▼剖面图,section© 同济原作设计工作室
项目名称:台州路桥机场航站楼
项目地点:台州市
项目设计时间:2018年
项目竣工时间:2024年
航站楼方案设计:同济大学建筑设计研究院(集团)有限公司 原作设计工作室
主创建筑师:章明 张姿
项目建筑师:王绪男
建筑设计团队:王绪男、丁纯、丁阔、张林琦、王祥、闫一飞 、郭璐炜、夏孔深、谢巍
室内设计团队:王绪男 王祥 闫一飞 谢巍
景观设计团队:王绪男 朱亦婷 方濒曦
航站楼施工图设计:同济大学建筑设计研究院(集团)有限公司
项目总负责人:章明 张少森
建筑设计团队:潘维怡 王婷 王绪男 刘梦迪 王祥
结构设计团队:刘传平 宋红召 陈子旸
钢结构设计团队:丁洁民 张峥 黄卓驹 周旋 项圣懿
幕墙及屋面设计团队:王垒 张雪莲 胡逸伦 刘洋 黄杰
灯光设计团队:杨秀 徐霞青 王信 温海兰 卞晨
总图及机电设计:上海民航新时代机场设计研究院有限公司
设计总负责人:熊宏钧
电气设计:严晓波 李嘉诚
暖通设计:崔沈夷 闫鹏宇
给排水设计:申海虹 陆辉
机场工艺设计:王冬
建设单位:台州机场投资发展有限公司
施工方:中国建筑第八工程局有限公司
客服
消息
收藏
下载
最近












































