查看完整案例

收藏

下载
诠释“禅意栖居”之现代诗篇
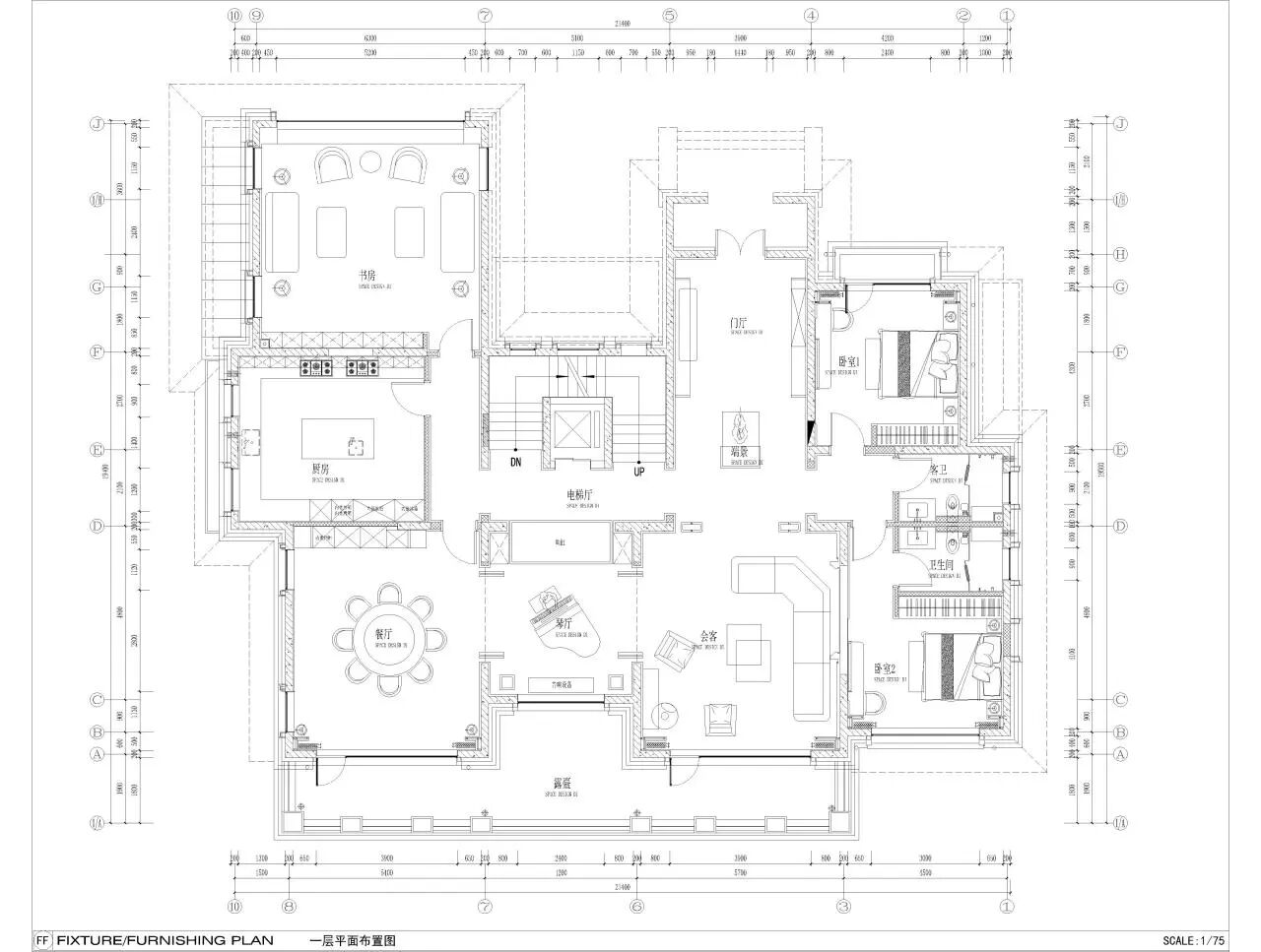
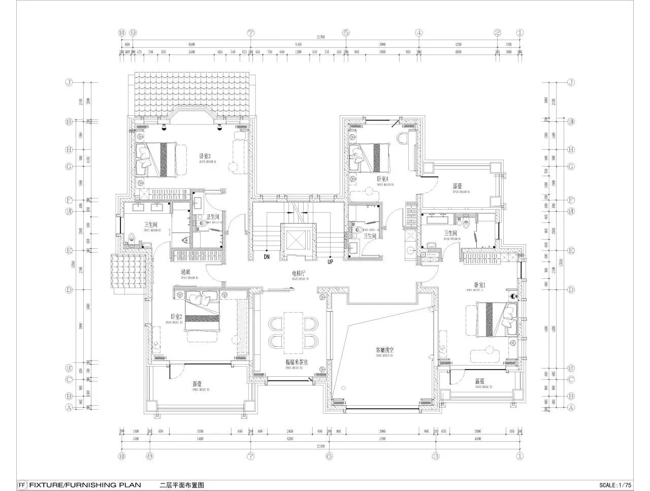
| 项目平面图
左右滑动,查看更多 →
依次为:
B1、1F、2F
新中式禅意为魂,融东方美学之韵与现代设计之语,构筑一方兼具文化深蕴与舒适质感之居所。材质、空间布局、细节雕琢等维度,诠释“禅意栖居”之现代诗篇……
原木是纸,光影作笔,将盆景的翠、扇面的墨,轻轻写进空间的留白里。风过处,木纹漾成涟漪,连呼吸都沾了三分山水气。
茶席沉在木色里,灯笼漏下软光,纸屏滤过的风裹着竹影,落在茶盏边成了浅纹。连呼吸都慢成轻烟,只余茶雾与光影,在室间织着松弛的静。
竹影栖于木墙,光缕织进茶席——这方室间,把山林的静,酿成了日常的暖。
于木色温润中,寻得一方松弛天地。自然光影漫过窗棂,落于素雅的布艺与肌理温润的石材之上,东方水墨的留白意趣,与原木柜体的通透收纳相映成趣。
柔纱吊灯漫开的光晕,落于木纹与石材的肌理之上,格栅半掩间,是窗外的葱茏绿意,也是室内的东方意韵。
项目信息
项目名称:天恒·半山世家
项目地点:北京,怀柔
项目面积:1100平方米
设计时间:2024年12月
完工时间:2025年7月
设计公司:北京泛恩国际建筑设计顾问有限公司
主创设计师:史湛铭、王阳
施工团队:北京壹起建筑有限公司
项目主材:石材、木饰面
摄影师:阿刁
前:
史湛铭,
铭设计创始人兼总设计师。
后:
王阳,
铭设计 合伙人
史湛铭,
铭设计创始人兼总设计师。
从事设计二十余年,近300 套设计作品。
设计主张自然的设计语言营造富有松弛感的设计空间。
“自然·健康·性格·人·情·味”——一切都是由生命开始,最自然的是最美的。不要刻意,经典是不经意间的流露。不要放弃思考,在痛并快乐的思想中成长。创意不是要人惊异它的形式和素材,而应该让人惊异于她居然来自看似平凡的日常生活,不断地开发出这些创意才是真正的设计。
北京泛恩国际建筑设计顾问有限公司由知名设计师史湛铭于2013年创立,主要从事国内外建筑设计咨询,室内外设计与规划等领域。
客服
消息
收藏
下载
最近







































