查看完整案例

收藏

下载
Woning Sterrebeek (1938)
2002
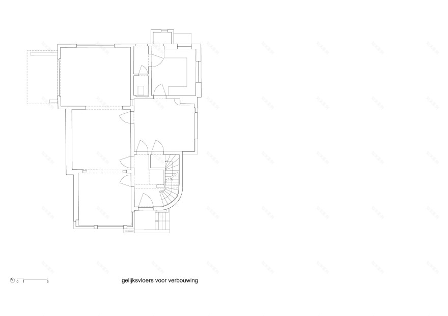
De woning werd gebouwd in 1938 en tijdens de jaren 1960 aan de noordzijde uitgebreid en verbouwd. Hoewel het om een vrijstaande en achteringelegen woning gaat, zijn de vier zijden heel ongelijkwaardig. De zuid- en oostzijde zijn verzorgd gedetailleerd en uitgewerkt in een stijl tussen Modernisme en Art Deco; de noordzijde komt over als een achtergevel met aanbouwen; de westzijde is nagenoeg volledig blind terwijl het beste deel van de tuin juist aan die kant ligt.
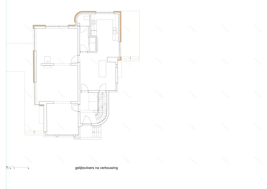
Om de verschijning van het gebouw evenwichtiger en de aanbouwen functioneler te maken, wikkelen we een schil rond de kwalijke zijden van de woning. De schil bevat een kleine uitbreiding van het woonvolume evenals terrassen, maar is ook soms enkel een voorzetgevel. Het geheel vertrapt en verspringt lustig en is uitgevoerd in geelbruin metselwerk met schuinverzonken langse voegen en dunne stootvoegen. Op die manier is het analoog maar niet gelijk aan de karakteristieke architectuurstijl van deze woning uit het Interbellum.
客服
消息
收藏
下载
最近








