查看完整案例

收藏

下载
Casa Sopelana
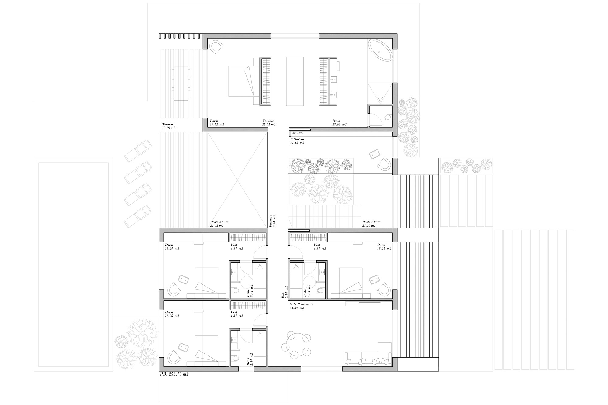
Vivienda de más de 500m² en la que la iluminación natural y como accede al interior de la casa ha sido una de las fases fundamentales del diseño. Piscina que confluye con la casa en la zona de salón y estar para lograr que el reflejo de luz sobre la lámina de agua se convierta en una textura viva y cambiante en todo momento en el interior de la vivienda. Espacios a doble altura, patios, pasarela de comunicación entre la zona de adultos y la zona infantil, espacio multiusos (de juego o estudio) para los pequeños de la casa, zona de garaje abierta mediante cristal a la casa. Mil y un detalles pensados y recreados para diseñar una casa a medida de sus futuros moradores.
Casa Sopelana
Vivienda de más de 500m² en la que la iluminación natural y como accede al interior de la casa ha sido una de las fases fundamentales del diseño. Piscina que confluye con la casa en la zona de salón y estar para lograr que el reflejo de luz sobre la lámina de agua se convierta en una textura viva y cambiante en todo momento en el interior de la vivienda. Espacios a doble altura, patios, pasarela de comunicación entre la zona de adultos y la zona infantil, espacio multiusos (de juego o estudio) para los pequeños de la casa, zona de garaje abierta mediante cristal a la casa. Mil y un detalles pensados y recreados para diseñar una casa a medida de sus futuros moradores.
Vivienda industrializada diseñada por EXarchitects en una de las zonas más lujosas de Madrid.
Vivienda de más de 500m² en la que la iluminación natural y como accede al interior de la casa ha sido una de las fases fundamentales del diseño. Piscina que confluye con la casa en la zona de salón y estar para lograr que el reflejo de luz sobre la lámina de agua se convierta en una textura viva y cambiante en todo momento en el interior de la vivienda.
Espacios a doble altura, patios, pasarela de comunicación entre la zona de adultos y la zona infantil, espacio multiusos (de juego o estudio) para los pequeños de la casa, zona de garaje abierta mediante cristal a la casa. Mil y un detalles pensados y recreados para diseñar una casa a medida de sus futuros moradores.
Construida en Hormigón prefabricado blanco y de primera calidad y con grandes espacios acristalados y las más altas calidades.
Infografías del proyecto:
Planimetría:
Datos del proyecto
Título del proyecto: Casa Sopelana
Proyecto: EXarchitects
Estado: Anteproyecto
Año: 2023-XX
Constructora: :
Ecotech House
.
Ubicación: Aravaca (Madrid)
Tipología: Vivienda unifamiliar industrializada
Infografías:
EXarchitects
客服
消息
收藏
下载
最近













