查看完整案例

收藏

下载
Logement collectif rue coli
Restructuration d’un bâtiment en 5 logements
Mission Complète (hors embellissement)
Livré en juin 2017
Où : Saint Martin d’Hères (38)
Pour : Client privé
Budget : 110 000 euros HT
Avec : SORAETEC (BET structure)
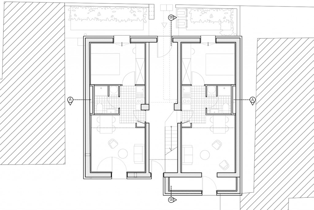
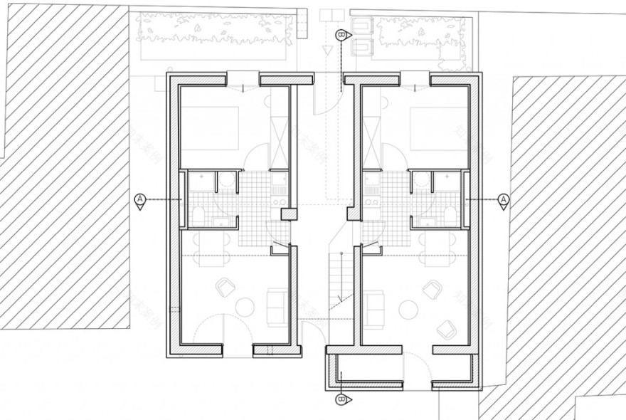
Les 5 logements aménagés dans cette bâtisse s’organisent autour de l’escalier existant. Deux T3 et trois T2 sont créés. Les appartements sont tous organisés selon le même principe : une pièce de vie au sud donnant sur le jardin, un bloc central regroupant les pièces humides (salle de bain et cuisine) et des chambres au nord donnant sur la rue la plus clame. Dans cette logiques, les zones de nuit et de jour sont clairement séparés et se superposent pour limiter les nuisances sonores entre logements.
Vue depuis la rue
Plan du rez-de-chaussée
Plan de niveau 1
Coupe AA
Séjour d’un T2, vue sur le jardin au sud
Coin cuisine et entrée d’un T2
Vue vers la chambre d’un T2
Vue depuis le séjour du T3 vers les chambres
Vue vers le séjour du T3 depuis l’entrée
Vue depuis le jardin
客服
消息
收藏
下载
最近












