查看完整案例

收藏

下载
Small size home 20
Small size home 20
Overview
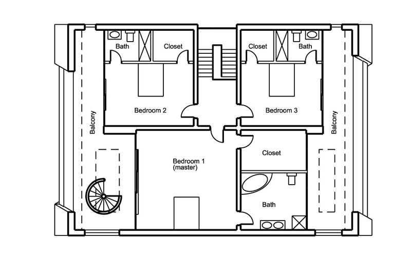
Compact three bed / bath home in contemporary style, offers a clean lined, modern aesthetic at an affordable price. Features a double carport, balconies to front and rear with a curved metal staircase linking the rear balcony to the garden / pool area. Floor to ceiling glazing is recessed or shaded to avoid excessive solar insolation in hot sunny climates. Preferred shell construction is in reinforced concrete.
Price:
£1,000.00
Rate this:
5
Average:
5
(
1
vote)
Plan layouts
Ground Floor plan:
First Floor Plan:
Specification
Frontage width:
13.50m
Usable floor area:
267.92m2
Footprint area:
268.11m2
Recommended minimum site width:
18.00m
Room areas
Bedroom 1:
69.21m2
Bedroom 2:
34.86m2
Bedroom 3:
31.78m2
Lounge / kitchen / dining:
75.74m2
Carport:
31.50m2
Interior renders
客服
消息
收藏
下载
最近
















