查看完整案例

收藏

下载
Project name:
CODE
Alvaro Moragrega / arquitecto
Description
Location: Guadalajara, México
Constructor: M3 creación
Plot:
Project Area:
Year: 2015
Design Team: Carlos Ruiz Palomino
Photographs: Fernanda Leonel, Alvaro Moragrega
Structural Design: Cero Motion - Juan Jesús Aguirre
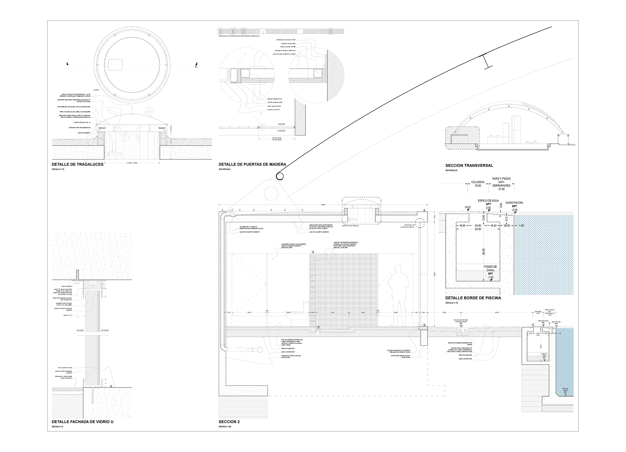
CODE Paradero is an aquatics center which features an Olympic swimming pool, a diving pool with its diving platforms, services and technical equipment.
Moreover, the Olympic swimming pool fulfils the regulations of the International Swimming Federation (Fédération Internationale de Natation or FINA).
The whole surface of the swimming and diving pools include an esplanade which is made out of ceramic non-split floor facing towards the northern racquetball area, and to the western and eastern areas where equipment gateway and general services are located respectively.
General machinery and auxiliary services are located inside an enclosed concrete space that is at the same time, placed among the structure that supports the cover of the center.
At the southern part of the complex the diving pool is located. The diving platforms, which also obey FINA normative, are a creative and elaborated sculpture made out of concrete that feature the Olympic pool area. Additionally, stairs are located on the center of the two principal towers.
A translucent white architectural membrane of 3,200 m2 covers the whole areas of the aquatic center.
客服
消息
收藏
下载
最近



































