查看完整案例

收藏

下载
Over the Riverbank
璞園 高過岸
座落在南軟園區、基隆河畔的璞園「高過岸」,是我們事務所成立以來的第一個完整設計案。過程中發展的十幾個量體模型方案,我們翻轉了傳統面向大馬路的配置原則,創造朝向360度開放的平面架構。使得住宅內部得到許多個擁有兩面採光和景觀的空間。
我們把每一個住宅單元都當作一個收藏「生活最美好事物」的「藏寶格」。每個藏寶格都擁有一點不同於別戶的特色:多一個書房、多一間茶室、能享受落地陽光的大一點的主臥室、多一個空中花園、多一棵樹......。九樓以下採雙併格局,到了十樓以上合併為一層一戶,以一個充滿陽光的起居室及延伸的轉角陽台連接兩翼。我們在平面與立面、空間與造型之間反覆琢磨,立面的表情自然地成型。
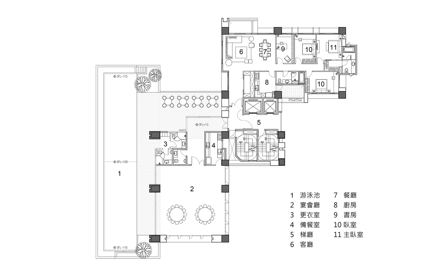
在高高的天空創造能夠做白日夢的有趣空間之後,我們決定讓一座無邊際游泳池也輕巧地浮在樹梢。在結構技師的協助下,得以讓泳池結構懸臂達八米,突破傳統的「基座」意象。泳池的上下各鑲嵌著一個玻璃盒子,分別作為大廳和會所。
Services
Architecture
參與人員
陳世英
劉宇傑
雷品昕
張舒景
建築師
吳非士建築師事務所
(建築規劃)
Exterior
Plan
客服
消息
收藏
下载
最近












