查看完整案例

收藏

下载

翻译
Architects:Atelier Tom Vanhee
Area:227m²
Year:2024
Photographs:Filip Dujardin
Manufacturers:DuPont,Cedral,RMC,Resitrix,SVK,Unknown (Removed),Unknown (Removed)
Lead Architects:Tom Vanhee
Category:Residential Architecture,Houses,Refurbishment
Design Team:Atelier Tom Vanhee
Engineering & Consulting > Structural:Lime
General Contractor:Moldo Construct, Kurt Van Deynse Interior
City:Bruxelles
Country:Belgium
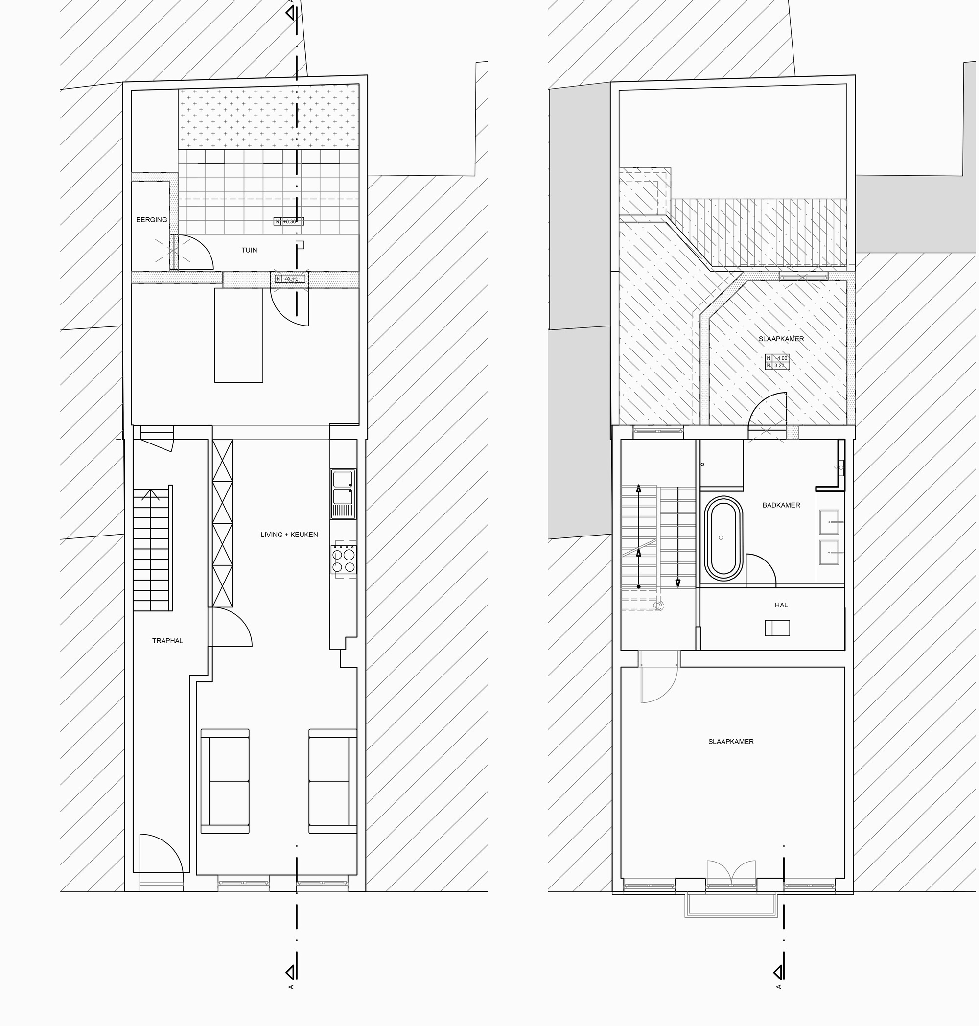
Text description provided by the architects. The project concerns the renovation and extension of a townhouse with a basement, two above-ground floors, and an attic. The existing enclosed rear extensions were structurally unsound and obstructed the relationship with the outdoor space, resulting in limited daylight on the rear of the ground floor. The client wished to improve daylight penetration and strengthen the connection with the garden.
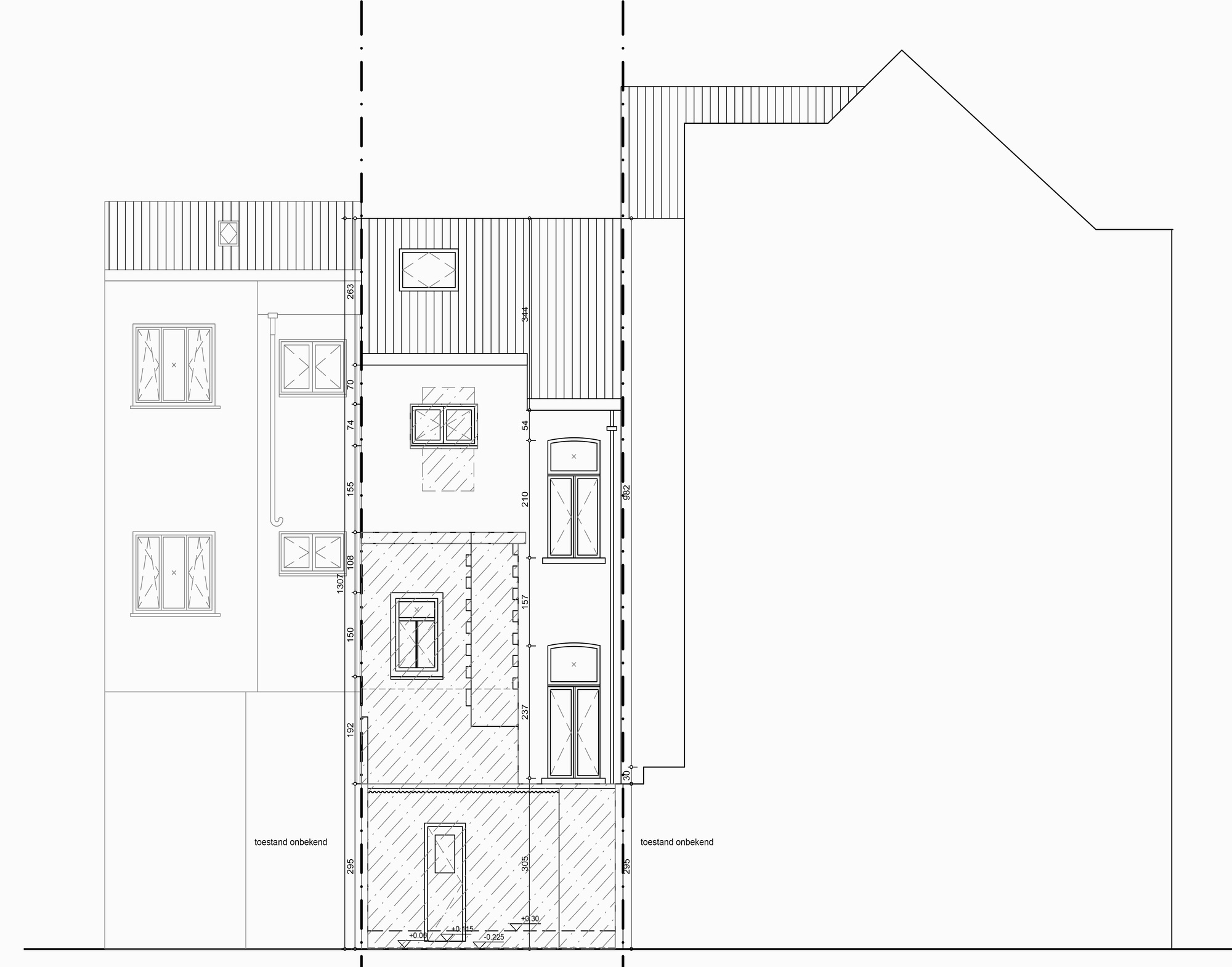
The dilapidated extensions on the ground floor and first floor were demolished. A new diverging extension was added at ground level, opening up towards light and the garden. The rear façade of this new volume consists of a fully glazed wooden window assembly with two opening French doors and three fixed windows. The sloping roof enhances spatial quality and allows for the insertion of a rooflight in the existing rear façade of the main building, bringing daylight deep into the dwelling. Half of the outdoor space was depaved and planted, transforming the garden into a visual extension of the living area. On warmer days, the large opening windows allow the interior to extend outdoors.
Environmental considerations guided the design. The roof structure is executed with visible slanted wooden beams, a renewable and CO₂-storing material that enhances spatial perception and adds warmth. The house is situated on a sloping site: the street level at the front lies lower than the garden at the rear, with the interior level positioned in between. This landscape level is brought indoors, as the terrazzo-tiled terrace floor continues into the living space and is integrated as seating and storage. Part of the outdoor area is transformed into a garden with a sun terrace. Natural sun shading is provided by a temporary shading cloth or guided climbing plants such as grapevine or wisteria between the party walls. Elements such as a hammock, a swing attached to a beam, and lightweight terrace furniture further integrate the garden into daily living.
The kitchen is located in the existing rear part of the living space. The selected materials and interventions create continuity from front to back while offering a sequence of living zones with varying light conditions and spatial qualities: a reading nook, spaces for plants, a dining area with a bench, a place for the piano, seating areas, a breakfast corner, a convivial kitchen-living space, and a sunny terrace.
A toilet is added in the stair hall, improving accessibility. A side wall in patterned glass introduces daylight. On the rear façade, a new window is added at level +1, and at level +2, an existing opening is enlarged and fitted with new wooden joinery. The rear façade and party wall are insulated and finished with slate tiles. Subtle variations in slate colour above the windows reference the restrained ornamentation of traditional townhouses and break the monotony of the rear elevation.
The new extension increases living space, spatial quality, and daylight, while activating a previously underused outdoor area. Material choices were carefully assessed based on life cycle analysis, with maximum reuse and retention of existing materials.
Project gallery
客服
消息
收藏
下载
最近




















