查看完整案例

收藏

下载
APARTAMENT z OGRÓDKIEM
Warszawa
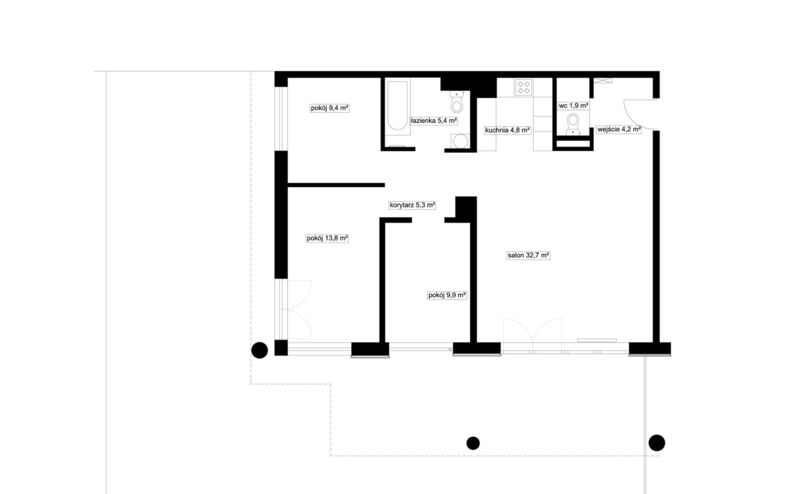
PRZED
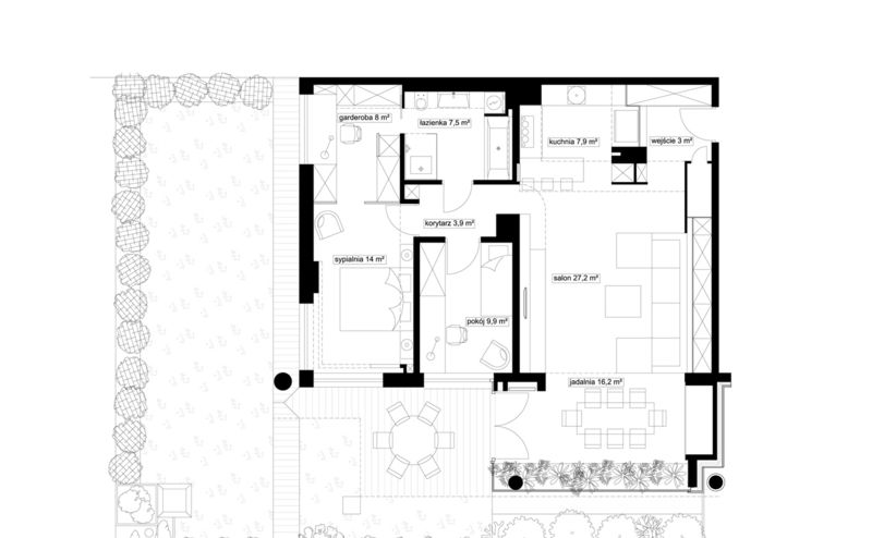
PO REALIZACJI
Oranżeria
Umywalka
Łazienka
kuchnia ze sztucznym świetlikiem
śniadanie
Pokój dzienny
Pokój dzienny z akwarium w tle
TV
w stronę kuchni
rośliny za stołem żywią się tym, co pozostawią rybki w akwarium... człowiek nic tu nie ma do roboty
Szczegóły projektu
Opis Projektu:
Warszawa. Stare Włochy. Spokojna dzielnica. Ponad 100 metrowy apartament z ponad 100 metrowym ogródkiem. Zewnętrzne wnika do wnętrza, a przyroda staje się architekturą. Ogród podlewa deszcz a w mieszkaniu ekosystem roślin i ryb w akwarium zapewnia właścicielom bezobsługowy chillout. Mieszkanie posiada głęboki trakt i ciemną kuchnię. Przy dzisiejszej technologii LED kuchnia bez okna, to nie problem. Układ funkcjonalny zakładał likwidacje do minimum ciągów komunikacyjnych i tak dla 116m2 korytarze to 6m2 powierzchni użytkowej. Każdy mebel poza stołem i krzesłami jest zaprojektowany i wykonany indywidualnie.
Powierzchnia całkowita:
116 m2
Klient:
prywatny
Realizacja:
2005/2006
Zobacz online:
brak danych
客服
消息
收藏
下载
最近
















