查看完整案例

收藏

下载
Tranzit Ház
2021
Tranzit Ház Közösségi Tér és Képzési Központ építészeti tervpályázat. A Puskin utca 4. szám alatt álló egykor a Magyar Tisztségviselők Országos Egyesületének székházaként működő épület átalakítására és bővítésére kiírt országos tervpályázat, 3. díj
Felelős tervezők:
Biri Balázs, Szabó Levente
Munkatársak:
Surján Borbála, Szilágyi Szabolcs
Látványterv:
Gazdag Zoltán
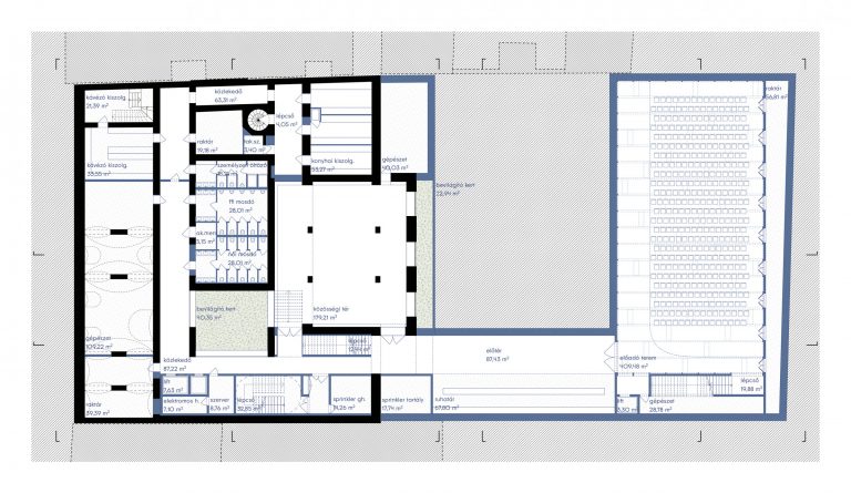
A pályázatban megfogalmazott tervezési program egy új, nagyléptékű teret foglal magába, mely befogadására a meglévő műemléki épület – értékeinek csorbulása nélkül – nem alkalmas. Pályázatunk az új nagytermet a telek tömbbelső felőli végébe javasolja elhelyezni, ezzel távolságot tartva mind a műemlék, mind a környező épületektől. Célunk a pesti belváros sűrű szövetében a telken található gesztenyefás belső kert megtartása, mely a tervezett elrendezésnek köszönhetően a két épület, a meglévő műemlék és az új bővítés közé kerül, így mind a két ház funkcionálisan és térileg is tud kapcsolódni az ezen a területen kuriózumnak tekinthető, hangulatos belső kerthez. Koncepciónk alapeleme az egykori épület régi fényének visszaállítása és a jelentős mértékű, kortárs építészeti eszközökkel történő bővítése anélkül, hogy a műemléképület integritása csorbát szenvedne. Az így megszülető épületegyüttesben a történeti atmoszféra és a kortárs építészeti karakter egymást erősítve képes jelen lenni. A meglévő ház és az új épület földalatti, felülvilágított összekötése révén az új épület a tömbbelsőbe helyezett, szinte szabadon álló, a kerítésből „kinövő” épületként tud viselkedni, nem zár el a szomszéd épületek felé.
A javaslatunk a tervezési programban megfogalmazott, összetett funkciókat egyértelműen elválasztva alakítja ki. A műemléki épület földszintjén, közvetlen utcai kapcsolattal kap helyet a kávézó és közvetlen kerti kapcsolattal az étterem. Az 1. emeleten helyeztük el a kulturális célú és kiállító tereket. A 2. emelet utcai traktusában az alapítványi irodák, az udvari traktusában és a tetőtérben pedig a co-working irodák kapnak helyet. A pinceszinten az új épület nagyterméhez kapcsolódóan helyeztük el az alapítványi klubélet kiszolgálására is alkalmas közösségi teret, mely pozíciójának köszönhetően a nagyteremmel közösen, akár szekcióteremként is tud működni.
Hetedik Műterem Kft.
Cím:
1111 Budapest, Bertalan Lajos u. 19.
E-mail:
hetedik@hetedik.hu
客服
消息
收藏
下载
最近




















