查看完整案例

收藏

下载
Complexe sportif Marcel Pagnol
Complexe sportif Marcel Pagnol à Veauche (42)
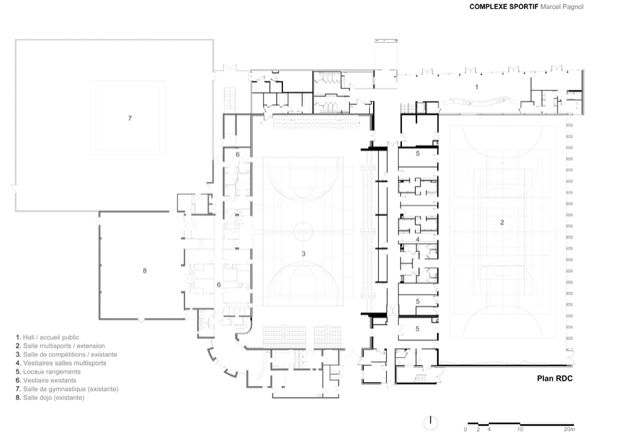
Restructuration partielle du gymnase existant avec création d'une salle de basket niveau national (700 places). Extension du complexe existant par une salle de sport destinée prioritairement au collège voisin, avec structure d'escalade et gradins (250 places).
Maître d'Ouvrage
VILLE DE VEAUCHE
Montant travaux
3 800 000 €HT
Avancement
Livré en 2014
Surface neuve
2 289 m2
Surface réhabilitée
1 136 m2
Type de travaux
restructuration et extension neuve
Crédit photos
Jérôme Ricolleau
Dans un nouveau parc urbain, le projet architectural construit un morphing englobant 3 générations de bâtiment (COSEC initial restructuré, extension salle gymnastique années 2000 et extension faisant l'objet du projet) : des volumes et des matérialités simples qui s'inscrivent dans un contexte hétérogène d'équipements publics. Outre l'extension-restructuration et les effets d'usage, le projet prévoit également une amélioration de la performance énergétique de l'ensemble.
Nous avons proposé, dans le cadre du concours et du budget, de rénover énergétiquement la salle existante, ainsi que ses façades.
Nous avons donc cherché, par notre intervention, à « lisser » l’ensemble, cherchant à redonner une unité au complexe sportif, mais aussi en engageant ce que nous appelons des « politesses » avec notre environnement existant et à venir.
L’humilité, c’est donc ici d’inscrire un nouvel équipement un peu comme dans ces effets informatiques de « morphing » ou 2 images s’altèrent pour en créer une 3ème qui contient les 2 premières. Pour cela, nous avons travaillé à plusieurs niveaux de conception: reprise de matériaux et couleurs existants sur le bâtiment existant et sur le nouveau collège, proportions de composition, continuités d’alignement et mise en cohérence avec le plan des aménagements extérieurs par la création d’un parvis linéaire.
客服
消息
收藏
下载
最近














