查看完整案例

收藏

下载
Ilôt SY22B, ZAC Sycomore,
Bussy St Georges
Programme:
99 logements + stationnement infra
Maîtrise d’ouvrage:
EDELIS
Maîtrise d’oeuvre:
palast (mandataire) + Résonnance (paysage) + ALTO ingénierie + KORELL + EVP
Mission :
mission VISA
Budget :
12 millions d’euros
Lieu :
Ilôt SY22B Zac Sycomore, Bussy St-Georges
Certification:
Label E+C- niv.E2C1, Biosourcé niv.2, NF Habitat HQE niveau « Très Performant », BBC Effinergie 2017
Calendrier
: démarrage chantier Décembre 2023
Chargé de projet :
Nicolas Debest
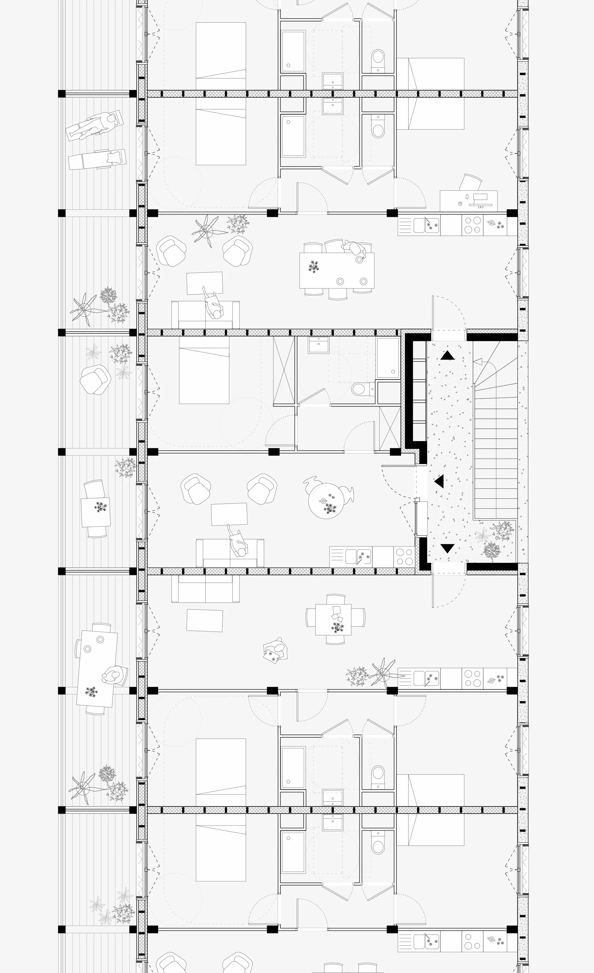
“ La conception des logements est guidée par les vues offertes sur ces grands espaces plantés à différentes échelles. Chaque logement possède un espace extérieur généreux d’au moins 15m². Un système de pièce de vie servante permet de supprimer les couloirs et d’offrir uniquement des m² utiles et habitables et des pièces de vies multi orientées et donc flexibles dans leurs utilisations. Le projet développe une identité architecturale à la fois domestique et unitaire pour l’ensemble des bâtiments aux hauteurs et échelles variées, organisée autour des espaces extérieurs en structure bois. ”
客服
消息
收藏
下载
最近

























