查看完整案例

收藏

下载
荃灣 愛炫美案例
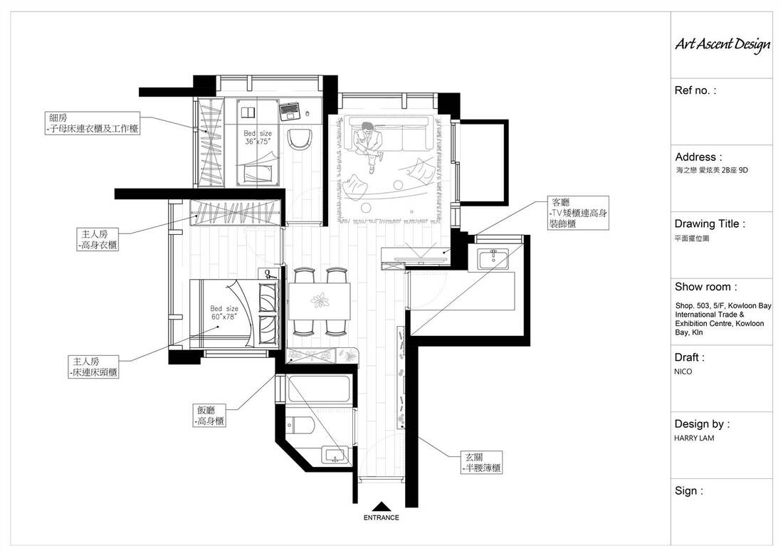
單位介紹:海之戀.愛炫美
實用面積:532呎
空間間隔:2房1廁1廚
設計風格:簡約輕奢風
介紹︰
這個單位實用面積是532呎,如何利用不同物料特別的設計,打造出一個又和諧舒適的單位,設計上到底如何兼顧?
玄關區域:
當入到玄關後,為屋主打造了超長的鞋櫃,足夠的收納的空間,用上白色的櫃門,和灰鏡對比,增加空間的立體感,使空間突出簡約輕奢風格。
客飯廳區域:
飯廳有幅牆身,設計團隊為這幅牆身做了一個特別的設計,利用灰鏡、鋼材、木材及一些布料去打造這幅牆身,使到飯廳的效果較為溫馨及明亮些。
在電視櫃同樣以相同做了一個特別的牆身設計,以不同物料拼貼,增加空間的層次感,使到單位的時尚感較重。
客房區域:
這間是工作房,有一張大書台,方便日常屋主工作。同時,有個休閒區,可給屋主當閲讀用。櫃身下是一張可以拉出子母床,在有需要時才使用,可以感少空間的擠迫,又可以善用房間內的空間。
主人房區域:
主人房就與客飯廳區域做了一個呼應,櫃門用了不同物料拼貼,為屋主提供足夠收納空間為,同時打造一個高貴大方的空間。
寢區位置打造床頭櫃,以圓邊設計,弧線修邊營造柔和感覺。深灰的牆紙色裱貼,再加上滲光效果,令整個空間帶來更突出立體感。
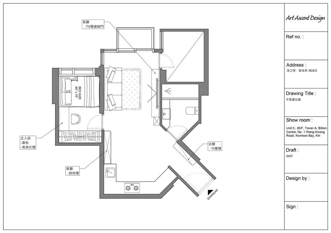
單位介紹:海之戀.愛炫美
實用面積:530呎
空間間隔:2房1廁1廚
設計風格:簡約輕奢風
介绍:
今次我們要採用不同款式物料,為客人打造一個輕奢華感覺的空間,設計團隊會如何打造出屋主們想要的空間?
玄關區域:
・在門口做了一個懸浮式的鞋櫃,用燈光的效果,減少空問的壓迫感,鞋櫃上亦留白了一個空間,可以讓屋主放自己喜歡的飾物。
#客廳區域:
設計團隊採用特色的云石打造電視背,加入玫瑰金拉絲,再用燈光的效果,營造有種簡單奢華的感覺。
弧形的高身飾物櫃,黎明色的門板,配合滲光效果,飾物櫃預留空間,給屋主擺放飾物,令整體空間更有又優雅又格調。
條子暗門的設計,把空間連接起來,模糊了空間的壓迫感。
廚櫃旁邊,設計團隊打造一個咖啡閣,同時又有足夠的儲物空間的高身櫃,門板再搭配灰鏡,出一個深淺對比,使空間更有層次感。
#主人房區域:
為了方便屋主,主人房打造高身衣櫃打造連梳妝檯設計,為屋主提供了一個足夠的使用空間。
床背做了特色背板,選用了白色咕臣材質,再配搭玫瑰金拉絲鋼配,整個組合以簡約又輕奢風格。
衣櫃同樣也白色門板為主,配上玫瑰金玻璃門,令整間主人房色調看上去更一致,又不失層次感。
愛炫美案例
單位介紹:海之戀‧愛炫美
實用面積:-
設計風格:-
空間間隔:
2房/2廁
客服
消息
收藏
下载
最近
































