查看完整案例

收藏

下载
architecten Els Claessens Tania Vandenbussche
Parkschool Leuven
2011
i.s.m. Tom Thys architecten
stabiliteit
T-TE (Technum Tractebel Engineering)
technieken
T-TE (Technum Tractebel Engineering)
De site heeft twee gezichten: de stadskant met het kloostergebouw door Victor Broos en de parkkant met de 19de eeuwse kloostervleugel. De oudste kloostervleugel zal worden afgebroken en biedt plaats voor de nieuwe school. De voorbouw in een opmerkelijke baksteenarchitectuur is beschermd en biedt plaats aan allerhande buitenschoolse activiteiten. Een link tussen de nieuwe school en de bestaande voorbouw is niet gevraagd maar lijkt ons een mogelijkheid die moet worden geboden.
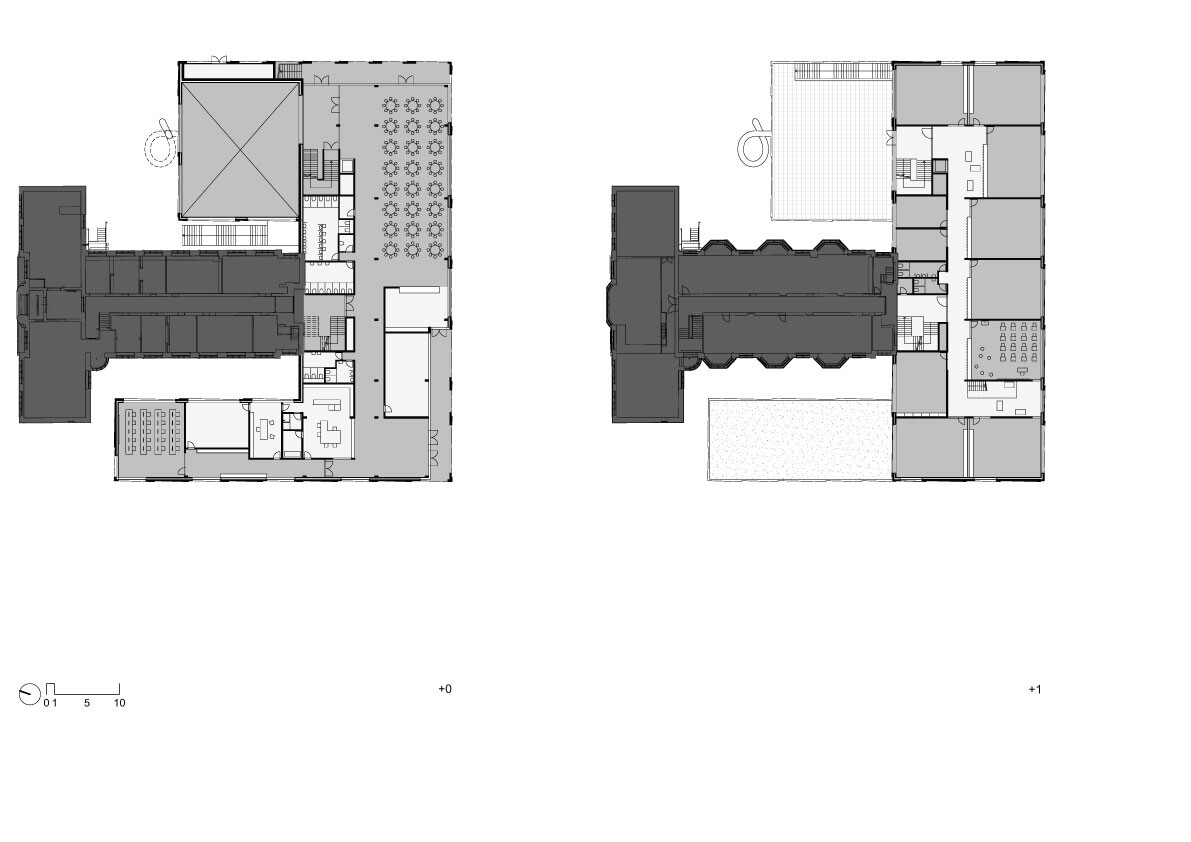
Een solide, 4 bouwlagen hoog hoofdvolume begrenst de voorrmalige kloosterhof, twee lage zijarmen reiken langs het bestaande gebouw naar de Ruelensvest. Elke gevel van het gebouw realiseert op een specifieke manier de relatie met de buitenruimte en de bestaande gebouwen. In zijn totaliteit vervolledigt het nieuwe volume het bestaande gebouw met een sterke vorm.
Het gelijkvloers benadrukt het open karakter van de school en de relatie met de buitenwereld. Het heeft een grote visuele transparantie, en kan optimaal ingezet worden in de werking als brede school. De clusters van leslokalen en bijhorende functies worden ondergebracht op de verdiepingen. Zo wordt de leefwereld van de kinderen in zekere mate afgeschermd. Elke cluster is opgebouwd rond een kern, dat als centrum identiteit verschaft, en een huiselijke sfeer voor de leeromgeving van het kind. Er is echter geen strikte scheiding tussen de clusters, zodat flexibiliteit doorheen de tijd gewaarborgd blijft.
De ervaring van het park als stimulerende leefomgeving voor de school wordt gemaximaliseerd door de grote openheid van het gebouw van binnen naar buiten toe. Het park zien we als drie zones met een verschillend publiek karakter. Het gras- veld blijft continu publiek toegankelijk, de bomenkrans wordt afgesloten tijdens de schooluren en de zone tussen Ruelens- vest en schoolgebouw blijft steeds afgesloten als kleuter- speelplaats. Deze krijgt een directe relatie met het gebouw d.m.v. een dakterras dat verbonden is met een buitentrap en glijbaan.
客服
消息
收藏
下载
最近









