查看完整案例

收藏

下载
SKATEPARK NEPAL 1ªFASE
1ª FASE
SKATEPARK NEPAL
| 2015
SKATEPARK NEPAL 1ªFASE
1ª FASE
SKATEPARK NEPAL
| 2015
(Alcobendas, Madrid, España)
El skatepark del polideportivo municipal de Valdelafuentes de Alcobendas es uno de los skateparks con más historia de España. Su construcción se remonta más de 30 años y desde entonces ha ido creciendo la leyenda de este lugar. Es conocido entre sus locales como “Nepal”, por el frío extremo en invierno y por las vistas de la sierra madrileña.
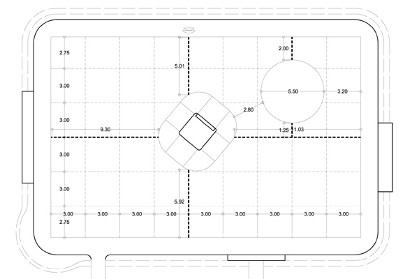
Una de las características que han hecho de este skatepark un lugar único es su peculiar diseño. Dos bañeras profundas conectadas mediante dos channels a una bañera más amplia y menos profunda y una tercera bañera más pequeña conocida como la “judia”. Además, sus curvas radicales y su potente cooping le han conferido una identidad propia y única. Conservar la identidad del skatepark era algo fundamental en su nueva configuración. Reproducir las curvas y sustituir el cooping original por uno de similares carcteristicas fue uno de los puntos de partida del proyecto para mantener esa identidad.
Reformar la bañera principal de este este skatepark supuso un reto importante. El estado de conservación era muy malo. La bañera principal era la que peor se encontraba y es por esto que se decide centrar todos los esfuerzos en reformarla. Una vez descartadas todas las soluciones superficiales se decide realizar una nueva piel en la bañera principal. Esta piel incorpora nuevos “spots” como un funbox, un puente sobre el cahnnel, una duna, una extensión y un cradle.
客服
消息
收藏
下载
最近


























