查看完整案例

收藏

下载
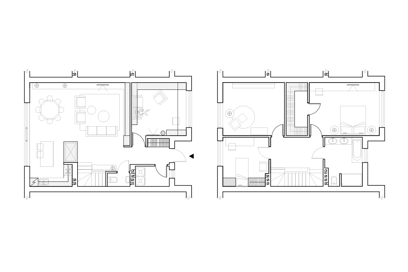
RAFINUOTA RAMYBĖ
Privataus interjero projektas Juodupio g.
Plotas:
120 m²
Autoriai:
Vaida Kandratavičiūtė
Fotografijos:
Augis Narmontas
Vilnius, 2015
Jaunų, aktyvių, veržlių žmonių ramybės užuovėja raktiniu pavadinimu „Palangos smėliuko namai”. Nes...interjeras žemiškai ramus tiek spalviniu kodu, tiek formomis ir medžiagomis, o su meile parinkti aksesuarai iki smulkmenų suderinti su visuma. Nieko neįprasto, iššaukiančio, tačiau individualiai rafinuota.
客服
消息
收藏
下载
最近













