查看完整案例

收藏

下载
Thiết kế biệt thự mái thái 3 tầng hiện đại tại Đan Phượng Hà Nội
Thiết kế kiến trúc biệt thự 3 tầng mái Thái của anh Trung tại Đan Phượng, Hà Nội được thiết kế theo tông màu trầm ấm, đơn giản thanh lịch. Sự tinh tế trong kiến trúc và màu sắc mang đến cho ngôi nhà nét sang trọng và có tính thẩm mỹ cao. Để hiểu rõ hơn về ý đồ của KTS trong mẫu biệt thự này, hãy cùng tham khảo chi tiết bài viết dưới đây:
Mặt bằng công năng
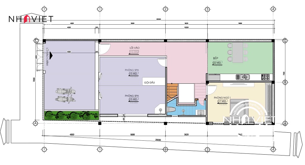
♦ Công năng tầng 1
♦ Công năng tầng 2
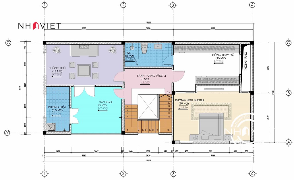
♦ Công năng tầng 3
Phối cảnh kiến trúc
Nhà việt Phong Thủy
đơn vị thiết kế kiến trúc uy tín chuyên nghiệp được khách hàng trên cả nước tin tưởng. Nếu bạn đang có nhu cầu
客服
消息
收藏
下载
最近













