查看完整案例

收藏

下载
Spivak Architects
190 Riverside Drive, Penthouse
Type
Residential
Status
Completed
Location
190 Riverside Drive, New York, NY, USA
Client
Dominion Management
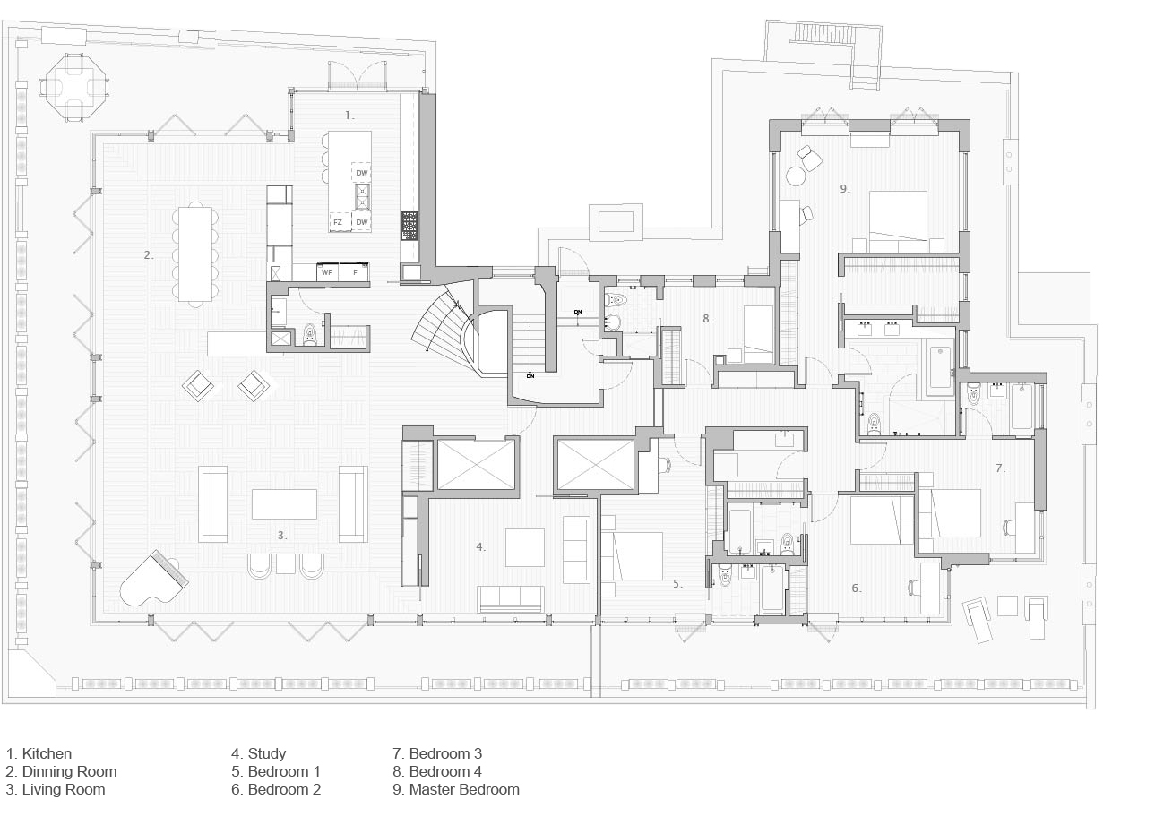
A private developer commissioned this penthouse addition at 190 Riverside Drive, a landmarked Beaux Arts style 11-story residential building. The plus 5,000 SF single-family residence contains five discreet bedrooms and bathrooms and features a structurally uninterrupted 2,000 SF living space, enveloped by three-sided operable glass walls that open and extend out to a wrap-around terrace with panoramic views of the Hudson River.
The breathtaking setting extends skyward as the perimeter glass walls fold over to form a continuous band of angled skylights surrounding the living and dining spaces, rendering the ideal entertaining venue washed in natural light. The new structure cleverly ties into the existing, allowing for greater ceiling heights without increasing the height of the new penthouse roof.
This addition also includes a complete upgrade of building elevators, to provide private entry into the penthouse, as well as building services to ensure state of the art mechanical systems for energy efficiency, ideal comfort and modern convenience.
客服
消息
收藏
下载
最近




















