查看完整案例

收藏

下载
+
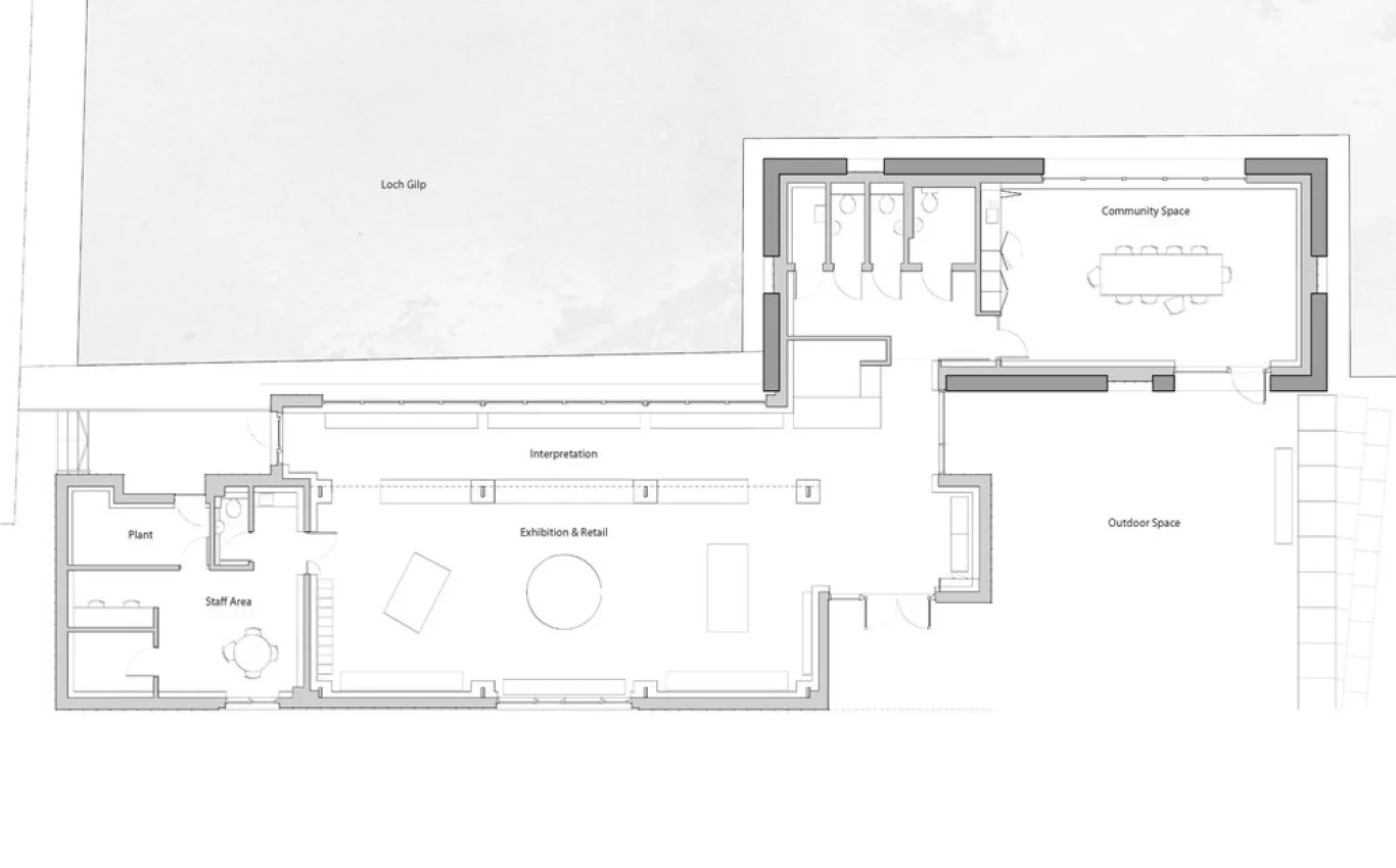
The Egg Shed project revitalised a previously inaccessible and derelict site at the prominent intersection where the Crinan Canal meets Loch Gilp. Through careful research into the area’s history and a considered appreciation of the constraints and opportunities provided by this challenging yet spectacular site, OCA studio sensitively converted the masonry shell of a historic industrial building into a vibrant new resource for locals and visitors alike.
+
The village of Ardrishaig on Scotland’s west coast suffered an economic decline since its heyday as a bustling harbour for both passenger and freight traffic. Through revitalisation of this prominent derelict site, Scottish Canals’ new Egg Shed Visitor and Community Centre aims to help rejuvenate the village through creation of a tourist destination and community resource.
+
A derelict building on the site, tied to Ardrishaig’s fishing past, was identified by OCA Studio as being of heritage value, and provided a historical springboard from which the design of the new building took shape. This masonry shell of this former ‘barking house’ was creatively reused in the new development and now houses a multi-purpose community and temporary exhibition space, while a new volume alongside contains the permanent exhibition and retail areas.
+
A patchwork of former openings to the derelict structure were visible in remnants of bricked-up doorways and traces of former lintels lodged in its masonry walls. Some of these details, such as the unusual arched windows on all four facades, were highlighted with red steel, while others were widened to bring views of the adjacent loch into the interior and create a welcoming entrance to the community space, adding a new layer to the building's visible history.
+
The new building has an industrial appearance, but one which adds an aesthetic emphasis to detailing. The simple pitched-roof form of the existing building was taken as a template and extended across the new structure, with the red steel cladding chosen for new walls and roofs echoing traditional industrial buildings common to the area, as well as helping to catch the eye of passers-by. Within the footprint of the original building the new form emerges from within the old masonry shell, providing a visual expression of the continuing development of the site.
+
RIBA National Award and RIAS Regional Award 2021
Regeneration Category Winner, Scottish Design Awards 2020
Ambassador Award 2020, Edinburgh Architectural Association
Dezeen Award Longlist 2021
+
+
+
+
+
+
+
+
客服
消息
收藏
下载
最近
















