查看完整案例

收藏

下载
Sweetgrass Hotel & Event Center
LOCATION: Cheyenne, Wyoming
CLIENT: Confidential
SCOPE: Planning and Concept Design
EXPECTED COMPLETION: n/a
“
The site design and architecture recall the practical character and materials of ranch buildings in the west.
”
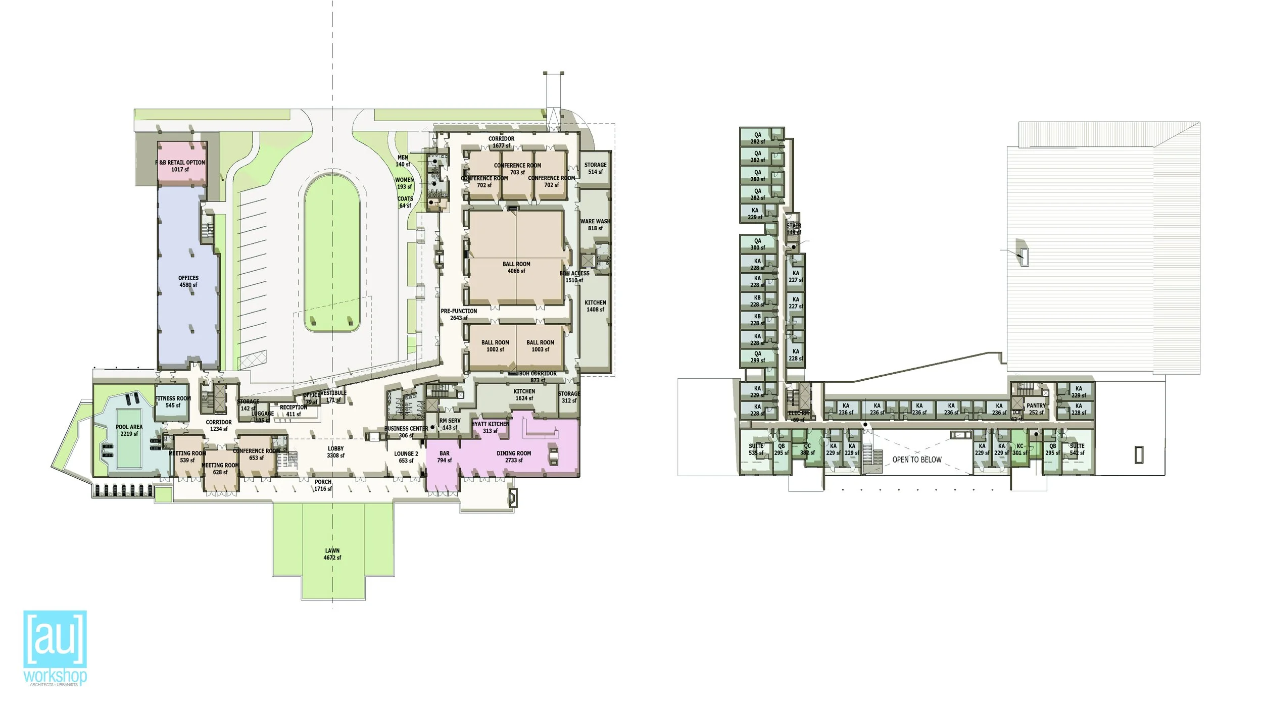
Located at the southeast edge of Cheyenne adjacent to cattle grazing prairie that extends to the horizon, this plan envisions a 150 room hotel with full service meeting facilities and a five star restaurant alongside a major event facility capable of hosting a variety of events including up to 5,000 seat capacity live performances. A family entertainment center is planned below the event space. Parking is accommodated both on and off-site. All the uses gather around a courtyard to create a sense of enclosure in the otherwise wide-open space on the edge of the prairie.
The site design and architecture recall the practical character and materials of ranch buildings in the west: Rough wood and stone with deep verandahs oriented to views of the enormous sky as it meets the shortgrass prairie and the Rocky Mountains in the distance. A seemingly ever-present wind is met with rows of trees and buildings gathered to protect users and provide heat reflective walls for backdrops during winter while at the same time oriented to capture views and the low winter sun tracking east to west.
客服
消息
收藏
下载
最近















