查看完整案例

收藏

下载
Desenzano del Garda, Italy
Penthouse
Lake Garda
Where classic charm meets modern luxury
A fusion of timeless elegance and modern luxury in our penthouse masterpiece
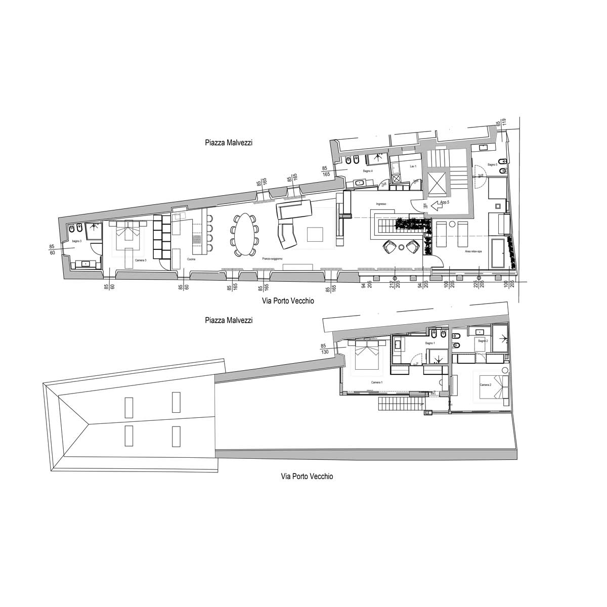
Experience a world where contemporary design meets timeless elegance with our latest masterpiece, the Penthouse in Desenzano Del Garda, Italy. This stunning project seamlessly blends modern luxury with classic charm, resulting in a harmonious contrast that defines the character of the entire penthouse. Every detail has been meticulously crafted to offer not just aesthetic appeal, but also functionality and tranquility.
HIGHLIGHTS
Design & Development
Indelux
Our primary objective was to fulfill all the requirements of our potential customers. To achieve this, we created a wellness area designed exclusively for personal well-being. The spa retreat features sliding windows that open outwards, providing a perfect connection with the natural surroundings.
GALLERY
MOODBOARDS
Wood
's rich grains add an
earthy
charm
to the design, narrating nature's tales.
Fabrics
blend
texture
and
color
, merging functionality and aesthetics, revitalizing bare spaces.
Marble
's veined appearance and cool surface epitomize
enduring
elegance
.
Glass
melds
delicacy
and
strength
, embodying modern minimalism.
客服
消息
收藏
下载
最近




































