查看完整案例

收藏

下载
澳大利亚墨尔本——2025年11月30日一一墨尔本标志性地铁隧道项目的五座全新地下车站即将正式启用,重新定义城市交通格局。这五座车站分别为北墨尔本的阿登站 (Arden)、帕克维尔站(Parkville)、州立图书馆站(State Library)、市政厅站 (Town Hall)以及位于圣基尔达路的s安扎克站(Anzac),并首次实现墨尔本电车与铁路网络的互联。
▼新5站地铁线路图,New 5metro station map©The CYP Design and Construction Joint Venture
MELBOURNE, AUSTRALIA – [November 30, 2025]-Melbourne’s landmark Metro Tunnel project is set to redefine the city’s transportation landscape with the official opening of its five new underground stations: Arden at North Melbourne, Parkville, State Library, Town Hall and Anzac on St Kilda Road, featuring the first ever connection between the Melbourne tram and rail network.
▼安扎克站– 雨棚平面图,Anzac Station – plan view of the canopy ©Peter Bennetts
▼安扎克站– 为前往战争纪念馆、皇家植物园及西德尼·迈尔音乐碗提供更多出行选择,Anzac Station–the station will provide more travel options to the Shrine of Remembrance, the Royal Botanic Gardens and the Sidney Myer Music Bowl ©Peter Bennetts
▼州立图书馆站 – 主入口,12 米高立柱与巨型梁架构成庄重空间,State Library Station–Grand main entrance featuring 12m-high columns topped with massive beams ©Peter Bennetts
地铁隧道的建筑设计采用全线统一的规划理念,打造经久不衰的城市地标,以及独特而 优美的车站内部空间、建筑及周边环境,令墨尔本居民在未来世代中引以为傲。
The architecture of the Metro Tunnel integrates a line-wide approach, creating enduring landmarks, distinctive and beautiful station interiors and buildings and their surrounds that Melburnians will embrace with pride for generations to come.
▼阿登站– 基于“开放式地铁”理念,三处中央采光天窗将自然光引入站厅与站台,Arden Station – Underpinned by the philosophy of an ‘open metro’, the design incorporates three central skylights that draw natural light down into the concourse and platform spaces ©Peter Bennetts
▼阿登站– 连接弗林德斯街车站,并通达联邦广场、南岸及著名城市巷道,Town Hall Station – The station will bring people to Flinders Street Station and to landmarks such as Federation Square, Southbank and the famous laneways ©Peter Bennetts
▼帕克维尔站– 格拉顿街入口,玻璃雨棚将充足自然光引入站厅,Parkville – Grattan Street entrance with plenty of natural light filtering through to the station concourse through the glass canopy ©Peter Bennetts
与城市共鸣的地铁 A METRO THAT RESONATES WITH THE CITY
不同于传统地下交通枢纽,地铁隧道车站强化了与周边街道和地标建筑的实质连接。这一设计理念确保乘客在穿梭其间时始终与地面活力十足的城市保持紧密联系,带来开阔舒适、独具墨尔本特色的出行体验。每座车站同时为所在区域创造新的重要公共空间,包括焕然一新的城市广场(CitySquare),为墨尔本中央商务区注入新的活力与便利。
▼阿登站-分析草图,Arden Station– design sketch©RSHP
▼市政厅站-分析草图,Town Hall Station– design sketch©RSHP
▼市政厅站人流动向草图,Town Hall Station– pedestrian flow ©RSHP
In a departure from conventional underground transport hubs, the Metro Tunnel stations foster a tangible connection to the streets and iconic landmarks of theirrespective locations. This design approach ensures that commuters remain intrinsicaly linked to the vibrant city above, creating a generous and uniquely Melbourne experience. At each location, the stations also deliver significant new public spaces, including the revitalised City Square, breathing new life and amenity into the heart of the CBD.
▼阿登站– 三处中央采光天窗使自然光深入站厅与站台空间,Arden Station – the station incorporates three central skylights to allow natural light to reach the concourse and platforms©Peter Bennetts
▼阿登站– 入口砖拱中的凤头鹦鹉主题灯具,Arden Station – Cockatoo lights in the brick arches of the entrance©Peter Bennetts
▼市政厅站– 通往柯林斯街出入口的“地下拱廊”,Town Hall Station – The Crypt leading to Collins Street entrance/exit©Peter Bennetts
地铁隧道车站设计的一项核心原则是引入自然光与新鲜空气,为乘客营造开阔、舒适且 充满幸福感的环境。在阿登站和帕克维尔站,宽大的天窗使自然光洒满站厅,营造明亮 宜人的空间。阿登站与安扎克站的设计还特意融入砖材与木材等元素,以呼应各自的地 理环境与城市脉络。在安扎克站,位于圣基尔达路中央的大型椭圆雨棚覆盖站厅,照亮 通往站台的新地下通道,同时为换乘电车的乘客提供有遮蔽的便捷通道。
▼安扎克站项目区位图,Anzac Station – site plan ©RSHP
▼安扎克站-设计草图,Anzac Station– designsketch©RSHP
A key design principle of the Metro Tunnel stations is the integration of natural light and fresh air, fostering a sense of openness and wellbeing for commuters. At Arden and Parkville stations, expansive skylights flood the concourses with daylight, creating bright and inviting spaces. Materials like brick and timber are also specifically integrated into Arden and Anzac stations reflecting their respective locations and contexts. At Anzec station, the large elliptical canopy located in the centre of St Kilda Road shelters the concourse below, flooding the new underground connections to the platforms with daylight and providing shelter to those connecting to the tram network.
▼安扎克站– 位于圣基尔达路,毗邻战争纪念馆,并与有轨电车直接衔接,Anzac Station – located on St Kilda Road, close to the Shrine of Remembrance, with direct access to trams©Peter Bennetts
▼安扎克站– 三处主要入口分别通向纪念保护区、阿尔伯特路保护区及电车—地铁换乘点,Anzac Station – The station has three main entrances: one on the edge of the Shrine Reserve, one in Albert Road Reserve and one leading directly to the train-tram interchange in the middle of St Kilda Road©Peter Bennetts
▼安扎克站- 水母鼓形灯与橙色肋状天花,Anzac Station – Moon jellyfish drum light and orange ceiling ribs©Peter Bennetts
▼安扎克站– 墨尔本首个电车—地铁直接换乘枢纽,Anzac Station – Melbourne’s first direct tram/train interchange©Peter Bennetts
尽管州立图书馆站和市政厅站因位于繁忙的中央商务区且埋深较大,带来更高难度的设计与施工挑战,设计团队仍以宏伟如大教堂般的地下空间应对,营造开阔通透、庄严壮丽的氛围。车站主要入口也经过精心设计,引入自然光,使空间更加明亮宜人。
▼州立图书馆站-设计草图,State Library Station– designsketch©RSHP
While the sheer depth and bustling CBD locations of State Library and Town Hall stations presented greater challenges, the design teams have responded with vast, cathedral-like underground spaces that evoke a feeling of airiness and grandeur. Natural light is also thoughtfully integrated into the main entrances of these central stations.
▼州立图书馆站– 玻璃立面引入日光,照亮《Forever》艺术作品,入口立柱与梁架呼应维州州立图书馆的古典建筑语汇,Glazed façades bring daylight to the artwork Forever, while towering columns and beams at the La Trobe Street entrance echo the classical architecture of the State Library Victoria©Peter Bennetts
▼州立图书馆站– 斯旺斯顿街 / 拉筹伯街入口,State Library – Swanston Street / La Trobe Street entrance©Peter Bennetts
▼州立图书馆站– 三目结构中的海星形吊灯与橙色肋状天花,State Library Station – Double sea star pendant lights and orange ceiling ribs in the trinocular structure©Peter Bennetts
▼州立图书馆站– 全球最为宽敞的站台之一,拱形结构勾勒出宏大的空间尺度,State Library Station – The platforms are some of the widest and most spacious in the world and framed by sweeping arches©Peter Bennetts
▼州立图书馆站– ABeckett通道,State Library Station – A’Beckett Adit©Peter Bennetts
▼州立图书馆站– 富兰克林街入口,State Library Station – Franklin Street entrance©Peter Bennetts
在所有车站中,一项贯穿全线的设计元素格外醒目:色彩鲜明的结构体承载车站的各类 服务设施,并安装大量专门设计的金属灯具,点缀成千上万个玻璃球,形成独特视觉效 果。另一项全线特色是直观的导向系统:色彩鲜艳的金属导向板清晰标示进出站方向, 并引导乘客顺利换乘其他交通方式,使出行体验更加便捷。
Throughout all of the stations a line-wide design element is immediately recognised as brightly coloured structures support all of the station’s services and holda vast number of specifically designed light fixtures, cast in metal and featuring thousands of glass globes. Intuitive wayfinding is another line-wide feature, where brightly coloured metal baffles show commuters the way in and the way out of stations and guide them to their connections to other transport services.
▼帕克维尔站– 位于格拉顿街,紧邻墨尔本大学,处于帕克维尔医疗区核心地带,Parkville Station – Parkville is located in Grattan Street, next to the University of Melbourne and in the heart of the Parkville medical precinct©Peter Bennetts
▼帕克维尔站– 格拉顿街主入口,设有 55 米长雨棚,Parkville Station – Grattan Street main entrance with its 55-metre-long canopy©Peter Bennetts
▼帕克维尔站– 坐落于维州世界级教育、医疗与科研区门户位置,Parkville Station – The station is located on the doorstep of Victoria’s world-renowned education, health and research district©Peter Bennetts
▼帕克维尔站– 皇家大道与格拉顿街交叉口入口,Parkville Station – The entrance on the corner of Royal Parade and Grattan Street©Peter Bennetts
联通全城的高效列车服务
AN EFFICIENT TRAIN SERVICE CONNECTING THE CITY
预计于2026年2月全面投入运营后,地铁隧道将通过一条全新的城市地下专用通道, 实现桑伯里线(Sunbury)、克兰伯恩线(Cranbourne)与帕肯纳姆线(Pakenham) 的无缝衔接。这一关键基础设施将形成从西北的桑伯里直达东南的帕肯纳姆的连续铁路 动脉,大幅缓解市区环形线拥堵,并提升整个铁路网络的列车频率和运行效率。
Upon its full operation foreseen in February of 2026, the Metro Tunnel will seamlessly interconnect the Sunbury, Cranbourne, and Pakenham lines via a dedicated new tunnel beneath the city. This crucial infrastructure will establish a continuous rail artery from Sunbury in the northwest to Pakenham in the southeast, significantly easing congestion within the City Loop and enabling more frequent and efficient train services across the network.
▼安扎克站– 木质雨棚在街道层面提供遮蔽,并将自然光引入下方开阔站厅,Anzac Station – The timber canopy provides weather protection as well as natural light at street level and into the spacious concourse below©Peter Bennetts
富茨克雷站与阿登站之间的新地铁线路连接,以及安扎克站延伸至霍克斯本站 (Hawksburn)的衔接,进一步提升了整个网络的连通性与可达性。
Strategic connections, including at Town Hall Station, State Library Station, Footscray Station in the north-west and Caulfield Station in the south-east, also allow passengers to transfer between rai lines, further enhancing the network’s connectivity.
▼ 州立图书馆站– 站台上方为 10 米高拱形天花,配以墨尔本设计制造的海星吊灯,State Library Station – The platforms are crowned by a 10-metre-high arched ceiling, highlighted by Melbourne-designed sea-star pendant lights©Peter Bennetts
墨尔本地铁隧道项目是对城市未来的重大投资,不仅提供关键交通基础设施,还打造标 志性建筑与焕新公共空间,为墨尔本居民的生活带来长期价值。该项目由维多利亚州政 府通过维多利亚基础设施交付局(The Victorian Infrastructure Delivery Authority)及其 项目办公室 VIDA Metro实施。主要总包商为Cross Yarra Partnership(CYP)——由 Lendlease Engineering、 John Holland和 Bouygues Construction组成的公私营 (PPP)企业。项目建筑设计由 Hassell、WW+P Architects与 RSHP联合完成。
The Melbourne Metro Tunnel represents a transformative investment in the city’s future, delivering not only essential transport infrastructure but also architectural landmarks and revitalised public spaces that will enrich the lives of Melburnians for decades to come. The Metro Tunnel project has been delivered by the State Government of Victoria through The Victorian Infrastructure Delivery Authority and its project office VIDA Metro. The principal contractor is the Cross Yarra Partnership (CYP) a Public Private Partnership consisting of Lendlease Engineering, John Holland and Bouygues Construction. The architecture of the project is a collaboration between Hassell, WWW+P Architects and RSHP.
▼市政厅站– 主入口空间,亦称“地下拱廊”,Town Hall – The main entrance, known as ‘The Crypt’©Peter Bennetts
▼市政厅站– 城市广场内的主入口雨棚,Town Hall Station – Main entrance canopy in City Square©Peter Bennetts
建筑师感言
Architect Quotes
“能够参与数千名才华横溢且技术精湛的团队,共同打造墨尔本新地铁,是一种莫大的荣幸。车站的建筑设计旨在提升每一位日常乘客的心情。每座车站都独具特色,同时充分考虑各自的地理环境。这一设计灵感正体现了墨尔本的创造力精神。随着每个入口门户陆续呈现,它们正在重塑人们对这座非凡城市的出行方式——不仅是今天,也将延续至未来。我希望墨尔本居民在乘坐地铁时,能像我们在参与建设过程中一样充满喜悦。”——RSHP高级设计总监lvan Harbour
“每座车站在尊重并融入所在环境的基础上设计,旨在彰显出行的愉悦与高效,共同打造宽敞、独特且令人难忘的全新墨尔本体验。”——Hassell首席建筑设计及设计负责人Mark Loughnan
“这是一个具有全球意义的项目。墨尔本以开放著称:街道、小巷和公共空间营造出充满活力且热情友好的氛围。我们希望这种开放性融入新车站的设计;每座车站最大化自然采光与新鲜空气,为乘客创造真正世界一流的空间。我们对连接性和可视性的关注确保旅客感受到城市脉动——车站不仅是交通场所,更是墨尔本公共空间的自然延伸。”——WW+P主席Rob Naybour
“It has been a privilege to be part of the extraordinary effort by thousands of talented and skilled individuals collaborating to create Melbourne’s new metro together. The architecture of the stations is designed to lift the spirits of all those using the metro day to day. Each is unique, and all five are sensitive to their respective locations. The vision that inspired them is a reflection of Melbourne’s creative spirit. As each entrance portal now emerges, it begins to reshape how this remarkable city is navigated–today and well into the future. I hope that Melburnians enjoy riding their metro as much as we have enjoyed playing our part in its creation.” – Ivan Harbour, Senior Design Director, RSHP
“Respecting and integrating with their locations, each station is designed to celebrate the joy and efficiency of travel, collectively crafting a generous, uniquely new, and memorable Melbourne experience.” – Mark Loughnan, Principal and Head of Design, Hassell
“This is a project of global significance. Melbourne is a city defined by its openness: its streets, laneways and public spaces create a vibrant and welcoming atmosphere. We wanted that openness to shape the design of the new stations; each station design maximises natural light and fresh air, creating passenger spaces that are truly world-class. Our focus on connection and visibility ensures travellers feel part of the flow of the city – the stations are not just places of travel, but seamless extensions of Melbourne’s public realm.” -Rob Naybour, Chair, WW+P
▼鸸鹋灯具,Cassowary lights©Peter Bennetts
▼帕克维尔站– 水母鼓形灯与凤头鹦鹉主题灯具,Parkville Station – Moon jellyfish drum lights and cockatoo lights©Peter Bennetts
▼阿登站区位图,Arden Station – site plan ©RSHP
▼帕克维尔站区位图,Parkville Station – site plan©RSHP
▼帕克维尔站剖面图,Parkville Station – section©RSHP
▼市政厅站区位图,Town Hall Station- site plan ©RSHP
▼市政厅站剖面图,Town Hall Station – section©RSHP
▼州立图书馆站区位图,State Library Station – site plan ©RSHP
▼州立图书馆站剖面图,State Library Station – section©RSHP
▼安扎克站区位图,Anzac Station – site plan©RSHP
▼安扎克站剖面图,Anzac Station – section©RSHP
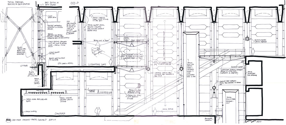
▼细节大样图,Detail drawing ©RSHP
RSHP 传播与市场主管Vicki Macgregor 澳大利亚事务联系:Bradford Gorman,Design Communication Associates
Hassell 传播与内容主管Verity Magdalino 公关与传播经理Kate Funnell
WW+P Architects 全球市场与传播主管Nicola Sheppey
Notes to Editors: Images are available to download here
Hassell
WW+P Architects Nicola Sheppey, Global Head of Marketing and Communications:
RSHP Australian inquiries: Bradford Gorman, Design Communication Associates
客服
消息
收藏
下载
最近











































































