查看完整案例

收藏

下载
Live + Work Space
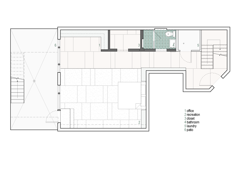
This live + work space is an interior renovation of an existing condo in Brooklyn. It was designed and constructed for a graphic designer and a film director, who were inspired by minimalism, order and non compositional hierarchy. A nod to Donald Judd.
We kept an open plan in order to maximize flexibility. Support spaces like laundry room, bathroom and storage closet where arranged linearly anchored by the open work area.
The clients wanted to display some objects but have enough storage to hide others. Plywood mill-work was imagined to maximize flexibility.
© 2025 et al. collaborative of new york and detroit, llc.
客服
消息
收藏
下载
最近














