查看完整案例

收藏

下载
MAISON FRUGALE
Construction d’une maison individuelle de 50 m2 en ossature bois
Mission Complète
Livré en 2023
Où : Clelles (38)
Pour : Clients privés
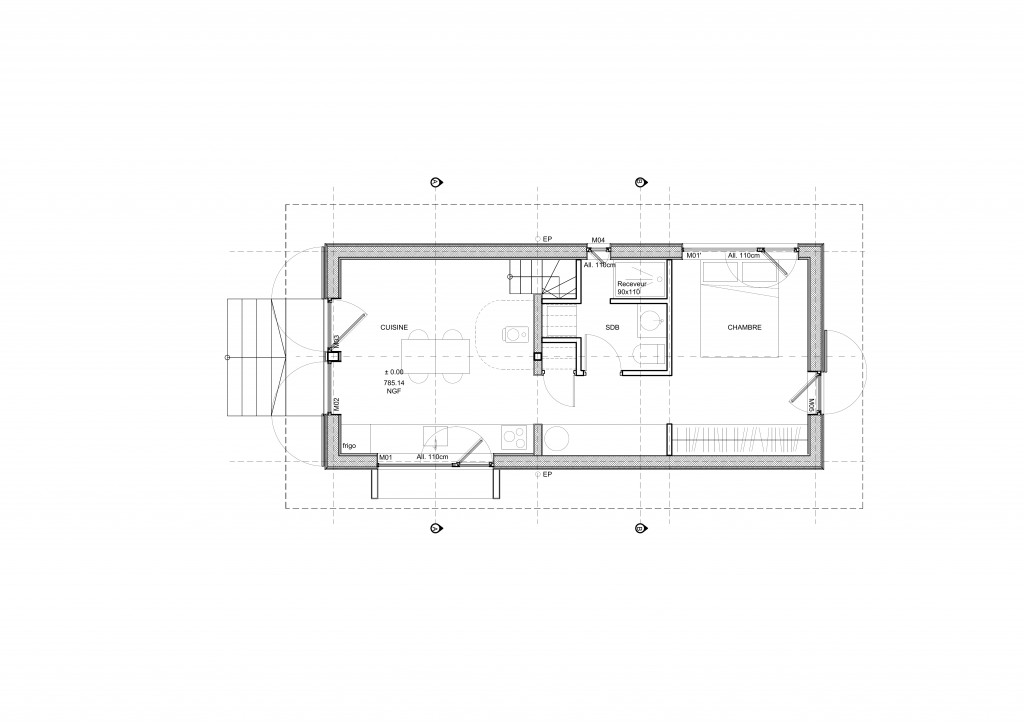
La maison, de petite taille, se veut tel un nid contemplatif, un observatoire de paysage : le Mont Aiguille d’un côté et le plateau du Trièves de l’autre. Elle est construite sur pilotis pour limiter son impact sur la faune et la flore.
L’orientation de la maison donne à chacune des façades des fonctions différentes.
En façade Sud, une grande fenêtre permet de suivre la course du soleil en hiver et d’assurer un bon apport solaire. A l’Ouest, une grande baie s’ouvre sur le Mont Aiguille. Elle assure un complément d’apport solaire en hiver. Au Nord, une grande fenêtre (identique à celle que l’on trouve au sud) ouvre sur le plateau du Trièves et permet un apport de lumière sans risque de surchauffe estivale. De grands volets ou un meuble bûcher en saillie au Sud protègent les ouvertures en été.
A l’intérieur, l’espace est minimal et compact; on pénètre dans l’espace cuisine, en double hauteur; au fond une chambre et une salle de bain. Le salon, lui, se trouve en mezzanine. La grande façade intérieur est habillée de beaux panneaux de bois. La seule source de chauffage est un poele à bois bûches judicieusement placé au centre.
客服
消息
收藏
下载
最近









