查看完整案例

收藏

下载
韩国松岛图书馆竞赛
位置:韩国松岛
面积: 9427m
2
竞赛设计
2021
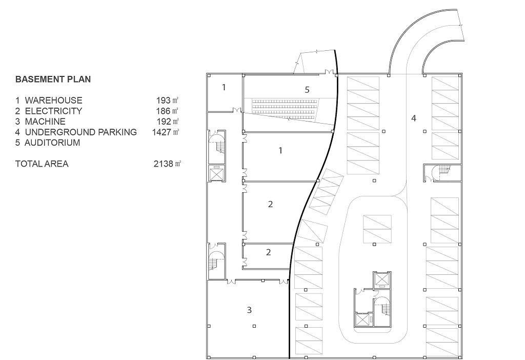
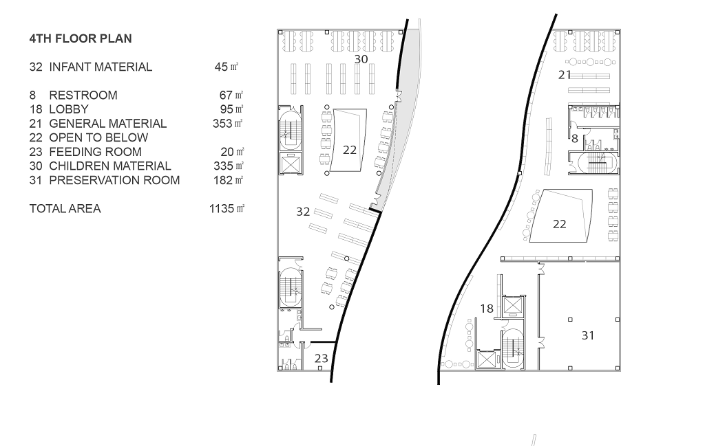
书页峡谷 – 数字时代的自然景观。该图书馆提供外部空间以促进健康、多元的使用,并提供自然景观以增强使用者与自然的联系。它就像一本打开的书一样,这种变革性的结构提供了无限的可能性,从日间宁静的纪念峡谷到夜晚醒目引人入胜的公共知识街。在后疫情时代的数字世界中,建筑物(尤其是图书馆)需要适应并提供拥抱自然的外部空间,以营造更健康的阅读环境。书页峡谷的设计解决了这些问题,并成为为子孙后代创造可持续健康未来的范本。
植被。传统图书馆通常将植被限制在建筑物外部的一楼。借助峡谷的露台阳台,植被可以在每层楼上种植直到屋顶。让树木和自然植被包围起这个个人成长的地方!
聚集地。传统图书馆通常仅充当内部空间,这将人们的聚集地限制在建筑物围护结构所包围的空间内。峡谷打破了这些界限,将建筑物的核心向外部敞开。这将创建第三种空间,即室内/室外空间的混合体。在这里,人们可以安全地在露天聚会,并且仍然可以访问图书馆的资源和内容。
营业时间。传统图书馆有着一定的营业时间。当晚上关闭时,资源将暂时变得无法获得。当太阳开始落山时,峡谷在起伏的立面上以互动投影的形式活跃起来。公众可以在这里通过应用程序访问图书馆的馆藏,并查看投影在面板上的内容。这个露天空间是人们见面、聚会并享受图书馆提供的无穷知识和文化的安全场所。
峡谷夜游。峡谷在日间和夜间都是活跃场所。当太阳开始下山时,峡谷的立面启动下班后模式。在这里,两个梯形墙之间,人们可以继续访问图书馆的馆藏,通过数字媒体的形式。
步骤1
首先找到1个集成的LED屏幕,该屏幕将允许您通过触摸屏访问图书馆的数字媒体内容。在这里,您可以搜索要查看的书,访问代码带有QR码。
步骤2
使用应用程序扫描QR码,以访问数字媒体内容。
步骤3
该应用程序将在峡谷的特定座位位置安排餐桌预订。
步骤4
当您在该座位坐下,投影仪将开始投影您选择的数字媒体内容。您可以使用移动程序浏览页面,独自或与朋友一起欣赏媒体投影。
松岛图书馆剖面图
西北峡谷立面
东南峡谷立面
东南立面
东北立面
西南立面
客服
消息
收藏
下载
最近



























