查看完整案例

收藏

下载
Projektujemy współczesne budynki.
Biuro
_2108_Łąkowa - Natkaniec Olechnicki Architekci
_2108_Łąkowa, 2021
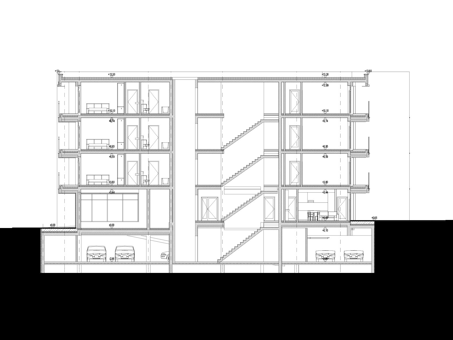
Projekt niewielkiego budynku mieszkalnego wielorodzinnego z garażem podziemnym i usługami w parterze Lokalizacja: Białystok Inwestor: Rogowski Development Sp. z o.o.
客服
消息
收藏
下载
最近









