查看完整案例

收藏

下载
Ë_244 Ë_244
Découvrez notre premier plan sur trois étages, un concept unique conçu pour les terrains étroits, intégrant un garage double. Ce plan de maison unique positionne les aires de vie au deuxième étage, maximisant l’intimité tout en offrant des vues panoramiques exceptionnelles grâce aux terrasses avant et arrière. Ces espaces en hauteur favorisent une connexion harmonieuse avec l’extérieur tout en préservant l’intimité par rapport à la rue. Au dernier étage, on retrouve trois chambres, dont une suite des maîtres complète pour un confort absolu. En complément, le niveau du sol accueille un bureau privé et facilement accessible, idéal pour les professionnels en télétravail. Ce concept exclusif signé LEGUË architecture incarne une harmonie entre style et fonctionnalité, marquant une signature architecturale qui marie élégamment le contemporain et le classique.
Superficie 2976 pi
Le rez-de-chaussée comprend: 734 p.c.
1er étage comprend: 994 p.c.
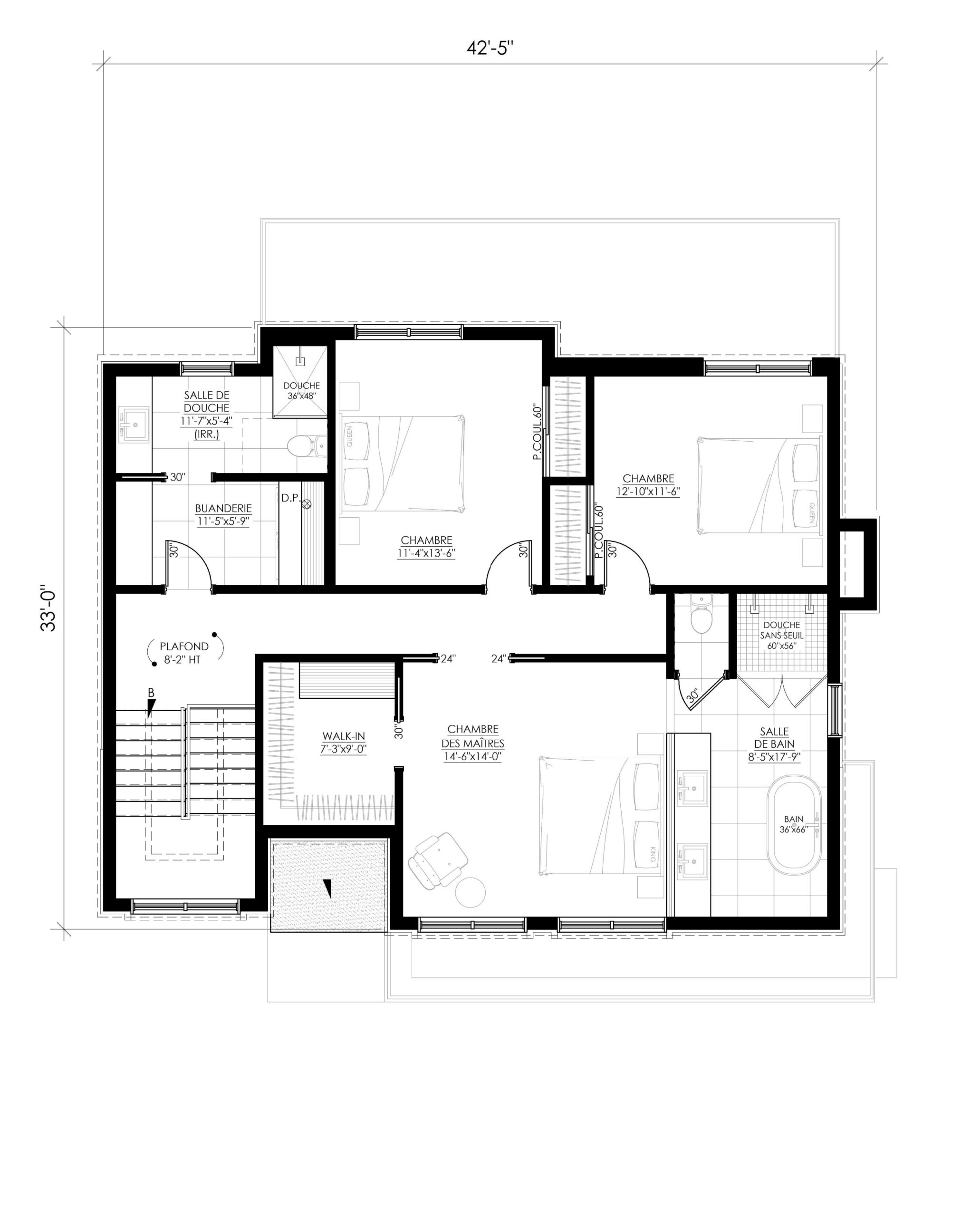
2e étage comprend: 1248 p.c.
Le garage comprend: 583 p.c.
Chambre 3 +1 possible au rez-de-chaussée
Garage Oui
Salle de bains 3.5
Étages 3
Coût de const. 510 000 $ à 695 000 $
Comment sont estimés les coûts de construction?
Il y a toujours deux prix d’indiqués pour chacun de nos plans. Le premier montant représente un coût en autoconstruction et le second un coût clef en main. Ils sont évalués au pied carré selon une moyenne de coût de construction au Québec. Ces coûts sont approximatifs et calculés avec des matériaux de qualité standard. Ils varieront selon le type de finition que vous choisirez, les particularités de votre terrain, le coût des matériaux de votre région, etc..
Bien entendu, ceux-ci n’incluent pas les coûts d’achat de votre terrain et terrassement puisque nous n’avons aucun contrôle sur ses prix. Le coût en autoconstruction prévoit que les propriétaires gèrent eux-mêmes leur chantier et feront les travaux eux-mêmes. Alors que le coût clef en main prévoit qu’un entrepreneur général s’occupera de la construction de A à Z.
Finition intérieure prévue : Céramique aux endroits indiqués sur les plans. Bois franc au rez-de-chaussée et étage. Cabinets (cuisine et salle de bains) en mélamine. Escalier du rez-de-chaussée en bois franc et sous-sol en planches de particules de bois. Électricité, plomberie et ventilation par pièce. Les coûts ne prévoient pas la finition du sous-sol (lorsqu’il y en a un), mais prévoient tout de même son isolation et la finition de gypse au pourtour des murs extérieurs.
Finition extérieure prévue : Les finitions représentés sur les 3D ont été considérés dans les estimer. Les matériaux extérieurs couramment utilisés pour nos plans sont la maçonnerie, le déclin et l’acrylique. Fenêtres en PVC. Toiture en bardeaux d’asphalte lorsque la pente le permet, sinon en membrane d’étanchéité autocollante pour les pentes faibles. Fondation de béton coulé.
Pour un estimé précis qui tiendra compte de vos choix de finition, de la période de construction de votre projet, des matériaux locaux ainsi que des prix des sous-traitants de votre région, il faudra soumettre vos plans LEGUË architecture à un ou plusieurs entrepreneurs et discuter des finitions souhaitées. Il s’agit du processus normal et de la première étape dans votre projet de construction.
Galerie photos
Rez-de-chaussée
1er étage
2ème étage Vidéo
Cuisine
Cuisine
Cuisine
Cuisine
Salle à dîner
Salle à dîner
Salon
Salon
Bureau
Étage
Chambre principale
Chambre principale
Salle de bain
Salle de bain
Arrière
Façade
Plan
Ë_244
客服
消息
收藏
下载
最近





















