查看完整案例

收藏

下载
Annedalsterrassen
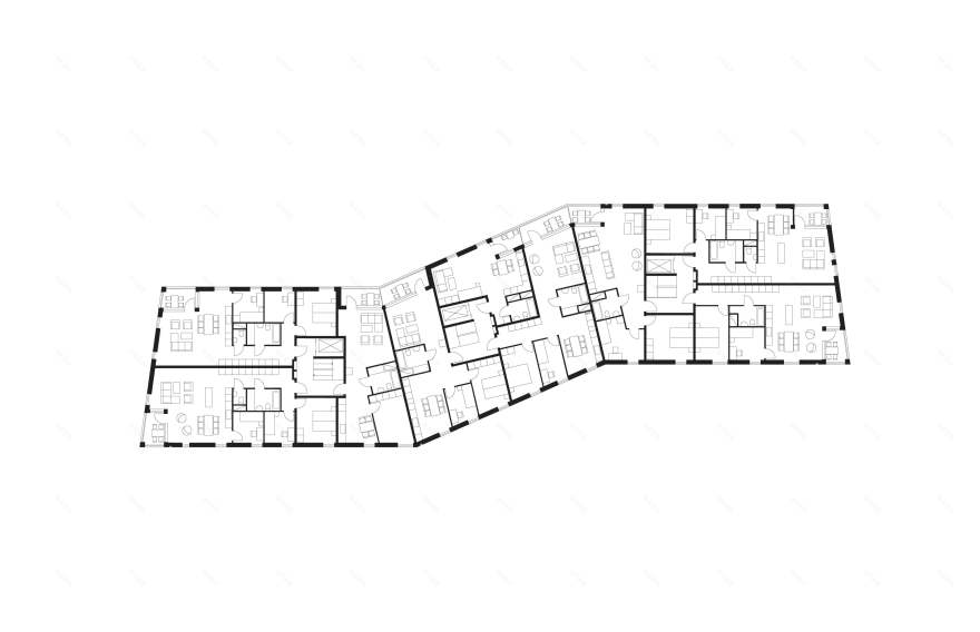
I Annedal, en stadsdel i norra Stockholm, vann Kjellander Sjöberg ett parallellt uppdrag avseende kvartersstrukturen för tre fristående bostadshus för tre byggherrar. Projektet rymmer totalt 150 hyres- och bostadsrättslägenheter med lokaler mot gatan samt mellanliggande gårdar.
Veckning som skapar dynamik och förstärker riktningar
Tomten är högt belägen mellan ett vattenstråk mot Sundbyberg och stadsdelsparken i söder. I den ursprungliga stadsplanen var tomten avsedd för sex punkthus, men för att dra nytta av tomtens topografi och skapa en sammanhängande gård valde KS att binda ihop huskropparna till tre parallella, dubbelt veckade sexvåningshus. De veckade byggnadsvolymerna skapar en tydlig rörelse som förstärker tomtens dynamik och riktningar.
Med landskapet i fokus
Husens form skapar ett sammanhängande gårdsrum, med en böljande rörelse där den bakre bergskanten kopplas ihop via ett släntande landskap ner mot gatan. Byggnaderna låter landskapet vara i fokus, vilket ger en välgörande kontrast till områdets i övrigt, med en mer sluten kvartersbebyggelse.
Kulörskiftningar och varierat fasadliv
Plankonfigurationen skapar intressanta utblickar från bostäderna och bidrar till att reducera buller från närliggande spårtrafik. För att hantera den bebyggelsens skala har husens tegelfasader kulörskiftningar, mönsterverkan i murning och fogkulör. Bostadshusen är utformade med indragna balkongnischer, glasräcken och generösa glaspartier. Uterummet gestaltas som ett till karaktären interiört rum med bra mikroklimat och vindskydd året om. Husens takvåningar har ett varierat fasadytterliv och sammanfaller ömsom med husets fasadliv och är ömsom indragen med takterrasser.
Info
Fakta
Typ: Bostad
Plats: Annedal, Stockholm
Storlek: 16 000 kvm, 150 lgh
Status: Färdigställt
År: 2013
Utmärkelser: 1:a pris, parallellt uppdrag
Organisation
Kund: Byggnadsfirman Erik Wallin, Byggnadsfirman Viktor Hanson, Trifam Fastighets AB
Samarbete: Topia Landskapsarkitekter
Fotografi: Adam Mørk, Johan Fowelin
KS Team
Ledning:
Mi Inkinen
Design team: Stefan Sjöberg, Ola Kjellander, Maria Masgård, Karolina Sporre, Sylvia Neiglick, Lena Viterstedt, Bernhard Maurer, Kalle Zetterholm
客服
消息
收藏
下载
最近
















