查看完整案例

收藏

下载
Sanierung eines denkmalgeschützten Wohngebäudes
Das denkmalgeschützte Fachwerkhaus enthüllt durch die Sanierungsmaßnahmen eine faszinierende Baugeschichte.
Das denkmalgeschützte Fachwerkhaus enthüllt durch die Sanierungsmaßnahmen eine faszinierende Baugeschichte.
Baujahr: um 1720
Bauherr: Privater Bauherr
Status: in Umsetzung
Größe (BGF): 506,60 m²
Leistungen: Architektur, Mithilfe bei der Beschaffung von Fördermitteln
Bauweise: Massiv EG und OG Nordbereich, Fachwerk OG und DG komplett
Fotografie: buerohauser
01 Ausgangslage
02 Geschichtlicher Hintergrund
03 Konzept
04 Umsetzung
01 Ausgangslage
Eine junge Familie beabsichtigt, das um 1720 erbaute Wohnstallhaus denkmalgerecht zu sanieren, um es danach selbst zu beziehen. Das Gebäude soll nach über 20 Jahren Leerstand wieder bewohnbar gemacht werden. Die Voruntersuchung in Form einer Machbarkeitsstudie hatte die Aufgabe zu prüfen, ob das neue Raumkonzept aus Sicht der Denkmalpflege zu realisieren ist. Für die sehr aufwändige Sanierung sollten Mittel aus Förderprogrammen des Landes wie auch des Bundes beantragt werden.
Bestandsbilder
02Geschichtlicher Hintergrund
Durch die Probenentnahmen aus dem nahezu vollständig erhaltenen Holztragwerk konnte dendrochronologisch nachgewiesen werden, dass die Hölzer für das Tragwerk des Gebäudes im Winter 1719/1720 eingeschlagen wurden. Dies deutet darauf hin, dass das Gebäude unmittelbar im Anschluss an diese Zeitperiode errichtet wurde.
Das Wohnstallhaus war zweigeteilt, wobei der nördliche Teil die Wohnung des Eigentümers beherbergte, während der südliche Teil für die Eltern, die „Altbauern“, vorgesehen war. Beide Wohnbereiche waren symmetrisch gestaltet, wobei ⅔ der Fläche dem Jungbauern und ⅓ den Altbauern zugeordnet waren.
Rekonstruktion Obergeschoss – Zustand um 1720 von Bauforscher Tillmann Marstall
Besonders beeindruckend zeigt sich der Nordgiebel mit aufwändigem und kräftig dimensioniertem Zierfachwerk, welches den damaligen Wohlstand der Eigentümer im Ort verdeutlichte.
Im Jahr 1881 wurden im Erdgeschoss Stallungen eingerichtet. Wohl aufgrund großer Schäden aus der Stallnutzung wurde im Jahr 1950 der Nordbereich des Gebäudes grundlegend umgebaut.
03Konzept
In unserem Konzept wird darauf geachtet, dass das alte Gebäude und seine Geschichte bewahrt bleiben. Das Ziel ist nicht nur die Erhaltung der Historie, sondern auch die Kombination von Gemütlichkeit und modernen Elementen.
Erdgeschoss
Im Erdgeschoss sollen Werkstatt, Hauswirtschafts- und Haustechnikräume entstehen. Der alte Gewölbekeller bleibt Vorratsraum.
Obergeschoss
Im nördlichen Gebäudeteil sollen Schlaf- und Kinderzimmer Platz finden.
Die Küche wird am bisherigen Platz reaktiviert. Bad und Nebenräume sind im westlichen Gebäudeteil über dem Gewölbekeller gut platziert.
Die im südlichen Gebäudeteil gelegenen Räume des Altbauern mit Stube, hier teilweise mit bauzeitlichen Wand- und Deckentäfern, Schlafkammer und die Küche mit Sandsteinboden sollen als Wohnräume genutzt werden.
Vor dem Südgiebel soll ein Balkon aufgeständert werden, um die Wohnfläche der kleinen Räume im Obergeschoss nach außen zu erweitern.
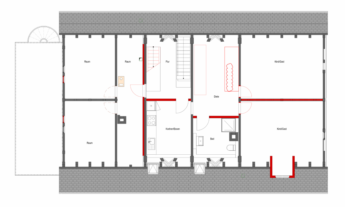
Dachgeschoss
Auf der Nordseite sollen zwei Gäste-/Kinderzimmer mit einem kleinen Bad entstehen.
04 Umsetzung
Zunächst wurde das gesamte Gebäude aufgenommen und als Grundlage für bauhistorische und restauratorische Untersuchungen wie auch für die Entwurfsplanung selbst in 3D dargestellt.
In regelmäßigen Abstimmungen mit dem Denkmalamt wurde die Denkmalverträglichkeit des Sanierungskonzepts geklärt und Details festgelegt.
Für die Sanierung/Restaurierung der sehr wertvollen Bausubstanz samt der seltenen Innenausstattung wurden in enger Zusammenarbeit mit der Denkmalpflege, der Deutschen Stiftung Denkmalschutz Bonn und Landesbehörden mehrere Möglichkeiten zur Förderung der Maßnahme gefunden und dafür Anträge eingereicht.
Die Förderbescheide lagen im Frühjahr 2022 vor, womit die Sanierungs- und Restaurierungsarbeiten begonnen werden konnten.
Am und im Projekt wird derzeit intensiv gearbeitet, vor allem auch in Eigenleistung durch den Bauherrn.
Update März 2024: Das Gerüst wurde entfernt und zeigt das Gebäude in der erneuerten Fassade.
Südostansicht
Nordostansicht
客服
消息
收藏
下载
最近




















