查看完整案例

收藏

下载
新建的图书馆是我们为马德里法国学校所做扩建项目中最引人注目的组成部分。该项目源于我们在2018年赢得的一项国际竞赛。
▼设计草图,Sketches © Alberto Campo Baeza
The new Library is the most striking element of our extension project for the French Lycée in Madrid, the result of an international competition that we won in 2018.
▼建筑概览,Building overview © Javier Callejas Sevilla
▼建筑立面,Building façade © Javier Callejas Sevilla
▼建筑立面近景,Building façade close view © Javier Callejas Sevilla
这是一座尺寸为34 × 15 × 12米的盒状建筑,外部采用清水混凝土,室内则呈现出近乎极致的纯白空间,并充满自然光。北立面自上而下完全采用玻璃幕墙,且在两个转角处形成连续的通透界面。其中一个转角处,屋顶同样完全由玻璃构成,形成一个由三面透光界面围合而成的“光之三面体”。
▼轴测图,Axonometric diagram © Alberto Campo Baeza
▼自然通风示意,Natural ventilation © Alberto Campo Baeza
This is a box measuring 34 x 15 x 12 metres, with exposed concrete on the outside, whiter than white on the inside and full of light. The north façade is entirely glazed from top to bottom, with the glass doubling up on both corners. In one of the corners, the roof is also entirely made of glass, forming a trihedron of light.
▼室内空间概览,Interior space overview© Javier Callejas Sevilla
▼阅读区与书架,Reading area and bookshelves © Javier Callejas Sevilla
▼半透明玻璃立面室内,Translucent glazed façade interior© Javier Callejas Sevilla
▼充沛的自然采光,Interior with abundant natural light © Javier Callejas Sevilla
通高的阅览空间作为核心,被周围向其敞开的其他功能空间所环绕与俯瞰。这是一个真正意义上的“光之盒子”。我们相信,这座外部呈现裸露混凝土质感、内部拥有明亮纯白空间的盒子式图书馆,不仅将极具实用价值,同时也将具备高度的审美品质。▼模型,Model © Alberto Campo Baeza
▼室内模型,Interior model © Alberto Campo Baeza
▼剖切轴测渲染图,Sectioned axonometric rendering© Alberto Campo Baeza
▼施工过程,During construction © Javier Callejas Sevilla
The double-height reading room space is overlooked by the other spaces that open onto it. This is a true boîte à lumière. We believe that our box-library, with its bare concrete exterior and luminous white interior, will be not only very useful but also very beautiful.
▼总平面图,Site plan © Alberto Campo Baeza
▼首层平面图,Ground floor plan © Alberto Campo Baeza
▼二层平面图,First floor plan © Alberto Campo Baeza
▼三层平面图,Second floor plan © Alberto Campo Baeza
▼立面图,Elevations © Alberto Campo Baeza
▼剖面图,Sections © Alberto Campo Baeza
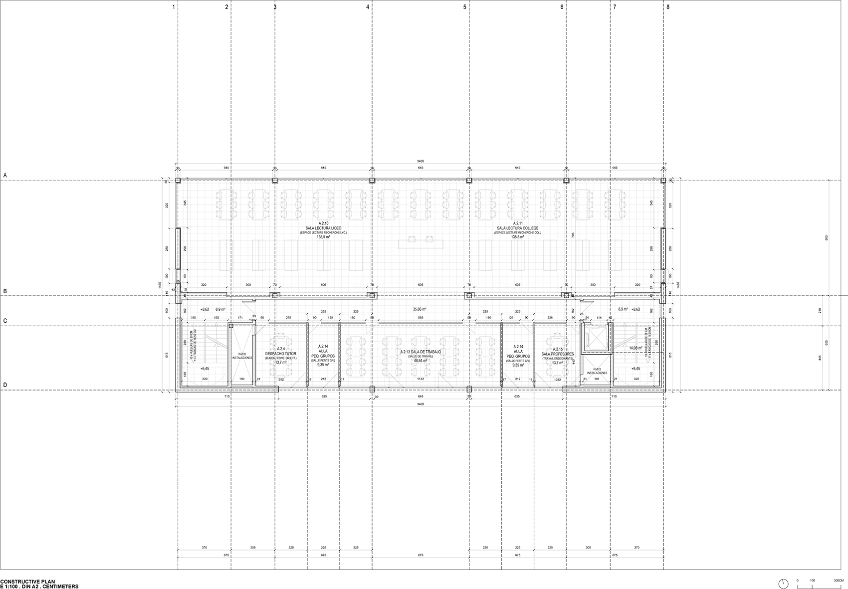
▼构造平面图,Constructive plan © Alberto Campo Baeza
▼构造剖面图,Constructive sections © Alberto Campo Baeza
Arquitecto / Architect: Alberto Campo Baeza
Situación / Address: Plaza del Liceo, 1. Madrid
Promotor / Client: AEFE y Liceo Francés de Madrid
Fecha de concurso / Competition: 2018
Fecha de proyecto / Project: 2019
Fecha de construcción / Construction: 2025
Superficie / Area: planta baja: 505 m²; planta 1ª: 505 m²; planta 2ª: 235 m²; planta sótano: 505 m²; TOTAL: 1.750 m²
Medidas en planta 34,05 × 14,85 m
Sala biblioteca 33,35 × 7,93 m, altura 6,60 m
Orientación: fachada larga biblioteca a norte
Arquitectos colaboradores / Collaborators architects: Alejandro Cervilla García, Ignacio Aguirre López, Alfonso Guajardo - Fajardo Cruz, Tommaso Campioti, María Pérez de Camino, Elena Jiménez Sánchez, Joan Suñé Almenar, Sara Fernández de Trucios, Juanjo Sánchez Rivas, Elena Pérez Espigares, Rodrigo González Rivero
Consultores / Consultant: Laps Architecture (Fabienne Louyot)
Estructura / Structure: Andrés Rubio Morán
Instalaciones / Engineering: Úrculo Ingenieros
Aparejador / Quantity Surveyor: Francisco Melchor Gallego, Juan Carlos Cano
Contratista / Contractor: Clásica Urbana (Encarnación Obispo Márquez, Jorge Riocerezo Martínez)
Control de calidad / Quality Control: SGS
Fotografía / Photographer: Javier Callejas Sevilla
客服
消息
收藏
下载
最近



























































