查看完整案例

收藏

下载
ZWEIUNDEINHALB
Projekt
Doppelhaushälften + Anbau
Standort
Weinheim
Fertigstellung
2011 + Anbau 2022
Bauherr
Privat
LPH
1-8
zum Grundriss
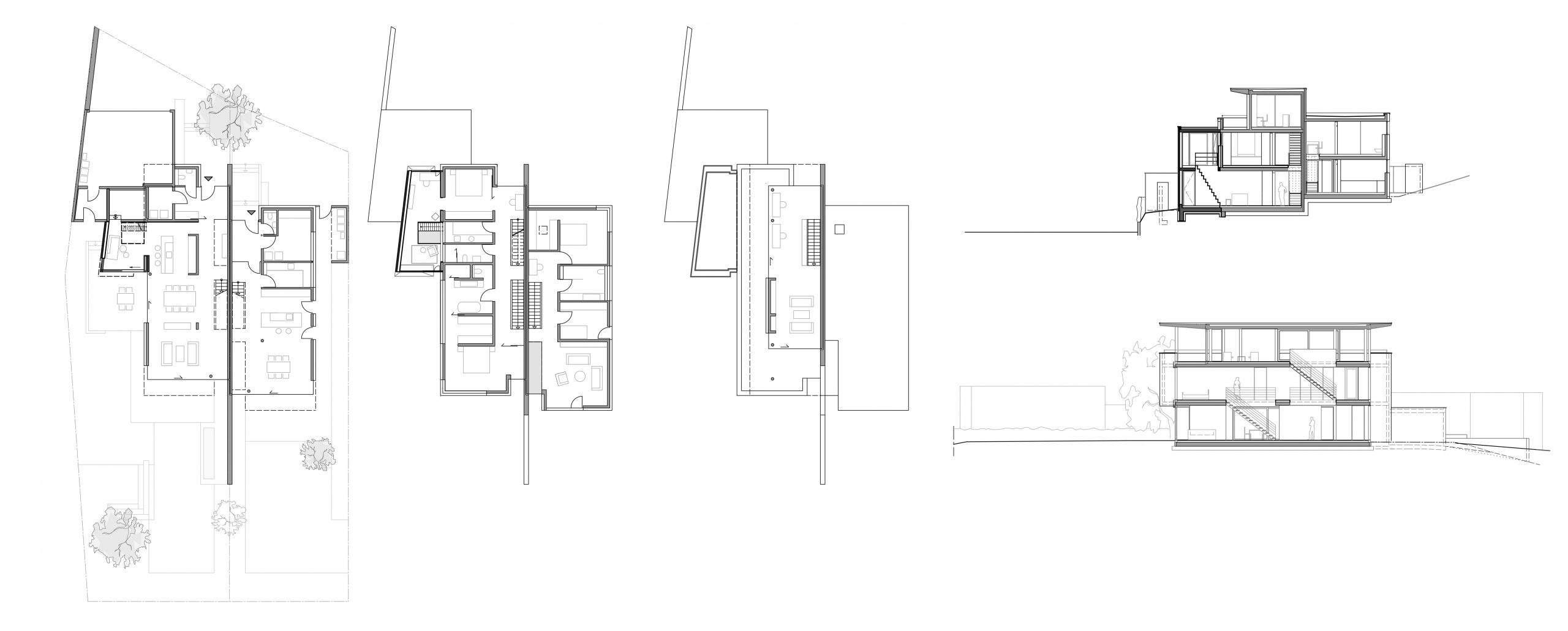
Das attraktive Hanggrundstück wurde längs, parallel zum Hang geteilt, um beide Haushälften gemäß Besonnung und Aussicht auszurichten. Gestalterisch als Einheit behandelt, entwickelt jede Hälfte ihre eigenen Qualitäten. Eine mehrgeschossige zweischalige Sichtbetonwand, an die sich die Erschließung anlehnt, verbindet und trennt beide Häuser zugleich. Im Außenbereich ermöglicht sie die gewünschte Privatheit sowohl der Hauseingänge als auch der Freisitze. Der aktuellen Entwicklung hin zum mobilen Arbeiten folgend wurde ein Büroanbau erforderlich. Als Nachverdichtung stützt sich ein zweigeschossiger Holzbau parasitär auf die Garage und schafft durch Öffnungen zum bestehenden Haus in beiden Geschossen zusätzliche Flächen. Verbunden mit einer minimalistischen Stahlfaltwerktreppe entsteht ein offener Raum mit Ateliercharakter. Mit seiner dunklen Verkleidung aus Faserzementplatten hebt sich der trapezförmige Körper bewusst vom Haupthaus ab und nutzt so das schmale Baufenster maximal aus.
客服
消息
收藏
下载
最近


















