查看完整案例

收藏

下载
Europäische Schule
Frankfurt am Main, 2001 - 2005
Neubau einer Höheren Schule und einer Vorschule im ersten Bauabschnitt, sowie einer Grundschule im zweiten Bauabschnitt
Nutzungsschwerpunkte
Architektur
BGF
15000 qm
Zeitraum
2001 - 2005
Auftraggeber
FAAG Frankfurter Aufbau AG
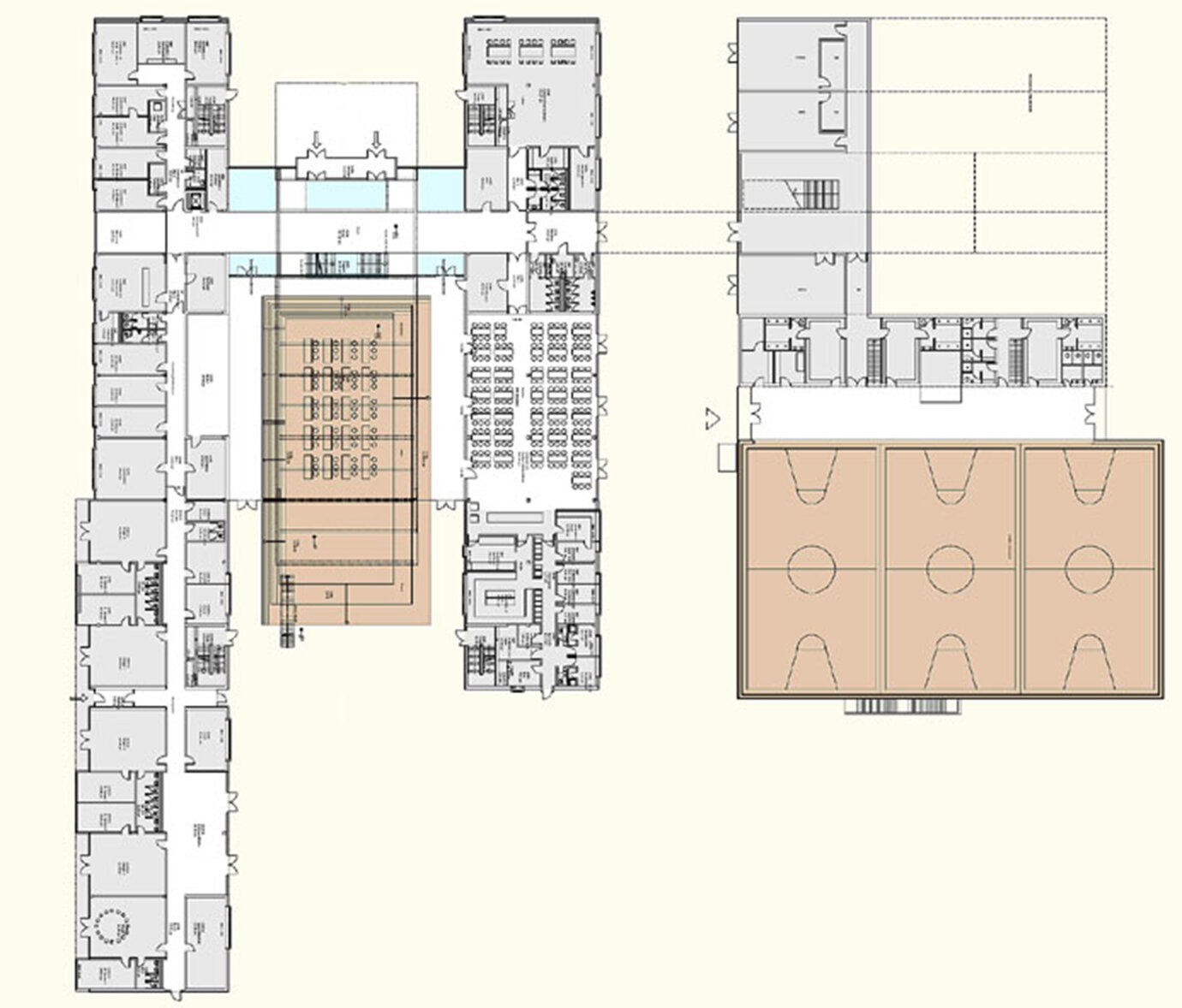
Grundriss EG
Lernen auf europäisch Die Auswahl Frankfurts als Sitz der Europäischen Zentralbank machte die Errichtung einer Europäischen Schule notwendig. Der erste Bauabschnitt mit dem Hauptgebäude, einer Dreifeld-Sporthalle und einem Kindergarten wurde im Jahr 2001/2002 in kürzester Zeit und unter hohem Kostendruck geplant und gebaut. Der zweite Bauabschnitt, der die Grundschule und eine Erweiterung der Kantine umfasst, wurde im November 2005 fertiggestellt. Das besondere pädagogische Konzept der Europäischen Schulen mit vier Schulsprachen, speziellem Förderunterricht und Unterricht in allen Landessprachen der Europäischen Union, machte eine besonders kleinteilige Struktur erforderlich. Das Hauptgebäude reagiert auf seine Lage in einem Grünzug zwischen Nordweststadt und westlichem Stadtrand. Zwei riegelartige Gebäudekörper nehmen die Grünzone als Pausenhof in Ihre Mitte und sind nur durch eine gläserne Eingangshalle und die sogenannte Kreativbox verbunden. Während in den flankierenden Riegeln die Klassenzimmer und Kleingruppenräume untergebracht sind, beherbergt die Kreativbox Sonderräume für die musischen Fächer und die Bibliothek. Der zweite Bauabschnitt wiederholt die Grundstruktur des ersten in kleinerem Maßstab. Über einen Steg werden beide Bauabschnitte zu einer logischen, homogenen Einheit verbunden.
Dreifeld-Sporthalle
Cafeteria
Innenansicht
Außenansicht mit Hof
Korridore
Schulhof
客服
消息
收藏
下载
最近









