查看完整案例

收藏

下载
Sanierung Foyer der Stadtbibliothek Standort Breite Straße Berlin
Beschränktes Gutachterverfahren 2013
Beschränktes Gutachterverfahren 2013
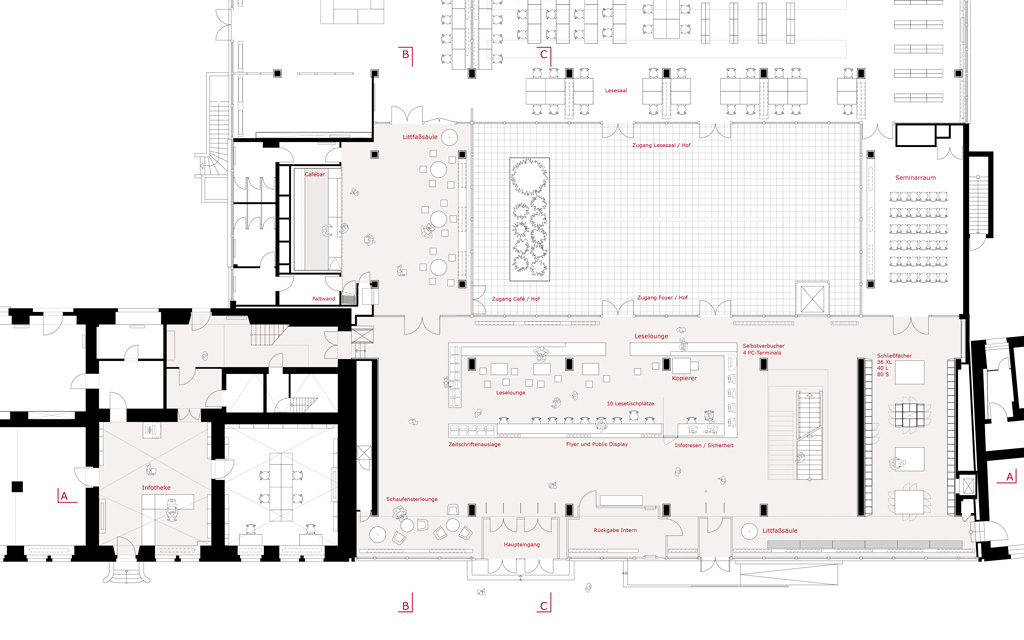
Aufgabe des Verfahrens ist es, Konzepte zur Aufwertung des Foyerbereichs der Stadtbibliothek in der Breite Straße zu entwicklen. Das Gebäude aus den 60iger Jahren zeichnet sich durch einen großzügigen Eingangs- und Foyerbereich aus, der zur Zeit vorwiegend zur Erschließung genutzt wird.
Mit kleinen Interventionen soll versucht werden, diesen Bereich neu zu denken und mit neunen Nutzungsbausteinen zu versehen. Die Interventionen werden in ihrer Ausformulierung als ein Weiterdenken und Ergänzen des Bestandes verstanden und lehnen sich in ihrer Formensprache sowie in ihrer Materialwahl an Vorhandenes an.
Der Hallenraum des Foyers erhält ein freistehendes ringförmiges Möbel, welches die unterschiedlichen Funktionen, die an den Raum gestellten werden, modulartig integrieren und gleichzeitig neue räumliche Qualitäten erzeugen soll.
Das Möbel beherbergt auf der westlichen Seite zum Café hin den zukünftigen Pressebereich mit Zeitschriftfächern und Zeitungsablagen. Zum Eingang und Halleninneren gewandt, befinden sich 10 Leseplätze. An dieses schließt östlich, bewusst aus der Eingangsachse gerückt, das Sicherheit- und Infoarbeitsplatzmodul an. Die östliche Stirnseite biete PC-Stehplätze und einen Selbstverbucherstandort. Die nördliche Längsseite zum Innenhof, und somit der Ringschluss, bieten wiederum informelle Sitzgelegenheiten. Die Plätze richten sich dabei einmal zum Hof, einmal in den Innenraum des Ringes und schaffen auf diese Weise ganz unterschiedliche Innen-Außen Bezüge.
Im Großraum der Halle werden durch das halbhohe Möbel und die unterschiedlichen Nutzarten räumliche Qualitäten differenziert, die ein geschützteres Verweilen, Lesen oder Arbeiten ermöglichen.
Team
Ralf Fleckenstein, Matthias Hanzlik
Auftraggeber
ZLB Berlin
客服
消息
收藏
下载
最近











