查看完整案例

收藏

下载

翻译
Architects:AEV Architectures,TONN architects
Area:95m²
Year:2025
Photographs:WooJung Park
Category:Churches,Memorial Center
Architects:Woojin Lim, Yunseok Kwak (AEV Architectures) + Jungim Yoo + Yunhee Lee (TONN Architect)
Participating Artists:Andrea Roggi, Ignazio Campagna, Jeeyean Shim, Soon-phil Maeng
City:Gimje
Country:South Korea
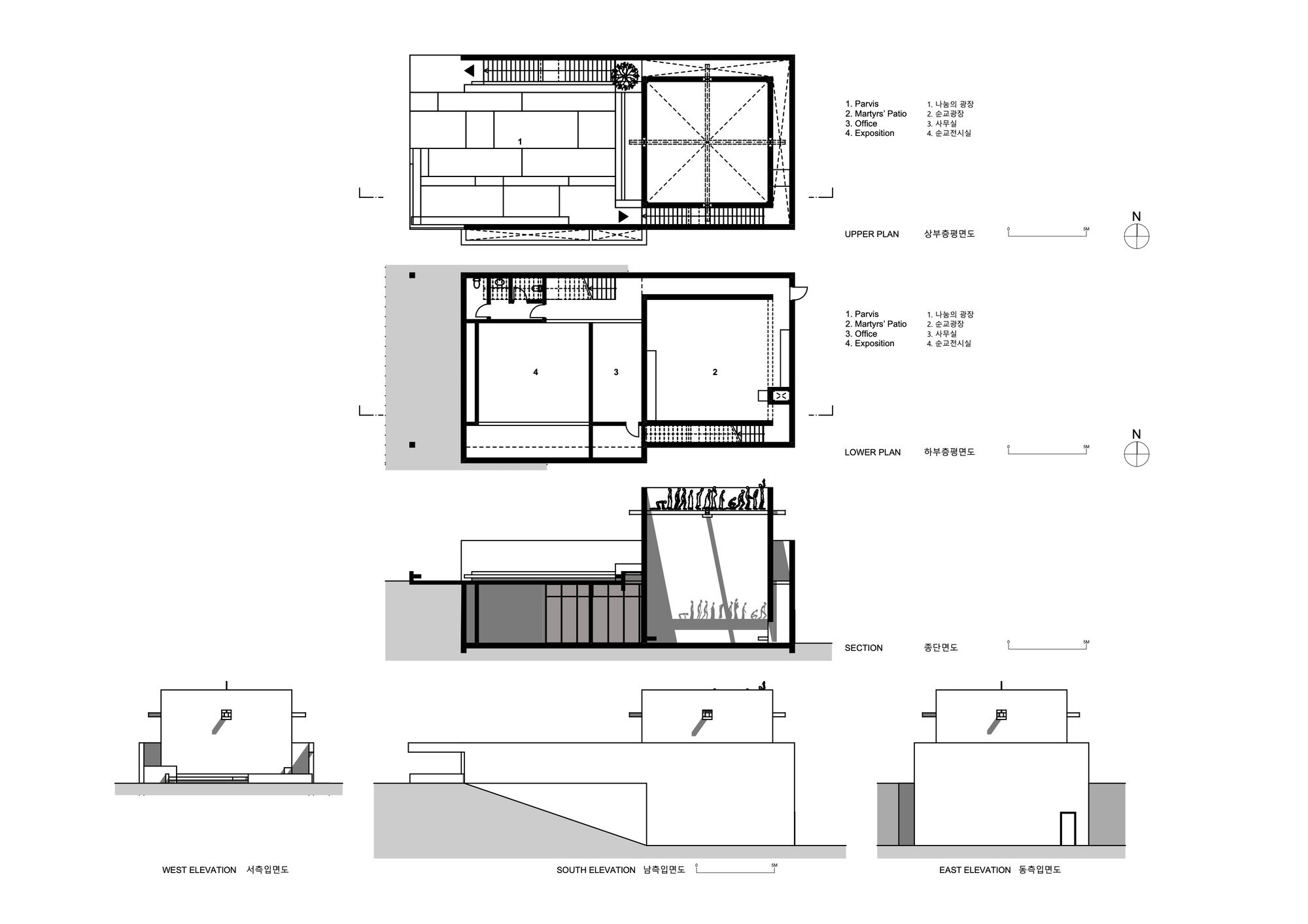
Text description provided by the architects. A Place of Memory and Reconciliation Created by LightIn the tranquil village of Mangyeong, located three hours south of Seoul, a deeply meaningful commemorative space has been established. This memorial honors Pastor Kim Jong-han and the fifteen members of the Mangyeong Church who were martyred during the Korean War in 1950. The Mangyeong Church Martyrs Memorial is designed, not as a conventional monument, but as a powerful symbol of remembrance, renewal, and hope for a rural community grappling with depopulation and the erosion of its cultural identity.
The Intangible Monument: Architecture as "Atmospheric Expression"This memorial distinguishes itself as a unique, intangible monument. It deliberately rejects physical representation, opting instead for a profound spatial and atmospheric expression. The martyrs are not immortalized through statues or portraits; rather, their presence is evoked through the meticulous orchestration of natural light and shadow within an architectural void. As the sun arcs across the sky and the seasons change, their symbolic silhouettes appear and dissolve, becoming visible only "when the sky allows." This ephemeral and poetic design imbues the space with a deep symbolic resonance, charging it with a quiet yet potent spiritual presence.
Humble Materials and Collaborative ArtistryThe building, designed by the French-Korean architect Woojin Lim, adopts a distinctly humble and introspective character. It is constructed from raw concrete featuring exposed timber formwork and utilizes a restrained material palette. Working within the constraints of a modest public budget, the project organically evolved into a collaborative platform. It brought together internationally acclaimed artists—including the renowned Italian sculptor Andrea Roggi—to create a meaningful, poetic dialogue between contemporary art and contemplative architecture.
Memory as Foundation for Future RevitalizationThe memorial serves not only as a poignant tribute to the past but also as a vital space for reflection on history, engagement with the present, and inspiration for the future. It embodies the powerful idea that memory itself can serve as the essential foundation for cultural and social revitalization within regions that might otherwise be overlooked.
Project gallery
客服
消息
收藏
下载
最近





























