查看完整案例

收藏

下载
Neubau einer Kita in Oranienburg
Schutz, Geborgenheit und viel Raum zum Spielen bietet diese Kita in Holzmodulbauweise. Sie ist auf die Bedürfnisse der Kinder und des Personals optimal abgestimmt.
Schutz, Geborgenheit und viel Raum zum Spielen bietet diese Kita in Holzmodulbauweise. Sie ist auf die Bedürfnisse der Kinder und des Personals optimal abgestimmt.
Baujahr: 2013-2014
Bauherr: CJO e.V.
Status: realisiert
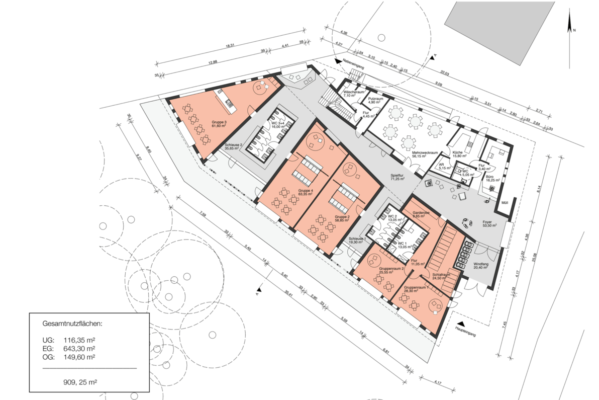
Nutzfläche: 867 m²
Bauweise: Holzmodulbauweise
Fotografie: Thorsten Eichhorst Photography
Kita-Plätze 0-6 Jahre: 75
Herausforderungen
Die buerohauser Expert*innen und die Bauherren
Lösungen
Ergebnisse
Das Gebäude konnte durch die Holzmodulbauweise in gerade mal zwölf Monaten realisiert werden – zwischen Plattenbauten, Hauptstraße und Wäldchen ein echter Hingucker.
Herausforderungen
Kundenwünsche
Als sozial ausgerichteter Verein wünschte man sich als Bauherr eine schöne, atmosphärische Kindertagesstätte, die besonders sozial schwachen Kindern der Stadt Oranienburg eine liebevolle Heimat bietet. Der Verein ist seit Jahrzehnten im Raum Oranienburg aktiv und kümmert sich stark um sozial schwächer gestellte Menschen. Der Verein finanziert das gesamte Bauvorhaben unabhängig von der Stadt und behält so sämtliche Entscheidungsfreiheit bei sich, muss aber auch auf eine kostengünstige Bauweise achten. Zentrale Themen sind das Einfügen in die städtebauliche Struktur, die Innenarchitektur und die innenliegenden Gebäudefunktionen. Es stand fest, dass die Kindertagesstätte den Namen „Leuchtturm Oranienburg” tragen wird. Dem Verein war es wichtig, dass dieser Name dem neuen Ort für die Kinder eine positive Ausstrahlung verleiht.
Gelände und Umfeld
Die Stadt Oranienburg befindet sich ca. 20 km nördlich von Berlin. Das Gelände, das dem Verein zur Verfügung steht, liegt mitten in der Stadt an einer vielbefahrenen Hauptstraße. Eine der Straßenseiten wird von hohen Plattenbauten flankiert. Auf dem Gelände befindet sich ein Wäldchen, das vor Baubeginn in einem langwierigen Prozess zu Baugebiet umgewidmet werden musste.
Die buerohauser Expert*innen und die Bauherren
Eine Bauzeit von 12 Monaten kann nur durch die drei Faktoren verwirklicht werden: vorgefertigter Holzbau, exzellentes Expert*innenteam und eine vertrauensvolle Zusammenarbeit mit den Bauherren.
Auch in diesem Projekt haben wir unser Team aus Fachleuten unterschiedlicher Disziplinen zusammengestellt: Unsere Innenarchitekt*innen, Architekt*innen und Stadtplaner*innen haben mit Fachleuten des Landes Brandenburg und der Stadt Oranienburg die Themen Kinderbetreuung und Kita-Betrieb bestmöglich in die Planung einfließen lassen können, um städtebaulich und innenarchitektonisch auf eine einheitliche Lösung zu kommen. Arbeitsmodelle und die 3D-Visualisierung geben einen ersten Eindruck.
Um eine schnelle und dadurch kostengünstige Bauphase zu realisieren, wurden für dieses Gebäude nur das Fundament und der Keller aus Beton gebaut, der zweigeschossige Bau besteht aus von unseren zuverlässigen Partnern vorgefertigten Holzmodulen, die vor Ort zusammengefügt wurden.
Ein weiterer großer Vorteil dieser Holzbauweise liegt in der Deckenkonstruktion: Die Decke weist eine enorme schalldämmende Wirkung auf, die speziell für Funktionsgebäude wie Kindergärten nützlich ist.
Diese Holzdeckenkonstruktion verbindet sinnvoll die beiden Elemente Wärme - und Brandschutz mit den Anforderungen von Akustik. Durch die spezielle Kombination von Oberflächengestaltung und Volumen der Deckenelemente wird Schall effektiv reduziert. Der Deckenaufbau (v.o.n.u): Estrich auf Trittschalldämmung und Splittschüttung, darunter die Rohdecke als Lignatur - Flächen - Element. Das von unten sichtbare geschlitzte Kastenelement aus Holz vereint Statik, Schallschutz, Akustik und Optik.
Aufbau eines Gebäudes als Holzbau
Lösungen
Die städtebaulichen Bezüge: Mehr Ruhe in der Unruhe
Wir sehen die Möglichkeiten der Architektur auch darin, nicht nur ein Gebäude allein, sondern auch den Umraum ästhetisch zu erleben. Die Fragen, wie man sich an Orten fühlt, ob sie draußen oder drinnen erlebt werden, stellen wir uns schon vor Beginn der Planung.
Für uns stehen der Mensch und welche emotionalen Beziehungen an Orte geknüpft werden im Vordergrund – gerade wenn es sich um Kinder handelt. Denn für uns hängt die Bedeutung von Wohlfühlen und Schönheit stark damit zusammen, ob Architektur in diesem Sinne gut funktioniert.
In Oranienburg entsteht ein neuer Ort für Kinder, an dem es ihnen gut geht und sie sich immer willkommen und wohlfühlen.
Grundriss Erdgeschoss
Ausgehend vom heterogenen Umfeld, bestehend aus Wald, Spielplatz, neuem Gebäude, Straße, Plattenbauten, war es unser Ziel, Ordnung in die “Unordnung” zu bringen. Wichtig war es uns hierbei, nicht einfach einen Kubus als ordnendes Element zu nutzen, sondern sich auf die bestehenden Formen und Proportionen zu beziehen. Das neue Gebäude soll das Stadtbild ergänzen und somit Ruhe stiften und nicht weitere Unruhe auslösen.
Gelungen ist das u. a., indem wir das Wäldchen unverändert ließen. Wir haben das Gebäude organisch in diesen Bestand hineingearbeitet. Über die Schmalseite des Baugrunds erhält man nun Zutritt zum Gebäude, der Blick wird zum Wald hin geöffnet. Dass wir das Wäldchen in die Planung integriert haben, hat einen weiteren Vorteil: Weil es zur Hauptstraße hin liegt, trifft weniger Straßenlärm auf das Gelände.
Das Leuchtfeuer: Inspiration für einen polygonalen Grundriss
Ausgehend von den Erkenntnissen, hier ein organisch ins Stadtbild passendes, amorphes Gebäude zu realisieren, und dem vorgegebenen Namen der zukünftigen Kindertagesstätte „Leuchtturm Oranienburg“ haben wir eine Synthese erarbeitet: Der Leuchtturm wurde ins bauliche Konzept integriert und der Drehmoment des Leuchtturmlichts genutzt, um daraus einen polygonen Grundriss zu entwickeln.
Leuchtfeuer eines Leuchtturms als Inspiration für den Grundriss.
Der Spielflur: Geborgenheit, Schutz und Wohlgefühl
Viele können sich genau an die Zeit zurückerinnern, als man „alte“ Orte wie Kindergärten besuchte. Die verwendeten Materialien und deren Geruch versetzen uns direkt in die erlebte Zeit zurück.
Daher ist es für uns sehr wichtig, gute Materialien wie Holz zu verwenden und inspirierende Raumerfahrungen zu ermöglichen.
Die Wandverkleidung im Flur ermöglicht Sitzgelegenheiten und Öffnungen zum Versteckenspielen.
Als Team von Architekt*innen, Ingenieur*innen und Designer*innen und als Familienunternehmen liegen uns die Bedürfnisse der Menschen, auch der ganz kleinen und jungen Menschen, besonders am Herzen.
Unsere langjährige Erfahrung und unser daraus erwachsenes Fachwissen ermöglichen es uns, auf die speziellen Anforderungen einzugehen, die bei diesem Bau gefordert werden. Gerade junge Menschen brauchen Schutz, Liebe und Geborgenheit – was wir im Bau dieser Kita architektonisch unterstützen können.
Rot markiert ist die Wandverkleidung mit Leuchtturm.
Durch architektonische Raumstrukturen, wie z. B. Verengung, Vor- und Rücksprünge, werden Verstecke, Sitzmöglichkeiten und Nischen erzeugt. Halbhohe Räume und niedrige Fenster mit tiefen Laibungen ermöglichen interessante Ausblicke und gemütliches Verweilen auch für Kinder.
Da der Fokus auf der Innenarchitektur und den innenliegenden Gebäudefunktionen liegt, haben wir uns auf die Eigenschaften von Räumen konzentriert, die eben diese Grundvoraussetzungen für Wohlgefühl fördern. Nicht nur Farbe und Material tragen dazu bei. Maßgeblich sind die Anordnung der Räume und die Art und Weise, welche Bewegung in ihnen möglich oder gefördert wird.
Das sind die Vorteile professioneller Innenarchitektur.
Ergebnisse
客服
消息
收藏
下载
最近






























