查看完整案例

收藏

下载
Medium size home 31
Medium size home 31
Horizontal Tabs
Overview
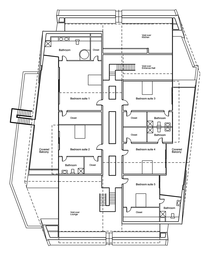
Stunning 5 bed / bath luxury home with angular facades, features double height spaces to the entrance hall, kitchen and lounge. Front and rear elevations finished in fair-faced concrete, glass and contrasting black granite, while the side elevations and roof are rapped in standing seam aluminum cladding. All bedroom suites lead out onto deep recessed balconies. with the rear balcony linked to the garden / pool area by an external metal staircase. Full height glazing is shaded to avoid excessive solar insolation in hot, sunny climates.
Price:
£1,250.00
Plan layouts
Ground Floor plan:
First Floor Plan:
Specification
Frontage width:
37.00m
Usable floor area:
909.54m2
Footprint area:
896.01m2
Recommended minimum site width:
47.00m
Room areas
Bedroom 1:
93.28m2
Bedroom 2:
51.61m2
Bedroom 3:
55.17m2
Bedroom 4:
51.71m2
Bedroom 5:
48.29m2
Kitchen:
79.52m2
Lounge:
207.04m2
Dining room:
78.10m2
Gymnasium:
36.39m2
Store:
16.80m2
Carport:
60.02m2
Maid's room:
16.80m2
Interior renders
客服
消息
收藏
下载
最近
















