查看完整案例

收藏

下载
paul de vroom architecten
Dutch House
Description
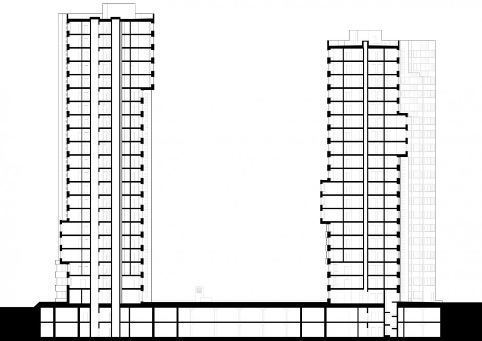
360 appartementen in 2 torens met parkeergarage
In Wellton Park, een wijk in Moskou met een zeer hoge dichtheid, heeft Team Paul de Vroom + Sputnik twee appartementengebouwen opgeleverd met uitgesproken vormgegeven metselwerkgevels. De opdrachtgever Krost vroeg om “Hollandse” architectuur. In het ontwerp hebben de architecten van Team Paul de Vroom + Sputnik zich laten inspireren door de Amsterdamse School.
Het project ‘Dutch House’ maakt onderdeel uit van de herontwikkeling van de wijk District 75 in het westen van Moskou. Met de nieuwe naam Wellton Park is de wijk in een periode van 20 jaar, door het Russische bouw- en industrieel bedrijf KROST, getransformeerd tot een luxe woonwijk met een zeer hoge dichtheid en een met zorg aangelegd maaiveld. Te midden van de witte of lichtgrijze woongebouwen springt Dutch House in het oog door zijn opvallende rode baksteenkleur. De twee gebouwen van 75m en 60m hoog bevatten 360 appartementen bovenop een tweelaagse ondergrondse parkeergarage.
De condities voor het project Dutch House zijn uitzonderlijk. De rechthoekige kavel wordt aan vier zijden omsloten door woongebouwen die over het algemeen hoger zijn dan de twee nieuwe blokken. Dit geeft de locatie het karakter van een grote, gesloten binnenkamer met alleen spaarzame openingen waardoorheen uitzicht wordt geboden. Er was daarom een sterk concept nodig dat het wonen in de nieuwe appartementen aangenaam maakt.
In het ontwerp voor Dutch House wordt de locatie opgevat als een toneel met daarop twee acteurs: de gebouwen. Om goed te kunnen optreden, zullen deze acteurs een specifieke identiteit moeten hebben en vooral in goede harmonie moeten verkeren met elkaar en met het ‘theater’ eromheen. Daarom zijn de gebouwen en de context in nauwe samenhang met elkaar ontworpen.
De positie van de beide gebouwen lijkt willekeurig, maar is in feite het directe resultaat van de toepassing van de Russische regels omtrent bezonning. Sleutelwoord voor het ontwerp van de publieke ruimte is verbinding. Door een ‘verbindend tapijt’ te introduceren, was het mogelijk om alle uiteenlopende richtingen, de beide gebouwen en de buitenactiviteiten in onderlinge samenhang te brengen.
De opdrachtgever vroeg expliciet om Nederlandse architectuur. Met begrippen als identiteit en samenhang in gedachten, is een hedendaagse architectonische vormgeving ontwikkeld, gebaseerd op het idioom van de Amsterdamse School: expressieve plasticiteit met bij voorkeur ronde vormen, een ritmische herhaling van volumes, verticale articulatie en repeterende, vierkante ramen. Verder kenmerkt de Amsterdamse School zich door afgewogen gebruik van de materialen baksteen, hout, glas, natuursteen, beton en metaal, in combinatie met monumentale houten ingangspartijen en uitzonderlijke details.
De kenmerken van de Amsterdamse School zijn getransformeerd in moderne ontwerpinstrumenten, zoals de ritmiek van de zaagtandgevel, de getrapte afgeronde erkers en het abstracte patroon van kleine vierkante ramen. Met deze strategie was het mogelijk om het ensemble Dutch House een spectaculaire architectonische verschijning te geven. Door het spel van licht en schaduw wordt vanuit iedere hoek het samenspel van de twee gebouwen anders ervaren.
Bij de materiaalkeuze en detaillering van Dutch House is hetzelfde principe gevolgd. De gevels zijn opgetrokken in Hollandse, oranjegekleurde bakstenen, in de ronde erkers zit gebogen glas en de zware entreedeuren zijn monumentaal door hun houten profilering,
De gemeenschappelijke ruimtes binnen de gebouwen worden gekenmerkt door rijk materiaalgebruik en verfijnde detaillering. De zaagtand-structuur is ook hier kenmerkend. Door in de vormgeving de verticale lijnen te benadrukken ademen de ruimtes een prettige sfeer. Zo zijn er geen lichtarmaturen aan de plafonds in de corridors maar zijn er enkel verticale lichtlijnen die de wanden aanlichten. Op elke verdieping is op een aantal wanden een driedimensionaal tulpenpatroon aangebracht. In de entree-lobby’s zijn aan de Amsterdamse School verwante materialen zichtbaar, zoals messing, diep donker hout en natuursteen, in combinatie met hedendaagse elementen als de driedimensionale, abstracte tulpenpatronen en lichtplafonds.
foto’s: Ilya Ivanov
Team Paul de Vroom & Sputnik
Details
Date
2015-2018
Client
Krost
客服
消息
收藏
下载
最近






















