查看完整案例

收藏

下载
Medium size home 06
Medium size home 06
Horizontal Tabs
Overview
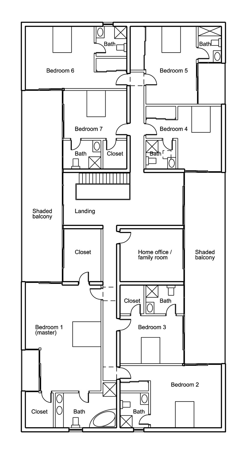
Big brother to Small Sized Home 05, this more spacious version boasts 7 ensuite bedrooms, a triple attached garage, home office, balconies to front and rear with floor-to-ceiling glazing recessed to reduce solar insolation in hot climates. The design is highly constructable with traditional domestic construction methods, notably load baring walls with concrete or timber raised floors.
Price:
£1,250.00
Plan layouts
Ground Floor plan:
First Floor Plan:
Specification
Frontage width:
30.00m
Usable floor area:
700.65m2
Footprint area:
450.00m2
Recommended minimum site width:
40.00m
Room areas
Bedroom 1:
61.12m2
Bedroom 2:
34.05m2
Bedroom 3:
26.81m2
Bedroom 4:
25.95m2
Bedroom 5:
26.82m2
Bedroom 6:
28.77m2
Bedroom 7:
34.05m2
Kitchen:
71.14m2
Lounge:
70.88m2
Dining room:
63.47m2
Home office:
18.03m2
Garage:
62.19m2
Laundry:
10.67m2
Interior renders
客服
消息
收藏
下载
最近
















