查看完整案例

收藏

下载
case.095 coprosperity 新旧の素材、プライベートと共有スペースをグラデーションでつなぐ。
Works
case.095
Data
住所:名古屋市緑区
建物:持ち家(木造)
築年数:1957年
延床面積:124.07㎡
施工面積:124.07㎡
施工番号:212
Plan
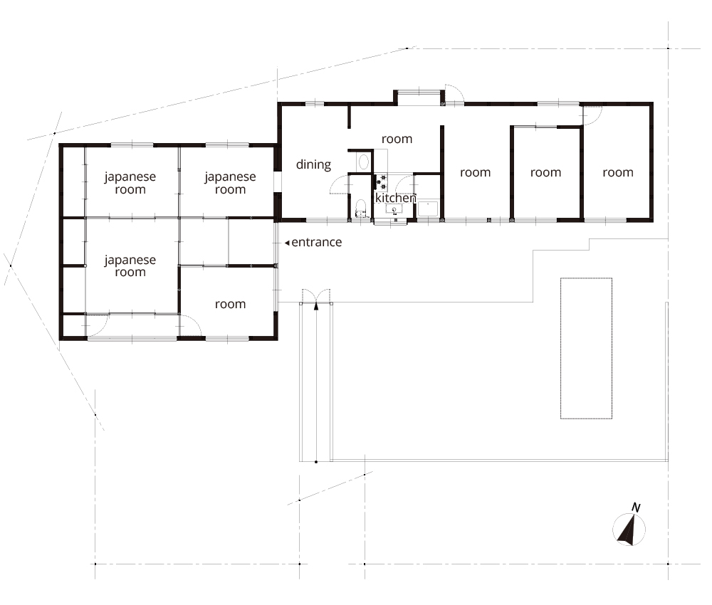
Before
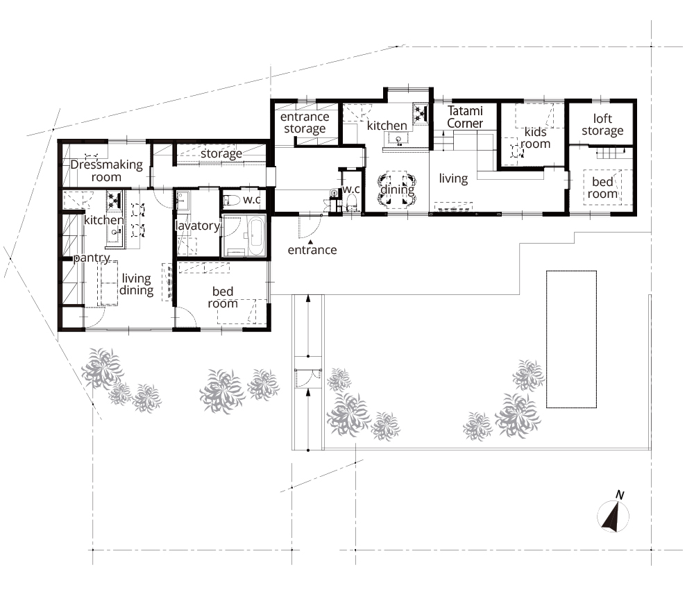
After
Designed by Takagi
長年家族を支えてきた構造梁や障子などを大切に残し、新しく造作する部分との組み合わせを楽しめるインテリアを計画。また、共有スペースを中心に奥へいくほどプライベート感が高まるゾーニングにより、双方をやさしく繋ぐ心地よさを感じられる住まいです。
Data
住所:名古屋市緑区
建物:持ち家(木造)
築年数:1957年
延床面積:124.07㎡
施工面積:124.07㎡
施工番号:212
Plan
Before
After
Designed by Takagi
Voice
オーナー: Iさま
リノベーションをしようと思ったきっかけやタイミングは?
私たちが結婚のタイミングを迎えたことや母が定年を迎えることで、家という空間で過ごす時間が増えると感じました。もともと築60年を超えかなり古くなってきていた実家をきれいにしたいという思いもあり、こどもを授かったことや産休に入ることもあり、時間が取れるうちに行動しよう!と決意しました。
実は同じ敷地で建て替えも考えましたが、法律上不可能ということがわかり・・・。他の場所を探して新築ということも考えましたが、思い出のあるこの建物をリノベーションする方向へと向かっていきました。
新たな住まいで実現したかったことは?
母と子世帯の二世帯ということは譲れませんでした。
あとは隙間のない家(笑)かなり古い家だったので色々ガタがきていましたし、聞くところによると日本の昔の建物の作り方はわざと隙間をつくっていたようですが、その隙間から木の葉が入ってくることもしばしば。ときには鳥(スズメとかツバメなど)が入ってくることもあったので、そういったことのない家にしたかったです。
リノキューブとの出会いは?決めていただいた理由は?
元バイト先の先輩がリノキューブでリノベーションされていたことがきっかけで、インスタなどでリノキューブさんの事例をよく見ていました。
今回、自宅の件でいくつかの会社には問い合わせをし、オンラインなどで打ち合わせを行いましたが、立地の問題などもあり相談の段階で断られることが多かったです。
そんな中、最後まで対策を考えながら対応してくれた会社さんに中で、空間提案が素敵だったリノキューブさんにお願いしようと決めました。
お打ち合わせ中や工事中の思い出はありますか?
最初のプランが想像以上で、そのプランに惚れました!!細かいところまでかんがえてくれた提案だったので、悩んだのは素材の選定ぐらいでした。それでも、優柔不断でとても悩んだけど、とことん寄り添ってくれて、本当にうれしかったです。わがままを聞いてくださりありがとうございました。
工事中は梁や壁を取っ払って家の骨組みが見えた時の感動が大きかったです。すごく丁寧に作ってあったと聞いてとてもうれしくなりました。
また、壁を開けてシロアリ被害があるとわかったときには、すぐに報告してくれたり必要な対応をしてくれたりと誠意をもって対応してもらえたので、安心して任せることができました。
住まいの中でお気に入りのポイントは?
子世帯の中心にある存在感あるソファ。後ろに小上がりがあり子供を寝かせることができたり、テレビを見ながらゴロゴロもできるし重宝しています。オシャレだけじゃなく機能的でもあるところがお気に入りです。
デザイナーさんやディレクターさんと色々とお話をしている中で要望を引き出してもらえて、そういった要望をカタチにしてもらった感じで出来上がっていきました。
これからリノベーションされる方へ、ひと言!
リノキューブさんめっちゃおすすめです(笑)
ここまで寄り添ってもらえるところは他にないんじゃないかなと思います。
自分たちがやりたいことを明確にして、譲れないポイントを決めておくとその想いを汲み取って臨機応変に対応いただける。リノキューブさんはオールマイティに対応いただけると感じています。
客服
消息
收藏
下载
最近




































