查看完整案例

收藏

下载
TELEFÓNICA OFFICES REUS-VILLARROEL
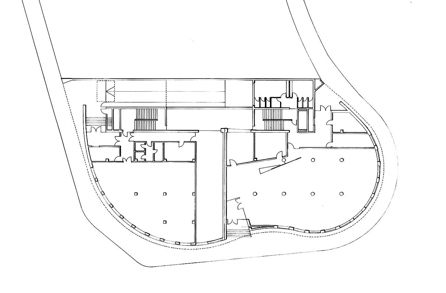
At the point of confluence of the streets of a contemporary neighborhood in Reus, this building is located, composed, as usual, of two unequal parts: equipment and office.
The decision to treat them as a whole, in continuity, and the curving of the façade as a means of transcending the irregular boundaries of the site, are the two main decisions, although in the conceptual order, horizontal windows are proposed as an option, from the idea from the public, to the dominant vertical of the multiplication of the private.
CENTRAL TELEFÓNICA REUS-VILLARROEL
En el punto de confluencia de las fortuitas alineaciones de calles de un barrio vertical contemporáneo en Reus, se sitúa esta pieza compuesta, como es usual, de dos partes desiguales: equipo y oficina.
La decisión de tratarlas como un todo, en continuidad, y el curvado de la fachada como medio de trascender los irregulares límites del solar, son las dos decisiones principales, aunque en el orden conceptual, la fenestración horizontal se plantea como opción, desde la idea de lo público, a la vertical dominante de la multiplicación de lo privado.
Autor /
Architects:
Jaume Bach, Gabriel
Colaboradores /
Collaborators:
BOMA, S.L.P. (estructura/
structure
),
J.G. Asociados
(instalaciones/
mechanical engineering
)
Fecha de finalización de la obra /
Completion date:
1990
Superficie construida /
Built surface:
2.200 m2
Cliente /
Client:
Compañía Telefónica Nacional de España
Ubicación /
Adress:
Reus, Taragona
Fotografías /
Photographs:
Lluís Casals
客服
消息
收藏
下载
最近









